查看完整案例

收藏

下载
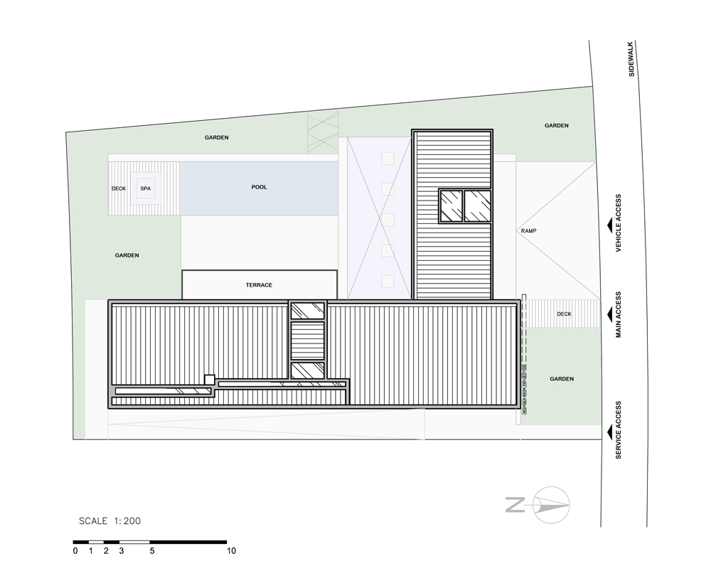
在巴西隆德里纳为一对夫妇和他们的两个十几岁的孩子做的计划通过了。
三层楼的平坦地形。一楼,建在
街道层,包含因跨度而无法看到的洗衣房区域。
形成车库。在车库的上方,人们可以找到起居区和
客人的卧室。大木砖表示通向
豪斯。在三楼,你会发现卧室面对一个巨大的。
露台。进入卧室的通道是一条长长的走廊,明亮。
在天花板和墙壁上用玻璃密封的板照明。这是光吗?
项目的主要财产。它是自由的,富有的,丰富的和慷慨的。
在这房子里,不一样
周围的环境在房子的不同部分之间有着完全的协同作用。大
餐厅、阳台和家庭影院之间没有障碍
可以用墙内的玻璃门关闭。两层楼
墙壁可以很容易地注意到所使用的材料:水泥,砖块和孜然木。这些家具从来没有损坏过。
匹配房屋的精确和经济特征
这个家庭提出的一种复兴的想法。用作地板的材料
或墙壁涂层为对基本笛卡尔语的新解释留出空间。
计划。换句话说,据说是用来在罐头上行走的材料。
实际上是被感动的邪恶和垂直的房子建筑承载着
几个对立的象征-坚固,轻盈,舒适,现代,温暖,
清新与互补,缩短我们梦想之间的距离。
成就是传统住宅无聊的解药。Beto Consorte的照片
Firm Studio Guilherme Torres
Type Residential › Private House
YEAR 2006
SIZE 25,000 sqft - 100,000 sqft
keywordsarchitecture, architecture news, interiors, interior design, portfolio, spec, brands, marketplace, products SF House
关键词建筑,建筑新闻,室内设计,组合,规格,品牌,市场,产品SF之家
客服
消息
收藏
下载
最近




















