查看完整案例

收藏

下载
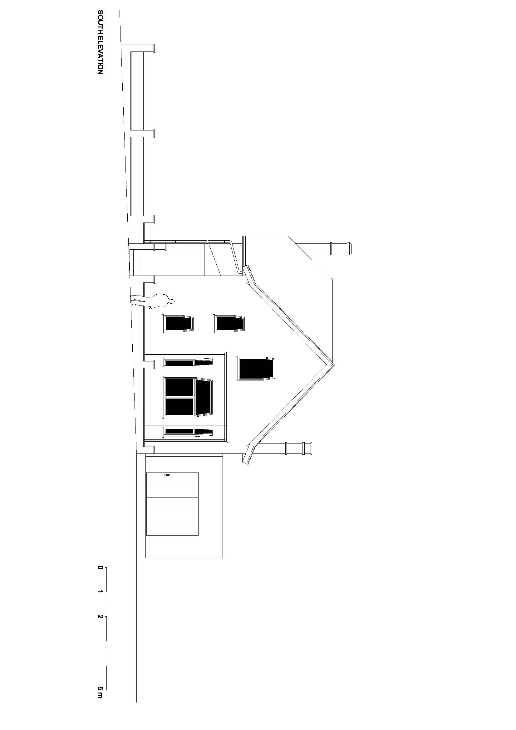
为标致收藏建造车库。除了车库外,该项目还提出了灵活的空间。简单的空间可以存放汽车,也可以容纳居住空间和宽敞的外部空间。从外面看,这座建筑似乎是由一种材料(红砖)建成的。新卷尽可能包括现有的建筑物。
Firm adn Architectures
Type Residential › Private House
keywordsarchitecture, architecture news, interiors, interior design, portfolio, spec, brands, marketplace, products Hecq
键盘体系结构、体系结构新闻、内部设计、内部设计、产品组合、规格、品牌、市场、产品HECQ
客服
消息
收藏
下载
最近



















