查看完整案例

收藏

下载
架构师提供的文本描述。位于西雅加达的13号住宅旨在利用现代建筑的简单线条,提供舒适的居住环境。由于客户不想一直依赖空调,因萨达设计了13号住宅,使其具有工作的交叉通风,这样自然微风就能为主要的居住空间降温。
Text description provided by the architects. Located in West Jakarta, House 13 aims to accommodate a comfortable residential living by utilizing the simple lines of modern architecture. With the client not wanting to be constantly dependent on air-conditioning, Insada designed House 13 to have a working cross ventilation so that natural breezes are able to cool the main living spaces.
© INSADA Design Team
INSADA设计小组
© INSADA Design Team
INSADA设计小组
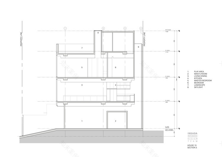
13楼朝向南北方向,3面被邻近房屋所封锁。由于只有一个朝南的立面可供使用,所以外墙的设计必须能够带来充足的光线,同时也要打开,让新鲜空气进来。主门面由低e玻璃幕墙构成,两端可操作模块,由铝型材、穿孔金属板和滑动玻璃门组成。滑动门允许微风进入,穿孔金属板充当昆虫屏幕和铝挤压是为了额外的安全目的。在另一端,允许空气出来是一个三层高的空间,有天窗和通风砖。有了这种配置,一楼和二楼的房子总是被动地冷却。
House 13 is oriented in the north-south direction with 3 sides blocked by neighboring houses. With only one south-facing façade to work with, the façade needed to be designed to be able to bring ample amount of light, as well as opening up to allow fresh air to come in. The main façade is made out of low-e glass curtain wall with operable module on each end comprised of aluminum extrusions, perforated metal sheet, and sliding glass door. Sliding door allows the breeze to come in, perforated metal sheet acts as an insect screen and aluminum extrusions is there for additional security purposes. On the opposite end, to allow air out is a three-story space with skylight and equipped with ventilation bricks. With this configuration, first and second floor of the house is constantly cooled passively.
© INSADA Design Team
INSADA设计小组
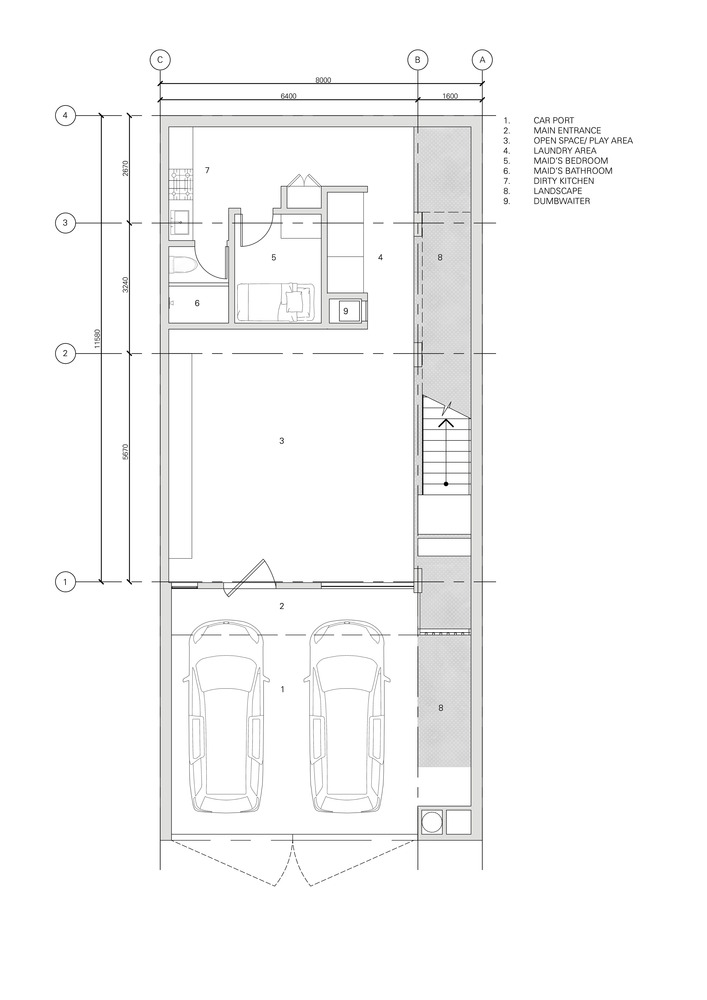
在一楼,房子容纳一个灵活的空间,以供娱乐或工作和女佣的住所。女佣宿舍的集合是独立设置的,在天花板和质量之间创造了通道,以使新鲜空气通过房子的长轴。二楼有一个开放式的厨房、生活和用餐空间,允许交叉通风工作。位于三楼的寝室是唯一能够完全密封以供空调使用的空间。
On the ground floor, the house accommodates a flexible space for play or work and maid’s quarters. Maid’s quarters’ massing is set independently, creating access in between the ceiling and the mass for fresh air to run through the long axis of the house. The second floor hosts an open plan of kitchen, living, and dining space that allows cross ventilation to work. The sleeping quarters located in the third floor are the only spaces that are able to be fully sealed for air conditioning purposes.
© INSADA Design Team
INSADA设计小组
客服
消息
收藏
下载
最近






























