查看完整案例

收藏

下载
架构师提供的文本描述。该项目建在5mx20m的土地上,表面通风。
Text description provided by the architects. The project is built on a land area of 5mx20m with an airy surface
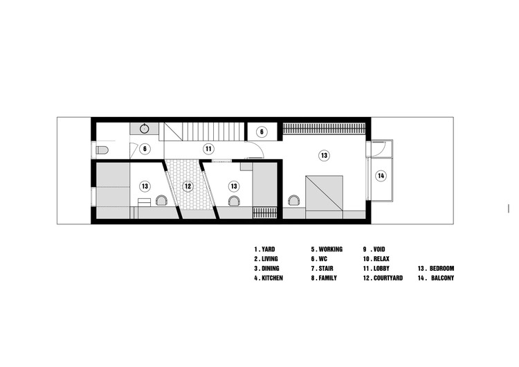
按照城市规划,离开一部分区域到前院和后院后,剩下的建筑面积为5mx12m,这是越南“部分房屋”的典型区域。
After leaving a part of the area for the front yard and backyard in accordance with the planning of the city, the remaining building area is 5mx12m, the typical area for the "portion house " in Vietnam.
© Lê Anh Đức
Đức
从传统住宅的空间来看,“缓冲地带”是当今许多现代住宅无法容纳的一个非常重要的空间,即门廊、中院等。
When approaching from the spaces of traditional housing, we find that the "buffer zone" is a very important space that many modern homes today are no longer able to hold, namely the porch, the loggia, the middle yard...
在这个空间里,外部因素给内部带来了更新的影响,这就积极地推动了控制用户影响的主动行动。
In this space, a renewal impact has been brought by external elements upon the interior, which has actively promoted the initiative the to control the impact of the user.
© Lê Anh Đức
Đức
由于有限的宽度和深度,部分房屋的结构通常是高度发达的。
Due to the limited width and depth, portion house’s structure is usually developed in height.
因此,我们在私人空间之间交替放置缓冲空间,它们的形式和位置在楼层之间是不同的,在这种情况下,缓冲区扮演交通或公共区域的角色,家庭成员在这些空间中连接得更多。
Therefore, we put buffer spaces alternatively between private spaces, their forms and positions are different between floors. The buffer zones, in this case, play roles as traffic or public areas, where family members will connect more in these spaces.
“缓冲空间”是连接私人空间和外部空间的重要链条。
The "buffer space" is like an important chain linking between private spaces, and with the exterior as well.
© Lê Anh Đức
Đức
最后,我们控制外部环境对这些缓冲空间内部的影响。
Finally, we control the effects of the external environment on the interior at these buffer spaces.
© Lê Anh Đức
Đức
自然光被带入缓冲空间,但它必须将热效应限制在内部深处;风入口被创造,出口也是开放的。
Natural light is brought into the buffer space but it must limit the thermal effect to deep in the interior; the wind entrance is created while the exit is also open.
© Lê Anh Đức
Đức
因此,空间是静态的,但它的内部总是在运动,而且我们总是在这些缓冲地带寻找天然物质,以便与外部元素相适应。
As a result, space is static, but its inner body is always moving. Besides, we always search for natural materials in those buffer zones in order to be suitable with external elements.
© Lê Anh Đức
Đức
最后,材料、光线和漩涡空气本身的结合为用户创造了一种清新舒适的感觉,没有任何装饰。
Finally, that the combination of materials, light, and swirl air themselves have been creating a fresh and comfortable feeling for users without any decorations.
© Lê Anh Đức
Đức
客服
消息
收藏
下载
最近





































