查看完整案例

收藏

下载
空灵朴质
客厅的审美有远致的意象,空间的选材来源于自然,以低调细腻的材质、色彩与肌理围合,将平凡的美感投射于如此简朴干净的环境之上,而生活的自由,便可在这样的精神世界中得到追寻。
△单椅:Molteni&C
台阶的轻巧、挂画的节奏、家具的轮廓、绒面的质感、木制的清气、棉麻的浅韵、线条的轻盈、色彩的低饱和度、灯光的温润……各类软饰元素在空间中形成韵脚,串联并营造出空间情绪中的深境。光一寸一寸地落于其间,空灵中有雅。
晚霞明丨主卧
空间的铺叙看似平淡素雅,设计将思考的切面还原到居住,将生活的所有降回本质,由此映射出居住者日常的充实和情感的丰富。墙角置放的一幅砖红色挂画,在素雅的空间内装点出情绪色彩,艺术上的神韵油然而生,令人遐想一幕“荷花落日红酣,坐摇余生清闲”的悠哉情景。
湖风清丨长辈房
在设计师的理解中,当人的精神足够自由的时候,纳入其眼里的,不止有物象呈现的美感,更有物象呈现着的灵魂生命而引起的共感。因而设计以空灵反衬境界的丰实,使人在摇曳荡漾的律动与谐和中,引发无穷的意趣、绵渺的想象。一株蝴蝶兰临窗盛开,一幅暗绿色挂画随意摆放,在暖光下营造出“湖畔柳,一抹碧苕苕”这样深静的词境。人居住在此,其日常是清静淡雅的,而感受则是从闲适中获得真意,舒心恒远。原野望丨儿童房
楼梯往上的二层,是属于儿童的起居空间。空间的节奏做了更为轻快昂扬的变化,情调上是清净明亮的打造。
△地毯:Alexandra Kehayoglou(阿根廷)
“燕子渐归春悄,帘幕垂清晓”,儿童房营造的是春天的味道。入眼是充满野趣的草原地毯,不同饱和度的青色带给人从视觉上到心理上的舒适感受,有趣的吊床搭载着孩子的好奇心与活泼力,让孩童有更丰富的想象余地。“房子是物质的,而生活必须是诗意的”,李益中先生说道。在这个作品中,设计不沾不滞,以自由谐和的形式,探索生活最深的意趣。物象在他的设计表达中自成境界,形成一种距离,空间丰实而空灵,精神自得而自由。
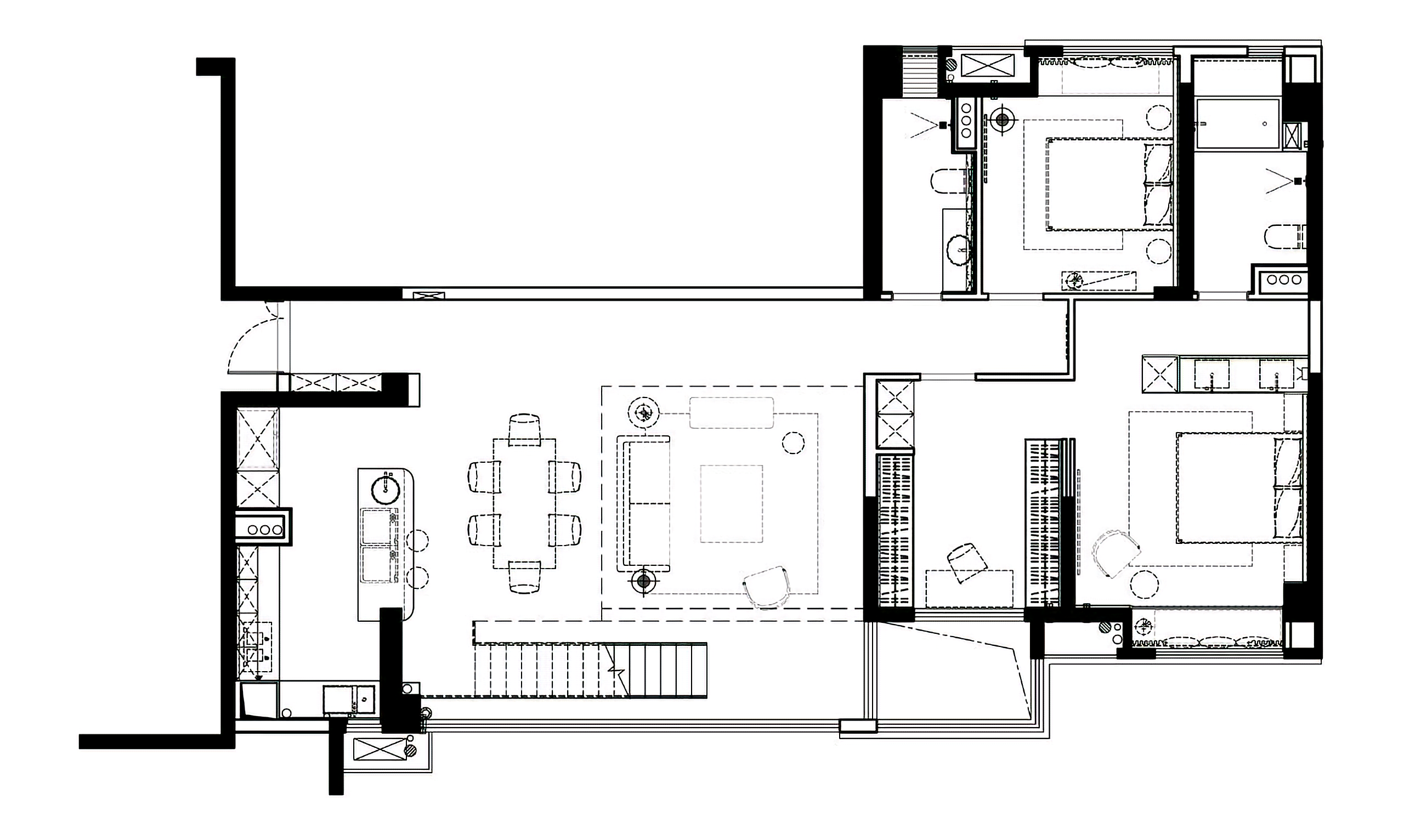
△一层平面图
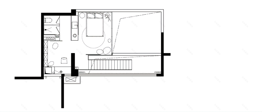
△二层平面图
客服
消息
收藏
下载
最近
























