查看完整案例

收藏

下载
业主是一对年轻的80后夫妇,青梅竹马,两小无猜,幸福过往,从高中到大学,携手相濡以沫,一起从这个最初陌生到很熟悉的城市打拼,男主从事多年的电子事业,一丝不苟的职业素养,严谨的工作态度,对家的向往是轻松的,简单的,女主从事多年的时尚餐饮品牌,对家的要求是时尚感和舒适感,多次的碰撞与沟通,对简单舒适的诉求达到更多的契合,于是便开启了一场愉快的装修设计之旅!
楼梯的设计要体现简约,又要使客餐厅不要过于拥挤,采用极简的玻璃架构,定制的木扶手和搭配的石材效果,使楼梯在使用上达到了时尚也体现了整体设计风格的统一!
书房简洁利落,通过木皮以及灯光的设计运用,使得这一方小天地更为舒展开朗,同时使屋主细腻而精巧的生活运用其中!
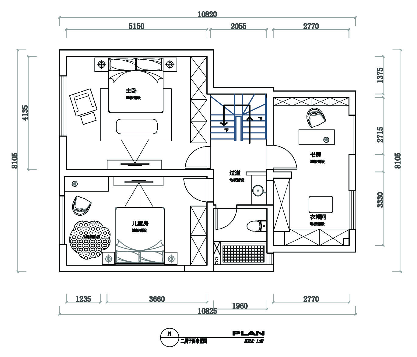
本案原建筑为上下两层结构,设计师通过空间的合理划分,一楼为主要为活动区域,二楼为寝室,通过布局调整,将屋主的合理需求进退有序的诠释出来,整体风格呈现灰色系,素雅的材质运用,纯粹的色彩使人更能轻松下来!大量运用木饰面和石材,客厅的连贯设计与房间的过渡是设计的难点,设计上采用隐形门的过渡使空间得到整体延续,石材的运用为空间增添更多活力,为了更好体现设计的统一,木饰面的运用从墙体、楼梯、房门、台盆柜体、书房等等,做到统一延伸,让空间的设计感达到统一高度。
客服
消息
收藏
下载
最近




















