知末
知末
创作上传
VIP
收藏下载
登录 | 注册有礼

人宠雅居 48平方米高密度人宠的优雅混居

2018/04/24 09:00:00
查看完整案例
微信扫一扫
收藏
下载
人宠雅居   48平方米高密度人宠的优雅混居-0
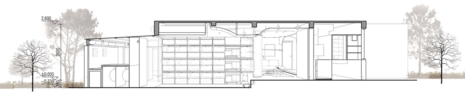
在高密度的人宠混居状态下,人与宠物的关系是整体设计的重点,首先是对整体功能分区的重新梳理,人类的空间与宠物的空间相互咬合,形成了阴阳的2个空间体系。客厅,次卧和主卧形成人居住的空间,走廊加上院子中的2个小屋形成宠物的空间。两个空间相互咬合渗透。半透明的移动门开启人类世界与宠物生活
人宠雅居   48平方米高密度人宠的优雅混居-2
人宠雅居   48平方米高密度人宠的优雅混居-3
人宠雅居   48平方米高密度人宠的优雅混居-4
人宠雅居   48平方米高密度人宠的优雅混居-5
人宠雅居   48平方米高密度人宠的优雅混居-6
半透明的移动门开启人类世界与宠物生活
人宠雅居   48平方米高密度人宠的优雅混居-8
人宠雅居   48平方米高密度人宠的优雅混居-9
人宠雅居   48平方米高密度人宠的优雅混居-10
人宠雅居   48平方米高密度人宠的优雅混居-11
人宠雅居   48平方米高密度人宠的优雅混居-12
人宠雅居   48平方米高密度人宠的优雅混居-13
人宠雅居   48平方米高密度人宠的优雅混居-14
人宠雅居   48平方米高密度人宠的优雅混居-15
人宠雅居   48平方米高密度人宠的优雅混居-16
人宠雅居   48平方米高密度人宠的优雅混居-17
人宠雅居   48平方米高密度人宠的优雅混居-18
人宠雅居   48平方米高密度人宠的优雅混居-19
人宠雅居   48平方米高密度人宠的优雅混居-20
人宠雅居   48平方米高密度人宠的优雅混居-21
人宠雅居   48平方米高密度人宠的优雅混居-22
人宠雅居   48平方米高密度人宠的优雅混居-23
人宠雅居   48平方米高密度人宠的优雅混居-24
人宠雅居   48平方米高密度人宠的优雅混居-25
人宠雅居   48平方米高密度人宠的优雅混居-26
人宠雅居   48平方米高密度人宠的优雅混居-27
南京喵熊网络科技有限公司 苏ICP备18050492号-4知末 © 2018—2020 . All photos and trademark graphics are copyrighted by their owners.增值电信业务经营许可证(ICP)苏B2-20201444苏公网安备 32011302321234号
客服
消息
收藏
下载
最近