查看完整案例

收藏

下载
架构师提供的文本描述。在圣洛伦佐·德·埃斯科里亚山阿班托斯山南坡松林中的一片空地上,这座房子坐落着一棵现存的霍姆橡树。
Text description provided by the architects. In a clearing in the pine forest of the southern slope of Mount Abantos of San Lorenzo de El Escorial is situated the house, that embraces an existing Holm oak.
© Jesús Granada
(Jesús Granada)
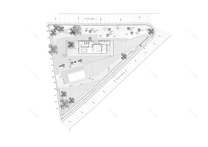
Ground floor plan
© Jesús Granada
(Jesús Granada)
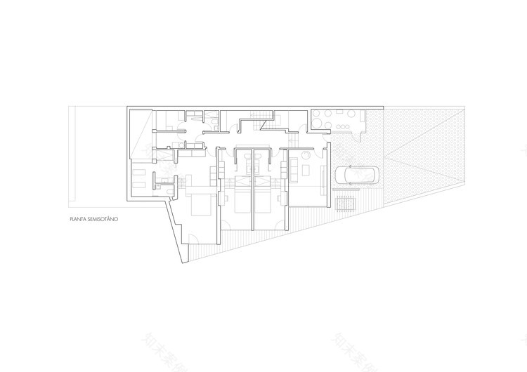
Basement floor plan
地下室平面图
© Jesús Granada
(Jesús Granada)
这个地方是一个优越的有利位置,南面有独特的景色,从瓜达拉马山脉到马德里市的平原在视觉上占主导地位,马德里的地平线被新建筑的高塔所标出。
The place is a privileged vantage point with unique views to the south, visually dominating the plain that extends from the Sierra de Guadarrama to the city of Madrid, which is framed the horizon signed by the high towers of new construction.
Axonometric 01
Axonometric 01
Axonometric 02
Axonometric 02
Axonometric 03
Axonometric 03
因此,这座房子被设想成一个大露台,开阔而清澈。它分为两层:上面有公共区域,很有渗透性,就像风景上的漂浮亭;下一层有卧室,嵌在从门廊和窗户向南打开的地方的岩石中。
Therefore the house is conceived as a large gazebo, open and clear. It is organized into two levels: the upper with public areas is very permeable, like a floating pavilion on the landscape; and the lower, with the bedrooms, is embedded in the rock of the place opening through porches and windows to the south.
© Jesús Granada
(Jesús Granada)
将房屋的两层连接起来的系统是一个混凝土板,可以折叠和塑造整个围护结构。就像它是一层,甲板平面图被美化,所以从斜坡顶部房屋被认为是天然的土壤,而它的内部是开放和明亮的。
The system that relates and connects the two levels of the house is a concrete slab that folds and shapes the overall envelope. As if it were a floor, deck plans are landscaped, so that from the top of the slope the house is perceived as natural soil, while since its interior is open and bright.
© Jesús Granada
(Jesús Granada)
客服
消息
收藏
下载
最近



































