查看完整案例

收藏

下载
© Tim Crocker
提姆·克罗克
架构师提供的文本描述。策划人之家采用维多利亚方言的普通语言和现代设计,为我们的客户、他们的孩子和他们自己经营的企业创造一个非常普通的家。该建筑和室内设计是与国内创造机会,以展示精心挑选,深受喜爱的财产和物品出售。虽然我们的客户是功能性的,但我们的客户希望解决他们现有住宅的自然光水平低和空间有限的问题,以便进行家庭社会生活、更大的聚会和容纳不断扩大的家庭经营业务。
Text description provided by the architects. The Curated Home embraces the ordinary language of the Victorian vernacular and contemporary design to create an extra-ordinary home for our clients, their children, and their home run business. The architecture and interior design are concerned with the domestic to create opportunities for the display of carefully chosen, much-loved possessions and items for sale. Although functional, our clients wanted to address the low levels of natural light and restricted space in their existing home to allow for the family social living, larger gatherings and to accommodate an expanding home run business.
© Tim Crocker
提姆·克罗克
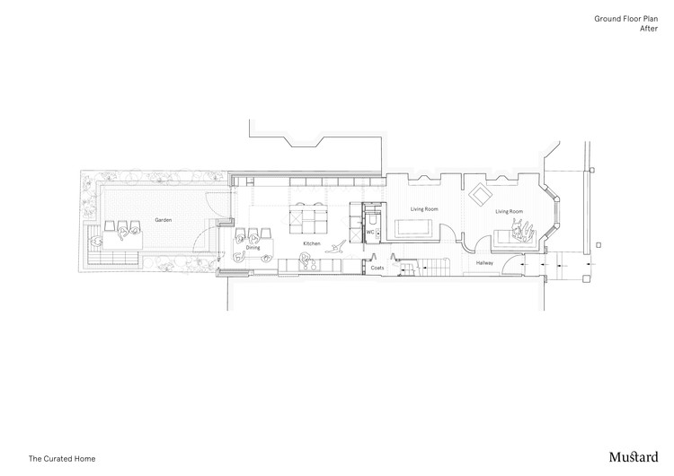
Ground Floor Plan
© Tim Crocker
提姆·克罗克
实用空间和开放式平面设计并不总是齐头并进,但通过将现有的方言与现代设计相结合,我们打开了布局,为我们的客户创造了一系列的自然延伸维多利亚式住宅。现有的木材镶板,砖瓦和装饰色彩的节奏贯穿,定义了新的厨房用餐空间,同时隐藏了更现代的电器,存储和方便。
Practical space and open plan design don’t always go hand in hand but by combining the existing vernacular with a modern design we opened up the layout and created a series of natural extensions to our clients Victorian home. Rhythms of existing timber paneling, brickwork, and decorative colors carry through, defining the new kitchen dining space whilst concealing more modern appliances, storage, and conveniences.
餐厅橱窗座椅插入花园,并与外部砖头座椅镜像,使内部和外部之间的社交对话。后花园景观由两个大橡木框架枢轴开口构成,花园作为餐饮、社交和游乐空间的功能延伸。在阁楼,传统的木材木板和暴露的油漆砖块线墙和天花板创造了一个意想不到的,但熟悉的充满光线的家庭办公室。该项目称赞期和现代设计,满足了我们的客户的目标,简单,有用,美丽。
The dining window seat projects into the garden and is mirrored with an external brick seat enabling sociable conversation between the inside and out. Views of the rear garden are framed by two large oak framed pivot openings with the garden forming a functional extension to the kitchen as a dining, social and play space. In the loft, traditional timber boarding and exposed painted bricks line walls and ceilings creating an unexpected yet familiar light-filled home office. The project compliments period and modern design, fulfilling our clients’ ambitions of simplicity, usefulness, and beauty.
© Tim Crocker
提姆·克罗克
Architects Mustard Architects
Location London, United Kingdom
Area 250.0 m2
Project Year 2017
Photographs Tim Crocker
Category Houses Interiors
Manufacturers Loading...
客服
消息
收藏
下载
最近

















