查看完整案例

收藏

下载
住宅平面布局以最大程度契合周围环境为宗旨,将自身隐匿于葱郁的树林中,并不损害场地里的一草一木。
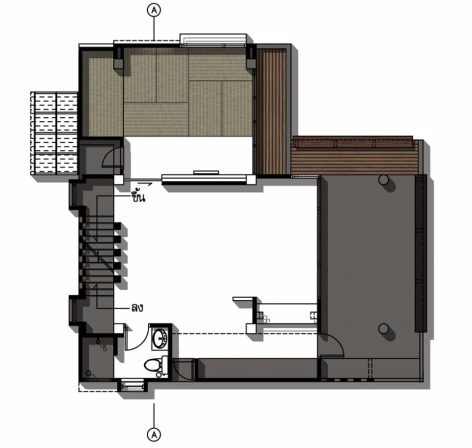
住宅共三层,分为三个主要功能区域。随着天色和周围环境的变化,住宅的独特之处愈加明显。低调的外形让住宅拥有与环境的极高融合度。
居住空间布局简单清晰,连贯自如,营造出舒适放松的生活氛围,同时又实现了节能减排的环保标准。
例如口袋空间将风引入住宅中,充足的日光实现了日常紫外线杀菌效果。建筑材料的选择谨慎小心,力图实现每一种素材的使用都与其功能环境相匹配,建筑造价也因此得以全面把控。
由于场地中植有一片茂密的芒果树林,为了不对树林进行破坏,设计师决定将住宅建造在树林一角,完美避开了所有的大树,使住宅享受绿荫环绕的恣意空间,和不受侵扰的安全私隐。
客服
消息
收藏
下载
最近
























