查看完整案例

收藏

下载
从「最有感的设计」出发,文仪设计 擅于融合居住者喜好与生活条件,描绘出最纯粹的理想家居。由于屋主本身是插画家,对于色彩特别敏锐,而母亲则是日式花艺师,希望住宅能融合日式美学,考量一家人皆热爱艺术,如何平衡日式和风及色彩区块为设计要点。设计总监李绍瑄综合各方需求要素后,将空间设计利用法式简约线板、搭配立基于包浩斯的几何色块,于公共区的天蓝与白色线版中央漆上米白色,借此中和冲突感,可说是针对色彩下足功夫,再与日本主义的和风感相融,提出极具当代风格的混搭寓所。
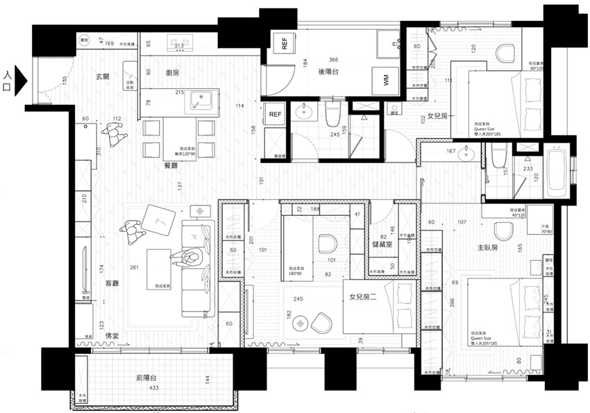
从居住者习惯为题,设计成兼具开放、隐藏功能鞋柜,宛如阶梯的格状柜体能依照鞋子高度妥善收纳,譬如平底鞋、高筒靴等;一旁则揉合日式禅意与花艺用途,采用木桌、木柱展现静心氛围,细腻为居住者日常着想。
开放式公共区以屋主喜爱的天蓝为基调,为空间注入活泼动力,地面铺叙带有温润气息的海岛型超耐磨地板,提供沉静气息。而于住宅导入色彩最需要注意的是整体平衡,李总监提出「留白」概念,适度地利用白色线板搭配,并于两色相交处辅以米白调和,借此减低色彩冲突。
此外,她也不藏私的分享家具的配置技巧,「要依照空间既有的颜色选择,譬如灰墙配灰沙发,加上部分颜色对比,如水蓝单墙利用橘色挂画调和。」诉说对于设计的细腻巧思;面对以俐落线板施作的电视墙旁,选用伸缩桌面当成小型神明厅,塑造整体素净样貌。
将原来的单间厨房改为开放式、连结餐桌,打造凝聚家人情感的生活中心,并导入实际需求于墙面使用好清洁的木纹砖,中岛水槽则能因应平时洗涤蔬菜、水果及插花剑山等用途。
有别于公共区的鲜明色彩,主卧采用裸色线板+ 白墙设计,呈现花艺师的柔和情调,并考量原始主卫过于壅挤,将洗脸盆移至外围兼作化妆台,充分使用坪效,此处于地面铺叙木地板与灰砖界定区域。另外,针对屋主母亲平日的穿衣需求,衣柜采用兼具开放、封闭之柜体,能依照习惯放置外出外套,保持衣物整洁。
踏入次卧,眼见丰富的色彩层叠,不难发现这是插画家的房间。大面积的花纹线板连结苹果绿单墙,转接处结合蓝绿色妆点,依照空间功用施作深浅木地板界定舒压工作区、及睡寝场域。
现代 法式 住宅 简约 木元素
客服
消息
收藏
下载
最近
















