查看完整案例

收藏

下载
项目名称:金科御临河合院别墅
设计公司:北京纳沃佩思艺术设计有限公司
设计团队:空间设计:王超、李静
陈设设计:岳晓瑞、陈晓蕾
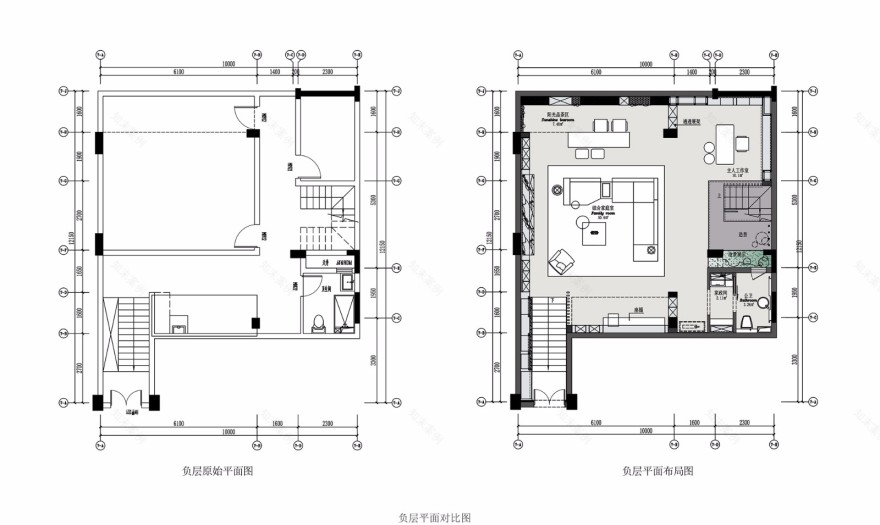
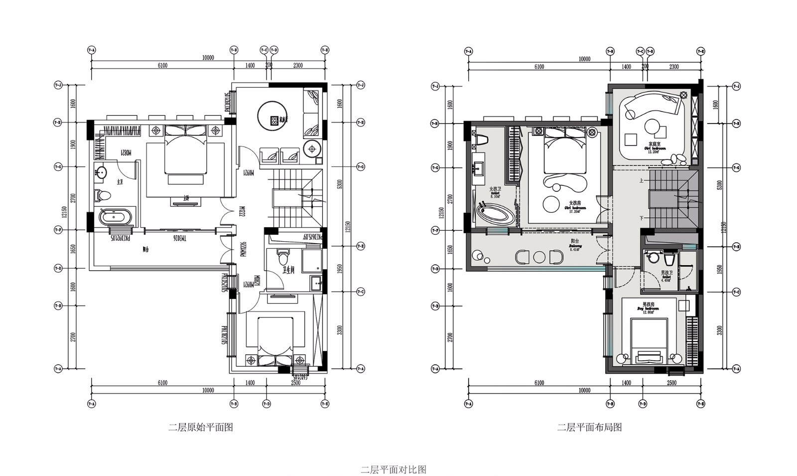
项目面积:322.2㎡
摄影师:B+M Studio 彦铭
项目基地东临长江支流御临河,背依铁山山脉石壁山,自然条件十分优越。基地位居两江大道东侧,内部有天然湖景资源,地势高低有致,建筑依据地形围湖而造。基地西侧近两江大道,建筑多为高层,隔离了繁华的街区,使得内部居住环境相对安静。合院位于天然湖的西北方位,几近中心区域,自然环境极为优美。
低密度的建筑群落与建筑基地独特的自然环境相融合,形成了生态性的地域场所,这在一定程度上决定了其客户的群体及属性。基于这一条件,及当地深厚的文化底蕴,加之建筑本身空灵简约的风格特点,本案着力塑造一个现代、时尚、内敛又不失风度的空间。在硬装方面,居住空间更注重同类材质自身的细腻程度,及不同材质之间的相互统一,努力探索不同材质的运用、转化方式及其分割比例与空间的和谐程度,追求空间横向的流畅性和纵向的秩序感。软装方面则更注重细节的把握,大面积的材质家具间之几件硬质家具,软硬质感相互抵消,使空间达到一个平和的状态。不可或缺的,零星的红色点缀在空间各处,整个空间便有了生气。
现代 别墅豪宅 金属 大理石 木元素
客服
消息
收藏
下载
最近




























