查看完整案例

收藏

下载
客户:广州誉东健康制药有限公司
项目地点:中国广东广州
室内建筑面积:249㎡
项目设计时间:2017.07
项目完成时间:2017.11
材质:阳极氧化铝板,乳胶漆,人造石,木饰面板
每当眼皮打开的时候便是感官器与光接触的开始,清晨拨开窗帘兴奋的刹那正是因为光切入室内的瞬间。生物学明确了兴奋感会促使多巴胺的分泌,在工作环境中足够的多巴胺会使人愉悦地完成一天的工作。
这次委托我们设计的业主是医药健康方面的研发者,众所周知科研是一门相对枯燥和严谨的工作,从事科研工作必须保持高度的专注度。从行业的特性考虑我们决定结合兴奋会促使多巴胺分泌的这一生理反应,把早晨的兴奋条件延续到工作环境中,一个被光切割出来的空间成为了我们的设计目标。
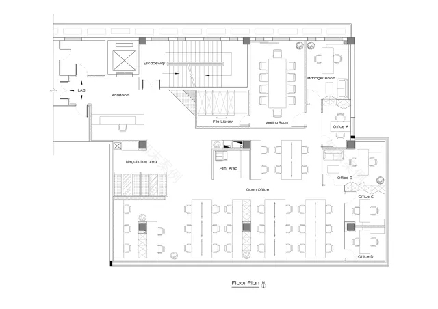
在不足250平米的使用面积上规划多功能办公环境本身就是尺寸之地,特别是设计任务中含有相当数量的开放办公位和独立办公室,要完成开始拟定的设计目标只在平面和立面上体现,显然是不足以的,于是我们把设计的核心转移到了天花。
用灯光以45°的斜切形式作分割处理,同时也担任起各功能空间的连接,点缀之处利用灯光延伸至立面,洽谈区墙面两条仿佛天花投射下来的光影效果就是其中一种延伸方式。
作为核心的天花由灰白两色组成,晴天时由于室外日照光过于强烈,灰色部分规划在南向靠大型落地窗的天花部分,一是为了减低室内的二次反射光,二是增强室内暗藏灯带的明度对比,三是增加空间的层次感,空间完成后我们发现在常规理解范围内的白色乳胶漆成为了灰色,暗藏的灯带成了白色,这个也是我们的一个惊喜之处,因为我们又多获得了一个空间层次。
现代 办公区 木质 分割
客服
消息
收藏
下载
最近



















