查看完整案例

收藏

下载
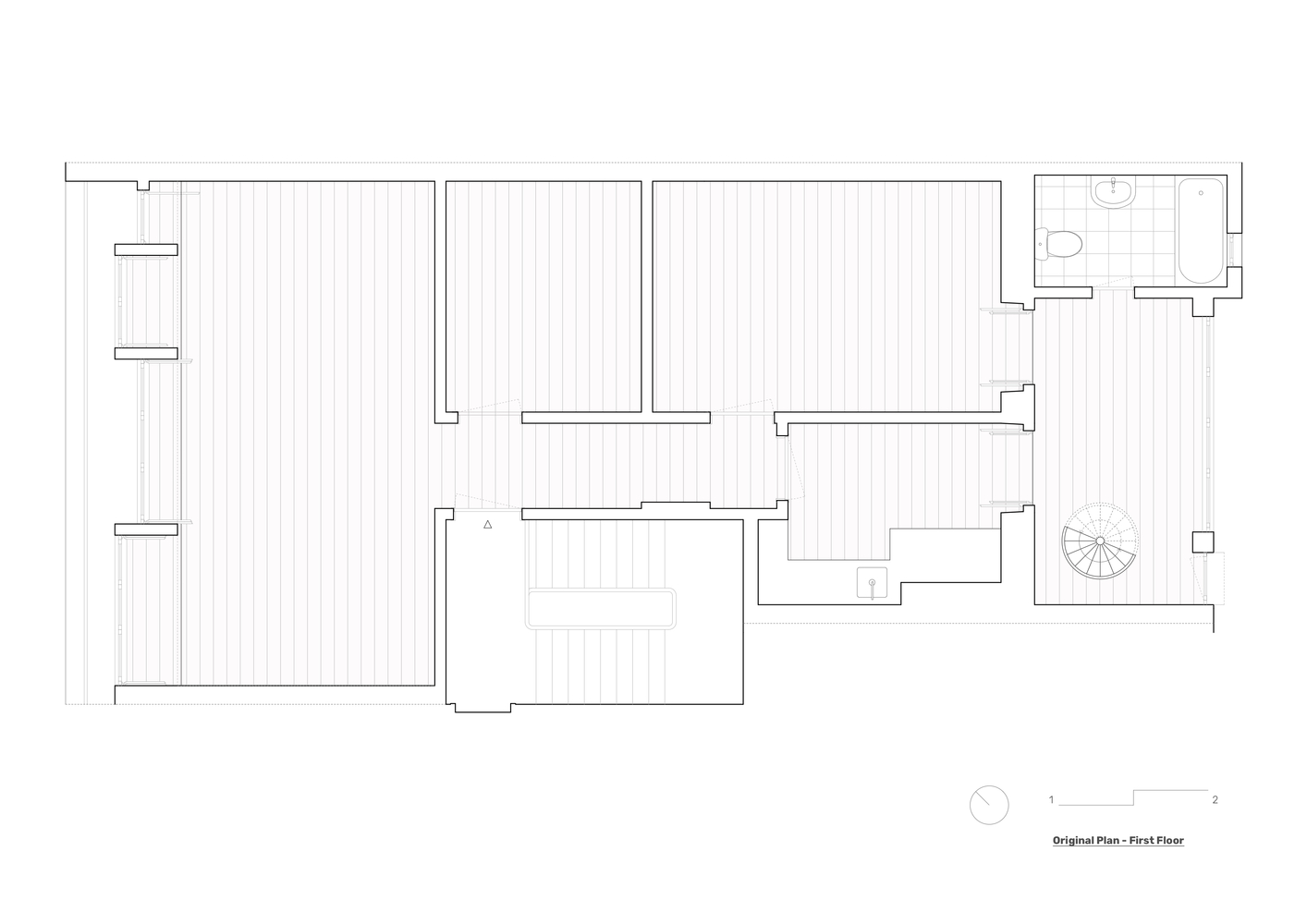
当他们注视着这间装修过的公寓的现代内部时,他们正站在一座20世纪的老建筑里。这要归功于在80年代进行的大规模的改建工程,在那里,大楼被彻底翻新。
画廊露台上的景色,可以欣赏到河的美妙景色。
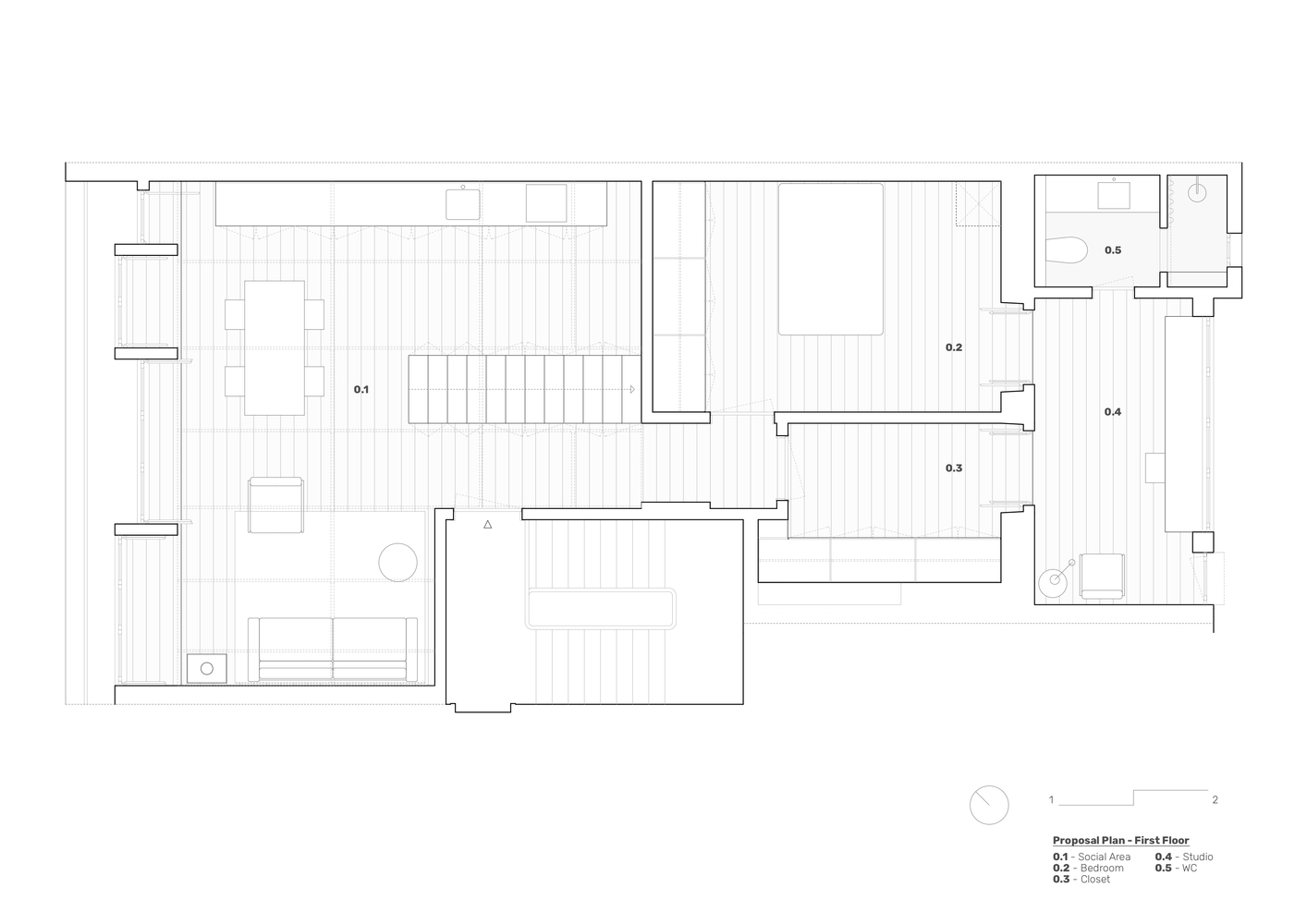
公寓分为两层:第一层是普通住宅区;第二层是第一层上面很少使用的露台区,在那里建造了一个非正式的储藏区。这种干预扭转了这两个层次之间的分离,并试图将公寓的内外区域统一起来。
可欣赏到带壁炉和木地板的舒适客厅
建筑公司Arriba在建筑师JoséAndrade Rocha和Filipe Ferreira的指导下,负责执行位于葡萄牙里斯本DOM Vasco的115平方米项目。
在画廊厨房区,中间有木制楼梯。
我们推荐这些项目公寓,典雅的公寓,俯瞰台北的河流,由LCGA Dise o豪斯设计,采用现代结构,用红砖建造,在乌克兰的Dnipro有玻璃墙。
该提案重组了公寓空间,清空了露台,使用了无人居住的阁楼屋顶的高度,暴露了屋顶的结构和老建筑的气氛。现在的社交空间包括厨房,而私人空间则在公寓的后面。
木楼梯是组织的元素:公寓的组成部分,建立入口,厨房,客厅,让您进入露台,可以俯瞰河流,在那里你可以享受阳光。
展览厅内设有大理石柜台的厨房
在画廊餐厅和厨房内可以看到木制地板和白色的梁顶。
画廊木制楼梯景观
通向露台的画廊门的视野
从楼梯上看公寓的画廊视图
可在画廊看到木质和白色的舒适房间
画廊中的视图
白色装饰的画廊浴室景观
可俯瞰河流的画廊研究区
画廊中的视图
画廊中的视图
画廊中的视图
画廊中的视图
画廊中的视图
keywords:Bathroom Bedroom Bookshelf Contemporary Interior Design Decorative Accessory Dining Room Exposed Ceiling Beams Fireplace Hall and Entrance High Ceiling Kitchen Lighting Living Room Rug Staircase Terrace Wall Decor Wood Floors
关键词:浴室,卧室,书架,现代室内设计,装饰附件,餐厅,暴露天花板,梁,壁炉,大厅和入口,高天花板,厨房,客厅,地毯,楼梯,阳台,墙面装饰,木地板
客服
消息
收藏
下载
最近



















