查看完整案例

收藏

下载
巴塞罗那的联合办公空间的设计非同一般,颠覆对传统的印象。没有任何时尚的吊灯,给人十分舒适的工作氛围。 你在这个地方找不到任何多余的装饰。
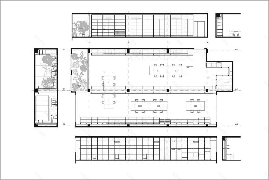
由建筑事务所 APPAREIL 设计,这家位于巴塞罗那的联合办公室打破传统设计。事实上,简洁的线条和完美的细节是唯一的配件,是一个自由流动的,不受阻碍的空间。项目位于巴塞罗那波里诺地区一座仓库建筑的顶层。保留原始结构以混凝土工业风为主。墙面木板搁架的巧妙设计,呈现多元化的组合。
一个简单的设计,一个矩形的开放空间,它包含两个要素的,木质多功能的墙壁,还有办公所有必要的设备。空间划分和家具摆放则受到工作人数与内容的影响,根据需求随意组合。所有家具都可以组合收纳起来,以适应建筑师和企业家不同的工作性质。厨房和卫浴位于空间的尽端,简单却功能齐全,而另一侧花园面朝着蔚蓝的大海,感受春暖花开。
这个空间专为设计工作者而作,也是一个多行业交融创造互动的一次尝试。 将不一样的人聚集于此,在集中了无数灵感的街区中创造出一个创意中心。
Appareil 建筑事务所 | 巴塞罗那创意街区CO-WORKING
办公空间 简约 混凝土 联合办公
客服
消息
收藏
下载
最近














