查看完整案例

收藏

下载
室内和软景观设计GCR设计更多规格少规格
Interior and Soft Landscape Design GCR Designs More Specs Less Specs
© Scott Burrows
C.斯科特·布伦斯
架构师提供的文本描述。雷德克里夫住宅是为一个大家庭和他们的亲密朋友设计的一个宽敞的静修所。活动的重点是为大型集会提供娱乐设施,包括举办公共艺术活动和音乐演奏会,但也有机会从事个人活动,如绘画、写作、阅读、烹饪,甚至静思。
Text description provided by the architects. The Redcliffe Residences have been designed as a spacious retreat for an extended family and their close friends. Whilst the focus is on entertaining with facilities for large gatherings, including the hosting of public art events and of music recitals, there is also the opportunity to undertake individual pursuits such as painting, writing, reading, cooking and even quiet contemplation.
© Scott Burrows
C.斯科特·布伦斯
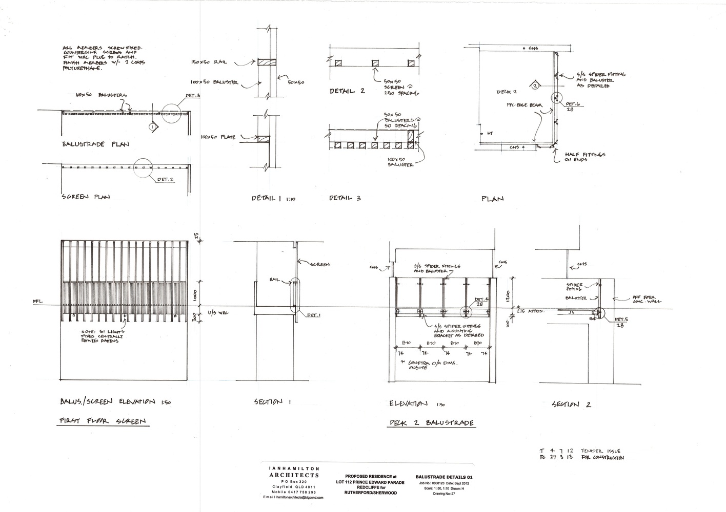
Ground and First Floor Plan
一楼及一楼图则
© Scott Burrows
C.斯科特·布伦斯
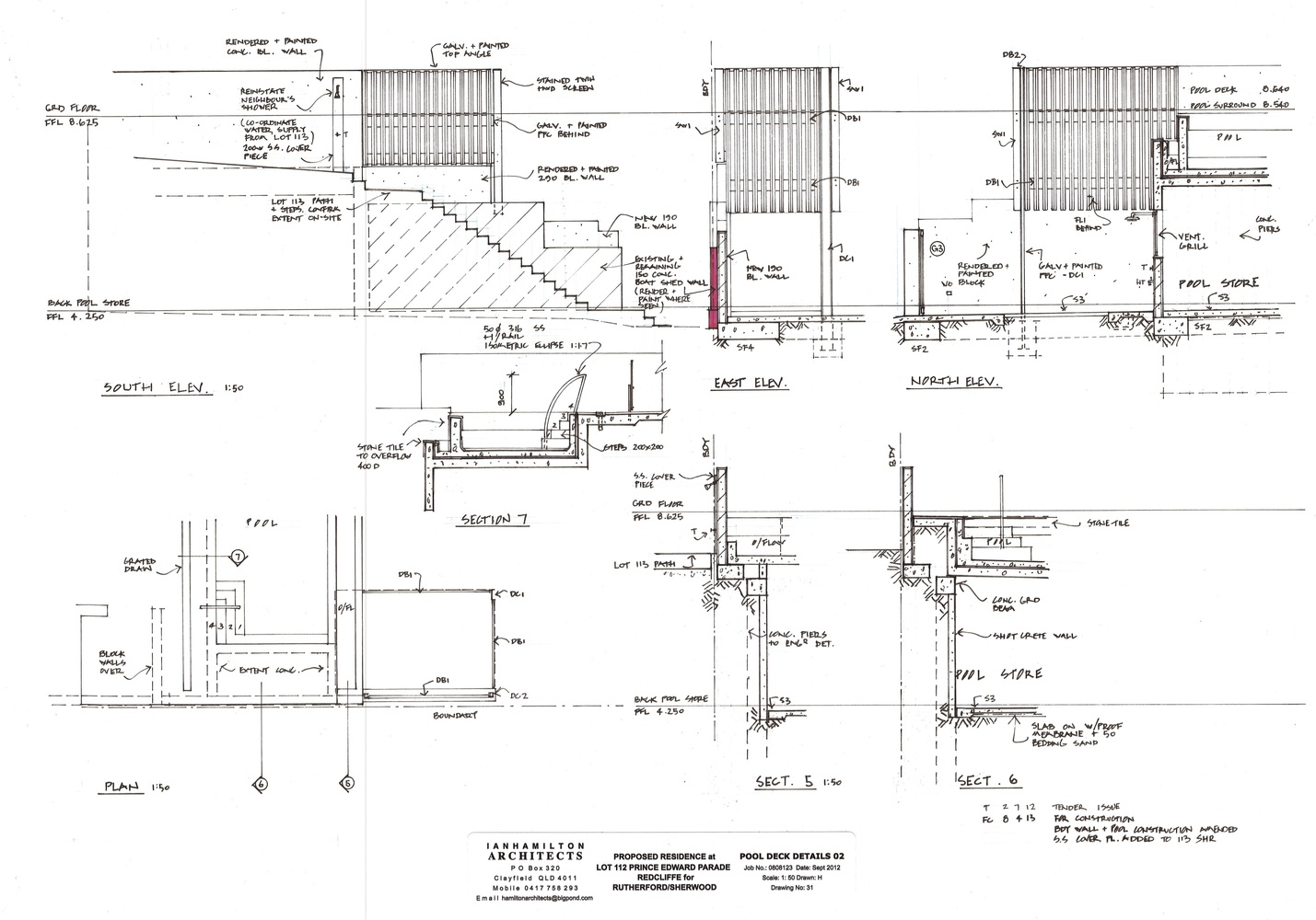
位于雷德克里夫公共广场上方,住宅俯瞰莫顿湾和莫雷顿岛,而屋顶露台则看到遥远的西部山脉。视图是通过内部和外部对开口的操作和位置来精心设计的。虽然定位相当公开,但通过水平变化和各种形式的筛选来维护隐私。
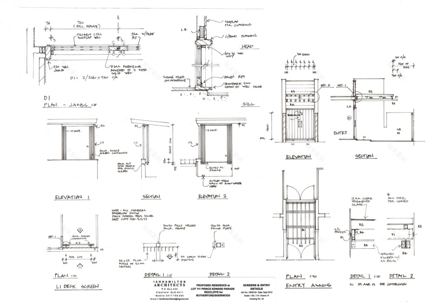
Situated above the public Esplanade at Redcliffe, the residences overlook Moreton Bay and Moreton Island, whilst the rooftop Terrace sights the distant western ranges. Views are carefully framed through the manipulation and location of openings, both internally and externally. Though located quite publically, privacy is maintained through level changes and various forms of screening.
© Scott Burrows
C.斯科特·布伦斯
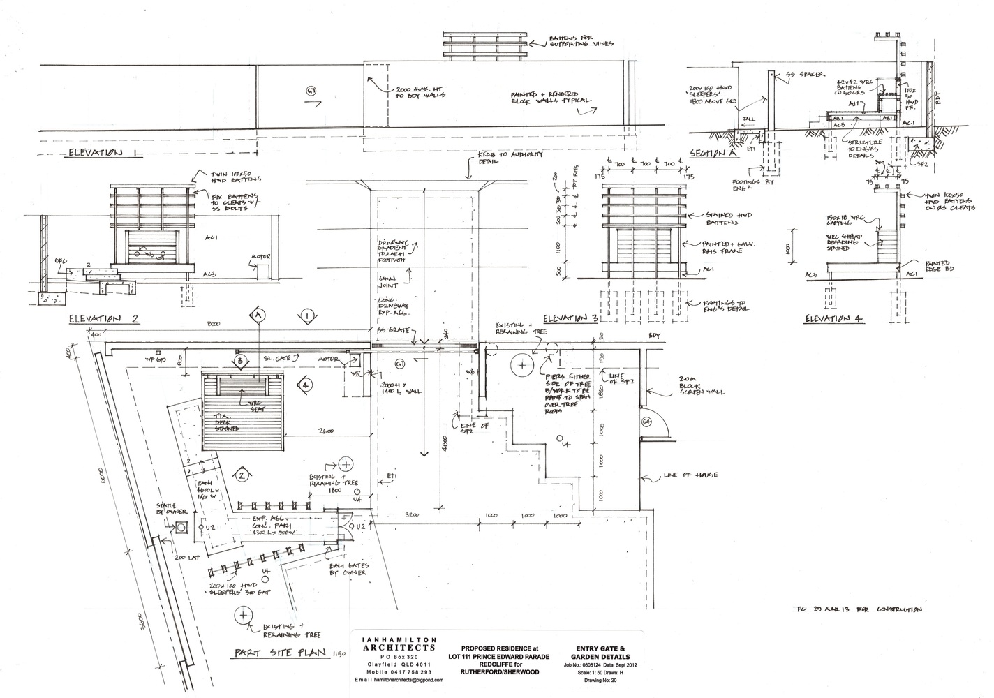
通往海滩和海湾的通道通过安全的入口直接穿过海滨大道。雕塑作品被放置在景观的内部和外部。选定的艺术品在画廊空间中显示和旋转。在一个典型的海洋环境中,使用了耐磨和低维护材料。有限的色彩调色板创造了一个统一的,但单独的,身份的住宅。
Access to the beach and bay is directly across the Esplanade through secure portals. Sculptural pieces are positioned both internally and externally within the landscape. Selected artworks are displayed and rotated in the gallery spaces. Hard wearing and low maintenance materials have been used, in what is a typical marine environment. A limited palette of colors creates a unified, yet individually separate, identity to the residences.
© Scott Burrows
C.斯科特·布伦斯
Architects Ian Hamilton Architects
Location Redcliffe, Australia
Lead Architects Ian Hamilton
Area 870.0 m2
Project Year 2015
Photographs Scott Burrows
Category Houses
Manufacturers Loading...
客服
消息
收藏
下载
最近

















































