查看完整案例

收藏

下载
© Matthew Carbone
(马修·卡伯恩)
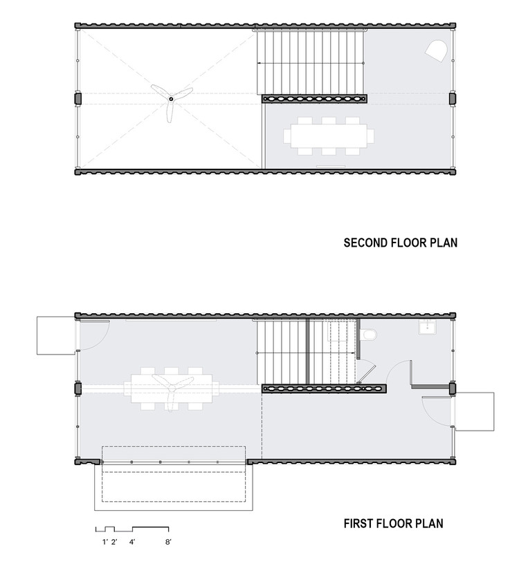
架构师提供的文本描述。巴德学院实验人文实验室系由4个回收集装箱组成。它们安装在校园中央半天,靠近弗兰克·盖里音乐厅,如图所示,并在几周内全面投入使用。这一双宽、双高的布局提供了一个15英尺宽、17英尺高的主空间,以及一个总面积为960平方英尺的二楼办公室。
Text description provided by the architects. The Bard College Department of Experimental Humanities’ Lab is made from 4 recycled shipping containers. They were installed in half a day in the middle of the campus, close to a Frank Gehry concert hall, completely finished as shown, and fully operational in a couple of weeks. The double-wide, double tall arrangement yields a 15’ wide, 17’ tall main space, and a second-floor office totaling 960 sqft.
Floor Plans
平面图
© Matthew Carbone
(马修·卡伯恩)
该项目产生于10万美元的赠款,在半天内预制、交付和安装,费用略高于20万美元。作为一个原型,它为学校和大学提供了解决其紧迫的教室空间需求的负担得起的解决方案。预算要求我们探索传统建筑以外的选择。我们利用我们以前的一些探索和项目与航运集装箱,并提供了一个完全预制的建筑,不需要更多的现场工程,就像浇筑混凝土地基墙。在为期半天的安装结束时,实验室被占用,几天内就完全投入使用。
The project arose out of a grant of $100,000 and was prefabricated, delivered and installed in half a day at a cost slightly over $200,000. As a prototype, it offers schools and universities an affordable solution to their urgent classroom space needs. The budget required that we explore options beyond conventional construction. We tapped into some of our previous explorations and projects with shipping containers and offered a completely prefabricated building that needs no more on-site work than the pouring of concrete foundation walls. At the end of the half-day installation, the Lab was occupied and within a few days, fully operational.
© Matthew Carbone
(马修·卡伯恩)
实验室将在学院的不同部门之间轮换;因此,灵活性是被赋予的。通过增加一个大的旋转车库门,打开一个四边形,主房间,一个17英尺高的空间,将转变为舞台-为表演,音乐会和戏剧活动-吸引四重奏,并确保建筑与整个校园之间的富有成效的关系。
The Lab will rotate between various departments at the college; flexibility was, therefore, a given. By adding a large pivoting garage door that opens to a quad, the main room, a 17’ tall space, will transform to a stage-set for performances, concerts and theatrical events — engaging the quad and ensuring a productive relationship between the building and campus at large.
© Matthew Carbone
(马修·卡伯恩)
我们的做法是努力用负担得起的项目来抵消我们更稳健的预算项目。作为独立产品,我们提供的前置解决方案是美国任何城市或近郊地区最廉价的建筑解决方案之一。我们希望他们能够帮助个人、组织和企业,否则他们将无法参与架构师和架构来满足他们的建筑需求。
Our practice has made an effort to off-set our more robustly budgeted projects with affordable ones. The pre-fab solutions that we offer as stand-alone products are amongst the most affordable building solutions in any urban or near-urban area in the US. We hope they can help individuals, organization, and businesses that would otherwise be unable to engage with architects and architecture for their building needs.
Perspective Longitudinal Section 1
透视纵向第1节
© Matthew Carbone
(马修·卡伯恩)
Location 30 Campus Rd, Annandale-On-Hudson, NY 12504, United States
Lead Architect Maziar Behrooz
Area 960.0 ft2
Project Year 2017
Photographs Matthew Carbone
Category Laboratory
Manufacturers Loading...
客服
消息
收藏
下载
最近






















