查看完整案例

收藏

下载
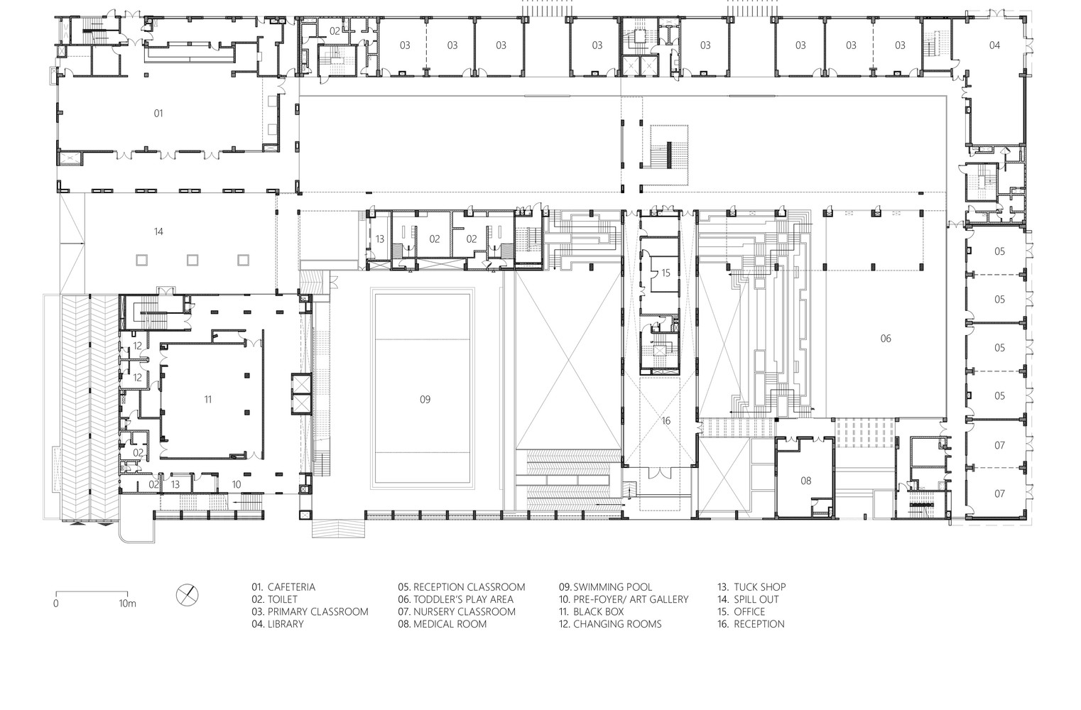
架构师提供的文本描述。形态发生“新德里英国学校的设计愿景”在学校的标语“印度灵魂的国际教育”中找到了灵感。通过这一项目,形态发生为该机构提供的国际教育形式提供了强有力的文化背景。位于德里中心的空间本身就是一个制约因素。其650名学生的人数将增加一倍,达到130人,主要的挑战是在现有场地上建造新大楼,同时又不打乱最终会成为多余的现有学校。唯一可建造的空间包围了现有的房地,带来了建筑、分期以及健康和安全方面的挑战。
Text description provided by the architects. Morphogenesis’ design vision for The British School, New Delhi, found inspiration in the school’s tagline – ‘An International education with an Indian soul’. With this project, Morphogenesis set out to provide a strong cultural context to the international format of education this institution provides. Located centrally in Delhi, space itself was a constraint. Its population of 650 students was to be doubled to 1300.The principal challenge was to construct the new building on the existing site without disrupting the existing school that would become redundant eventually. The only constructible space available enveloped the existing premises, presenting construction, phasing and health and safety challenges.
© Randhir Singh
(Randhir Singh)
采取了第一阶段的战略分阶段办法,其中包括一个周界区,以转移和容纳现有业务。第二阶段是在旧学校腾空的基础上建造的,有更多的教室、实验室、体育设施、艺术翼和一个表演艺术中心。拥有超过55个国籍的异乎寻常的多样化学生群体,促使形态发生演变成了一个社会文化包容的过程,详细阐述了这份简报。为3至18岁的学者和学生班级代表等各种利益攸关方举办了一系列讲习班。这种做法承认多样性,旨在创造一种能够促进社会凝聚力的环境。
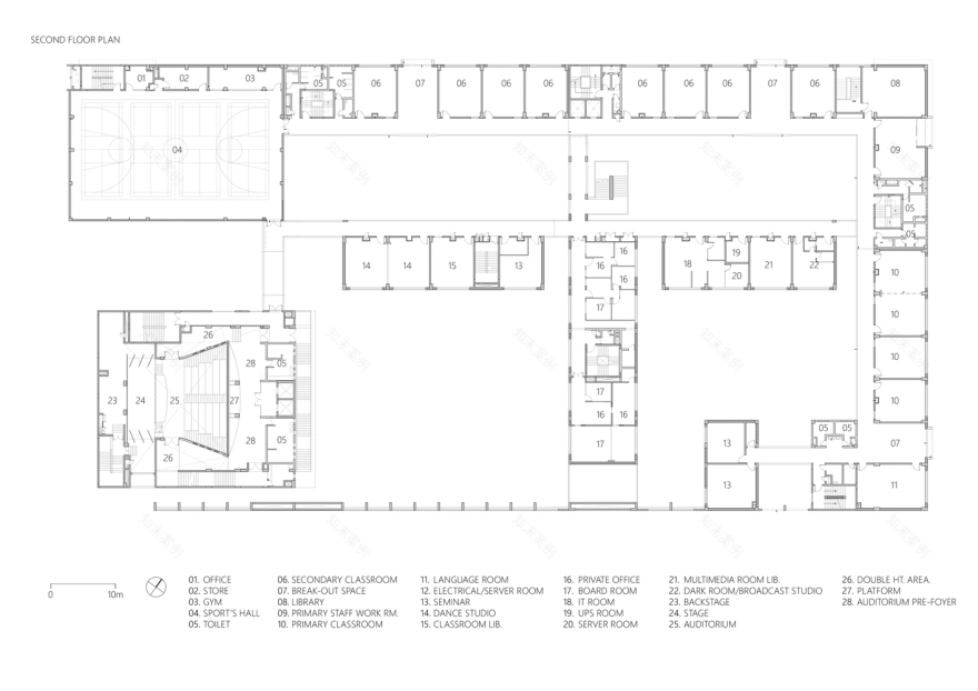
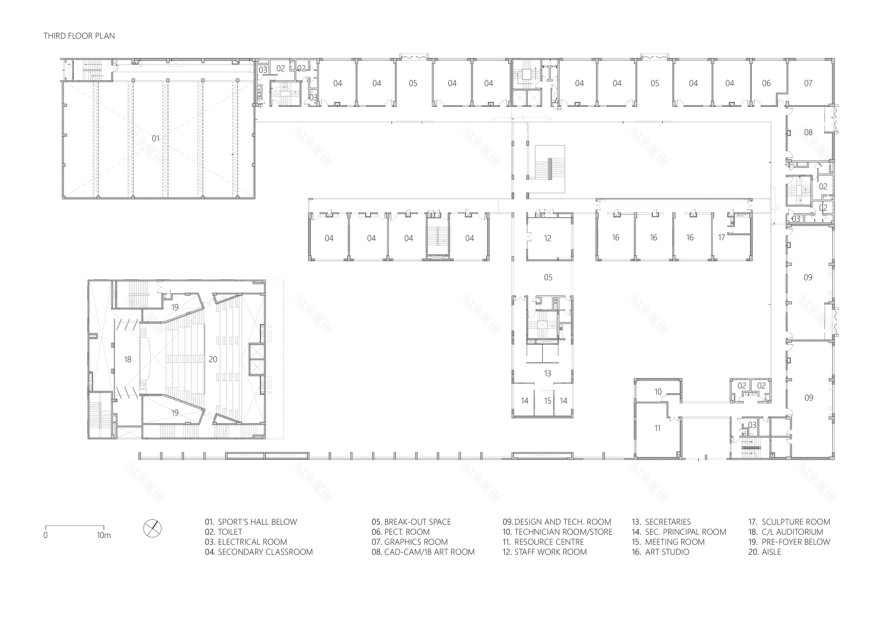
A strategic approach to phasing was adopted in the form of Phase I comprising of a perimeter block to transfer and accommodate existing operations. Phase II, being built on the vacated footprint of the old school, houses additional classrooms, laboratories, sports facilities, art wing and a Performing Arts Centre. The unusually diverse student population with over 55 nationalities led Morphogenesis to evolve a socio-culturally inclusive process of detailing the brief. A series of workshops with various stakeholders such as academicians and student class representatives, 3 to 18 years of age, was set up. This approach acknowledged diversity and aimed to create an environment that would foster social cohesion.
Design Process and Morphology Diagram
设计过程与形态图
这种合作的许多有趣的结果之一是半封闭的突破空间的概念,这些空间散落在学校周围,并且不断地改变着它们被占据的方式。这是对学校的多元文化个性及其强有力的社会议程的回应,即在一个典型的学校日内开展一些横向活动。这些突破空间被有意识地放置在过渡地区,因此它们所促进的活动成为学生体验的一个组成部分,增强了他们的整体社会文化意识,同时也展示了学校的外展理念。这些空间的多功能性质有助于优化这所城市学校的建筑空间。
One amongst many interesting outcomes of this collaboration was the notion of semi-enclosed breakout spaces that are liberally scattered around the school and are constantly being transformed in the way they are occupied. This was a response to the multicultural personality of the school and its strong social agenda, whereby a number of lateral activities take place in a typical school day. These breakout spaces have been consciously placed along transition areas, such that the activities they facilitate become an integral part of the student experience, enhancing their holistic socio-cultural awareness and demonstrating the school’s outreach philosophy at the same time. The multi-functional nature of these spaces helped in optimizing the built-up space of this urban school.
© Randhir Singh
(Randhir Singh)
采用了两个关键的设计策略来优化资源。一是尽量减少对机械系统的依赖。形态发生主张50%的学校是非空调的,传统的被动方法用来调节环境和优化能源消耗,创造一个环境体验式的学习环境;第二种策略是把学校规划成一个庭院系统,使大部分庭院全年都在阴凉处,因此,不仅作为过渡空间,而且作为扩展的学习环境,它们都是有效的。内部庭院,查贾斯(深悬)和阳台为学生提供了与环境和自然接触的机会。
Two key design strategies were deployed to optimize resources. One was to minimize reliance on mechanical systems. Morphogenesis advocated that 50% of the school be non-air-conditioned with traditional passive methods used to temper the environment and optimize energy consumption, creating an environmentally experiential learning environment. The second strategy was that of planning the school as a system of courtyards scaled such that majority of them are in shade throughout the year, thus making them effective not only as transition spaces but as extended learning environments. Internal courtyards, chajjas (deep overhangs) and verandahs provide opportunities for students to engage with the environment and nature.
从印度传统的聚会场所(户外聚会空间)中汲取灵感,一些聚会空间被设计成坐在成熟树木的树荫下。保护老树,创造生物足迹,雨水花园和一个可见的雨水收集系统,有意识地说明了示范的可持续性。已注意保护所有现存的树木,学生社区在移植过程中发挥了积极作用。新德里英国学校的设计丰富了其多样化学生群体的学习经验,为他们通过印度的教育提供了丰富的环境。
Taking inspiration from traditional chaupals (outdoor gathering spaces) in India, some congregation spaces are designed to sit in the shade of mature trees. Protecting old trees, creating bioswales, rain gardens and a visible rainwater harvesting system, consciously illustrate demonstrative sustainability. Care has been taken to protect all existing trees and the student community has played an active role in the transplantation process. The design of The British School in New Delhi enriches the learning experience of its highly diverse student population by providing a contextual richness to their passage through education in India.
© Randhir Singh
(Randhir Singh)
Architects Morphogenesis
Location New Delhi, Delhi, India
Area 297000.0 ft2
Project Year 2016
Photographs Randhir Singh, Amita Goel, Jatinder Marwaha
Category Elementary & Middle School
客服
消息
收藏
下载
最近













































