查看完整案例

收藏

下载
架构师提供的文本描述。从1940年代末开始,这座独立的房子的第一步是用24英尺(7.4米)的滑动窗台打开花园的后立面。通过去除中间支撑元素,这种干预消除了对户外露台的障碍。
Text description provided by the architects. The first step for this detached house from the late 1940s was to open the rear facade onto the garden with a 24-foot (7.4 m) sliding bay window. By taking away the intermediary support element, this intervention removes the barriers to the outdoor terrace.
© Adrien Williams
阿德里安·威廉姆斯
一个金属格子遮阳篷框架的宽开口过滤热量从太阳进入厨房和餐厅,这是集中在一个空间,并开放到花园。
A metal trellis awning framing the wide opening filters heat from the sun into the kitchen and dining room, which are brought together in one space and open onto the garden.
© Adrien Williams
阿德里安·威廉姆斯
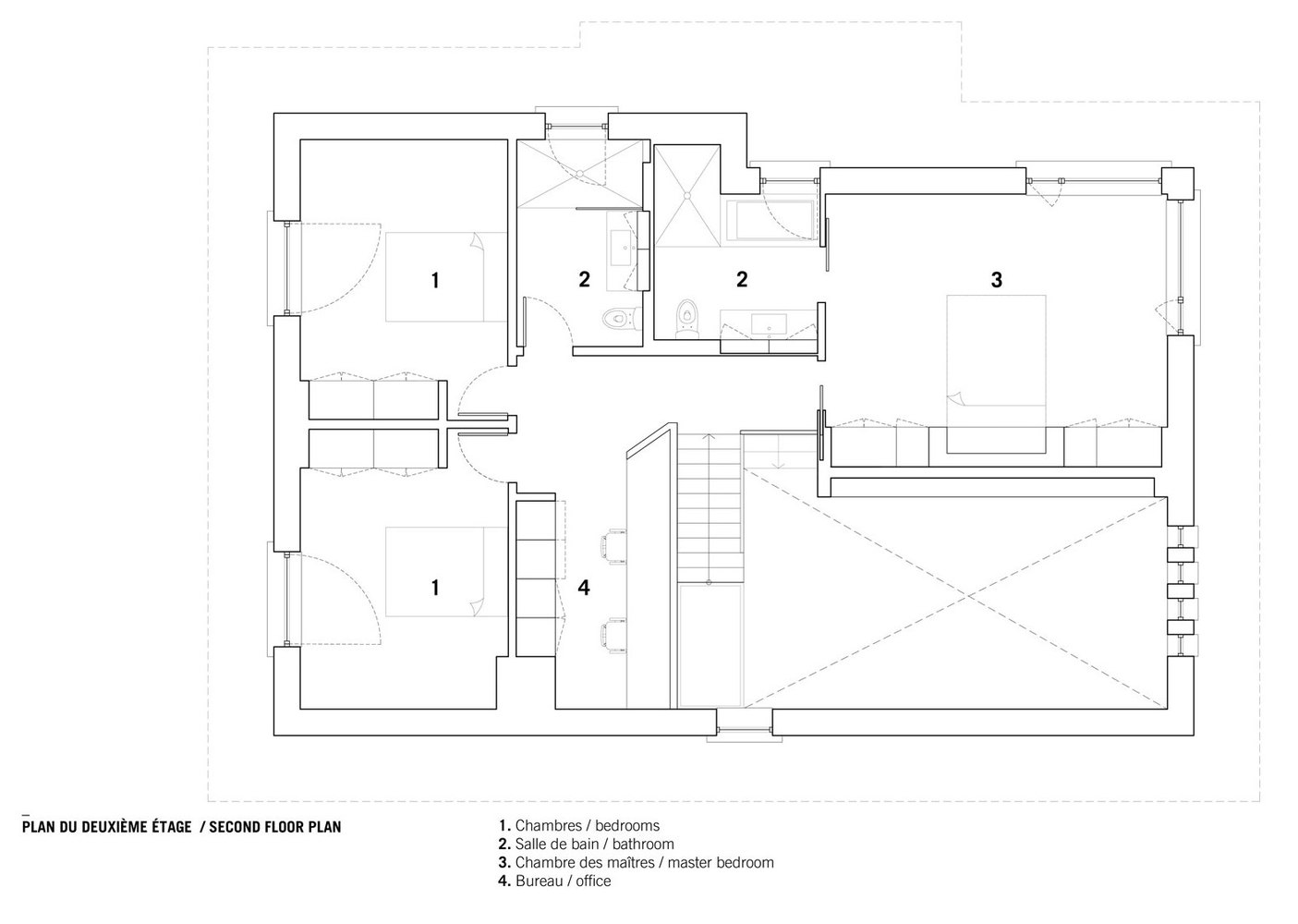
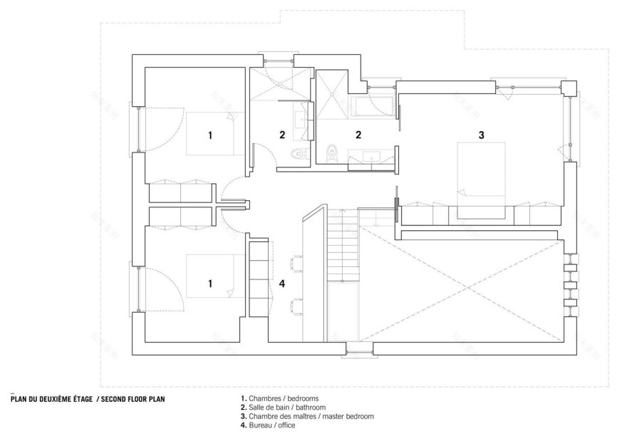
1st Floor Plan
一楼图则
© Adrien Williams
阿德里安·威廉姆斯
这个房子的改造打开了它,恢复了空间之间的关系,并在每个空间之间创造了一个视觉链接。穿孔的移动钢墙调整了客厅和两层高的家庭房间之间的隐私水平。通过玩现有的楼层和创造新的空间,这一概念改变了对房屋尺寸的看法。
The transformation of this house opens it up, revitalizes the relationship between the spaces and creates a visual link between each one. A perforated mobile steel wall modulates the level of privacy between the living room and the two-storey-tall family room. By playing with the existing floors and creating new spaces, the concept transforms the perception of the dimensions of the house.
© Adrien Williams
阿德里安·威廉姆斯
2.8m×5m的生活墙悬挂在家庭房间上方,是室内环境的主要特征。在楼上,这种绿色的存在可以从开放式办公室享受.这个项目的每一个元素都是业主对细节的热情的基础。
A 2.8 m by 5 m living wall suspended above the family room is the key feature of the indoor environment. Upstairs, this green presence can be enjoyed from the open-plan office. Every element of this project underlying the owners’ passion for detail.
© Adrien Williams
阿德里安·威廉姆斯
Architects NatureHumaine
Location Outremont, Montreal, QC, Canada
Area 350.0 m2
Project Year 2017
Photographs Adrien Williams
Category Residential
Manufacturers Loading...
客服
消息
收藏
下载
最近





















