知末
知末
创作上传
VIP
收藏下载
登录 | 注册有礼

中式如意园

2018/03/19 00:00:00
查看完整案例
微信扫一扫
收藏
下载
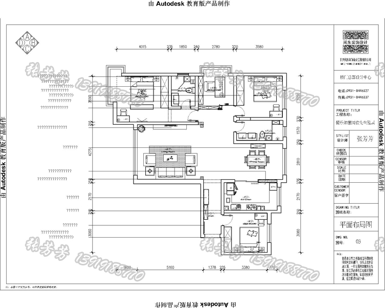
中式如意园-0
本案中业主为一对年轻夫妇,他们与咨询装修之前已购买图中古典酸枝木家具,故我是根椐家具及业主的格调为他们做的此套设计。
本案中业主为一对年轻夫妇,他们与咨询装修之前已购买图中古典酸枝木家具,故我是根椐家具及业主的格调为他们做的此套设计。
中式如意园-3
中式如意园-4
中式如意园-5
中式如意园-6
中式如意园-7
南京喵熊网络科技有限公司 苏ICP备18050492号-4知末 © 2018—2020 . All photos and trademark graphics are copyrighted by their owners.增值电信业务经营许可证(ICP)苏B2-20201444苏公网安备 32011302321234号
客服
消息
收藏
下载
最近