查看完整案例

收藏

下载
© Tatjana Plitt
(Tatjana Plitt)
架构师提供的文本描述。曾经是一个黑暗和分段的20世纪70年代的双砖房,Kew豪宅进行了彻底的内部大修和外部更新,以适应其年轻家庭的现代生活方式。
Text description provided by the architects. Once a dark and segmented 1970s double brick home, Kew House underwent a complete internal overhaul and external update to suit the modern living styles of its young family.
© Tatjana Plitt
(Tatjana Plitt)
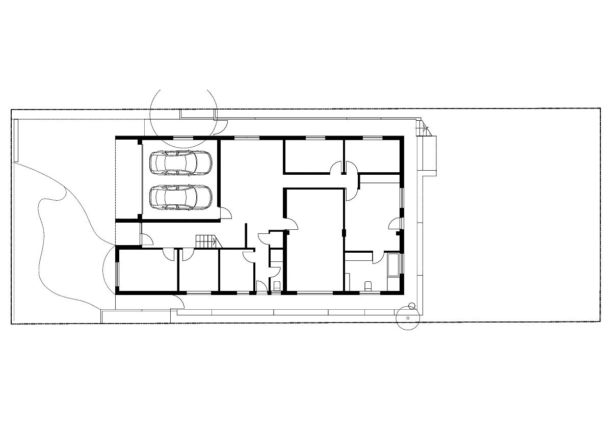
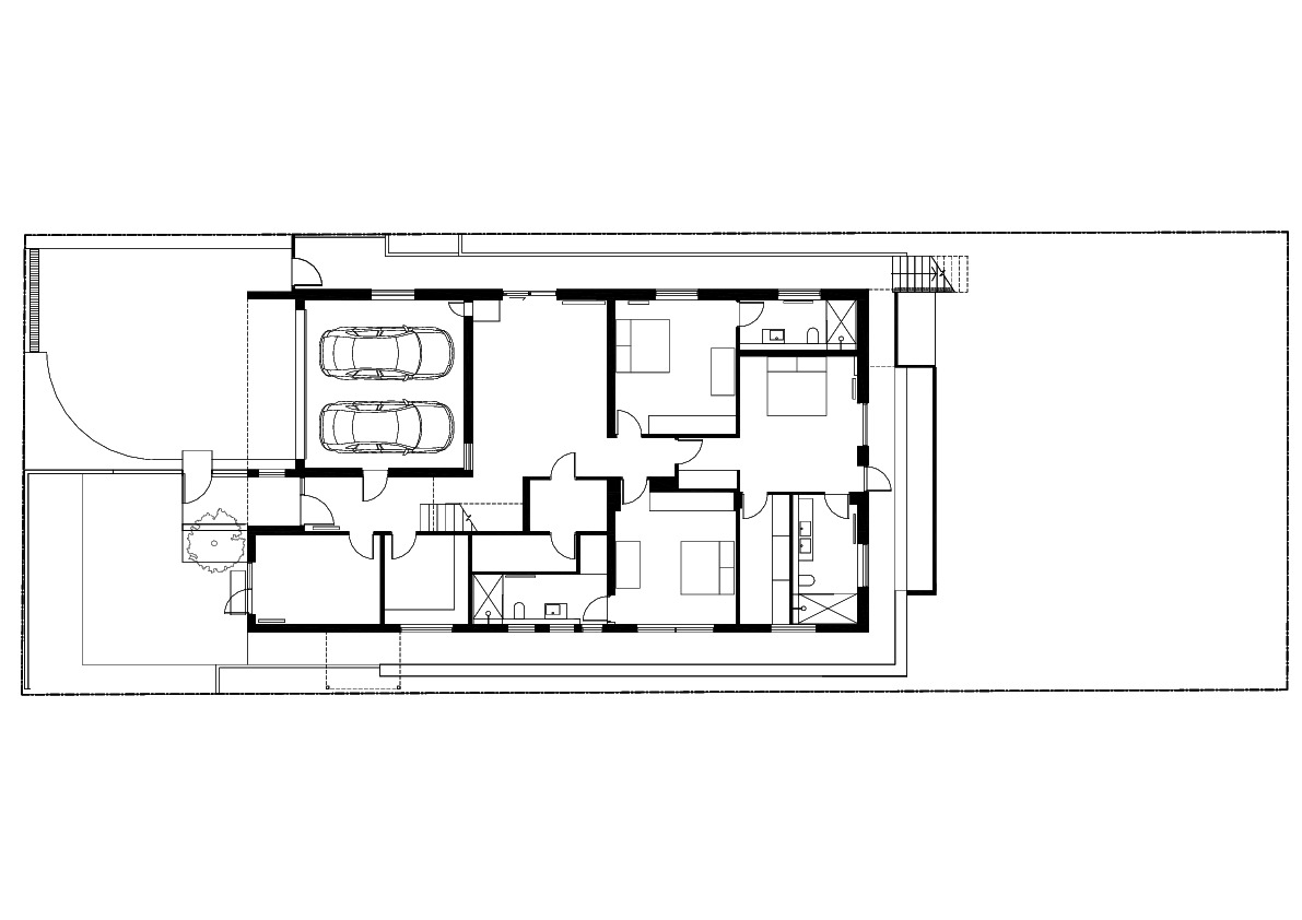
保留悬吊一楼混凝土板和外双层砖墙的宝贵现存条件,彻底改造内部空间,提供未来的灵活性,最大限度地利用自然光,提高能源效率。
Retaining the valuable existing conditions of the suspended first floor concrete slab and external double brick walls the internal space was completely transformed to provide future flexibility, maximise access to natural light and improve energy-efficiency.
自然光线和进入高架后院和游泳池区是优先考虑的一个有趣的挑战,在一个显著的倾斜地点。在里面,我们重新设想了空间的安排,以找到家庭生活和公共空间在上层,卧室和其他空间需要隔音和物理隔开在底层。双层砖外墙外保温,进一步提高了房屋的热性能。
Natural light and access to the elevated rear yard and pool zone were prioritised an interesting challenge on a significantly sloping site. Inside, we reimagined the arrangement of spaces to locate family living and common spaces on the upper level, with bedrooms and other spaces requiring acoustic and physical separation located on the ground floor. The double brick external walls were insulated from the outside to further improve the home's thermal performance.
© Tatjana Plitt
(Tatjana Plitt)
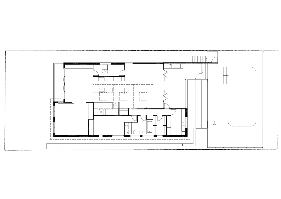
三个新的天窗沐浴在深地板和中央楼梯空隙与自然光一整天。巧妙的定位确保捕捉到早晨的阳光,而避免了下午的直射、刺眼的光线。戏剧性的锥形轴,工作,以减少所需的玻璃面积,并尽量减少成本,结果是均匀,漫射光在一天中的任何时候。从一楼的入口门厅可以看到,这一惊人的特征吸引你进入家庭的中心。
Three new skylights bathe the deep floor plate and central stair void with natural light throughout the day. Clever orientation ensures morning sun is captured, while the direct, harsher light of the afternoon is avoided. The dramatically tapered shafts, which work to reduce the glazing area required and minimise cost, result in an even, diffuse light at all times of day. Visible from the ground floor entry foyer, this striking feature entices you up into the heart of the home.
© Tatjana Plitt
(Tatjana Plitt)
Architects Inbetween Architecture
Location Australia
Architect in Charge Inbetween Architecture
Area 490.0 m2
Project Year 2015
Photographs Tatjana Plitt
Category Houses
Manufacturers Loading...
客服
消息
收藏
下载
最近


































