查看完整案例

收藏

下载
室内设计 MADA s.p.a.m., 蘑菇云设计工作室
项目地址 朝阳公园南路10号,朝阳区,北京,中国
主创设计师 王莹辉、徐迅君、杨育青
设计团队 韩晓煜、吴晓晖、徐贞、郑佳驰、蒋冰静、孙文浩
建筑面积:16400.0 平方米
摄影师:章勇 Yong Zhang
业主:骏豪地产(香港)控股有限公司
建筑师:MAD建筑设计事务所
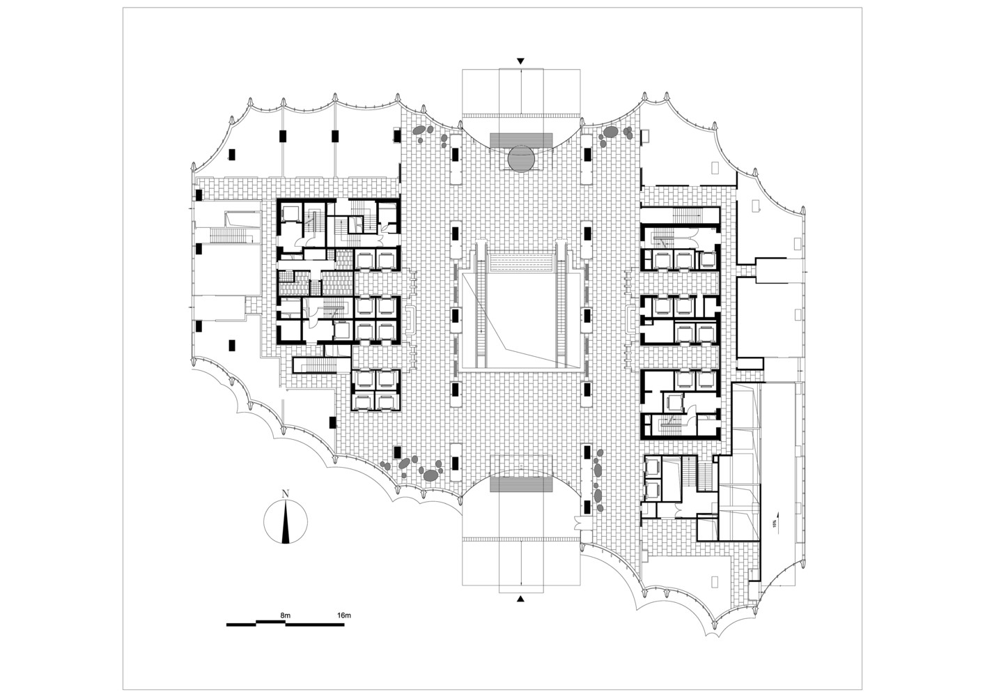
蘑菇云设计工作室团队与 MADA s.p.a.m. 建筑设计事务所历经三年合作,近日完成了“墨色山水”——北京朝阳公园广场A1/A2主楼及A7楼的办公公区室内设计。项目地处北京朝阳公园南面,建筑设计由MAD建筑事务所主持,总建筑面积约22万平方米,由10座建筑组成,高低错落,好像一幅展开的山水画卷,又像是一组盆景。
A1及A2主楼形似山峰,一分为二形成双塔。大堂位于双塔之间似飞瀑一落而下。室内设计取“金石为开”之寓意,选用“铜”这种金属为主要材料,使其与黑色建筑幕墙形成色彩的反差,“金”与“黑石”在此形成了内与外的剖切关系,这也成为室内的基本设计观念,延续了“墨色山水”这一设计主题。
大堂挑空三层,最高处达30米。这是双塔之间的一个巨大连廊,巨型U字构建如垂帘悬在其间成为空间的屋顶,在两侧黑色幕墙的反射后,形成了一片连续的曲面空间,恍若置身于“星球大战”的星际战舰之中。自然人文与科技在此的边界变得模糊,并存在一起;东方自然哲学和高科技的城市空间融合,形成独具特质的现代空间。
设计中对“铜”的材料做了多种尝试。主走廊墙面采用了鱼鳞状铜质的伸拉网,面层附雾化超白玻璃。雾化玻璃能透出铜网的质感,又能防指纹污染,实际呈现出非常细腻而特别的效果。这个特别材料组合在设计中做了很多次尝试才达到如此效果。电梯厅的墙面及顶面采用了高纯度铜板,铜板在使用过程中会逐渐氧化颜色变深,留下时间的痕迹。
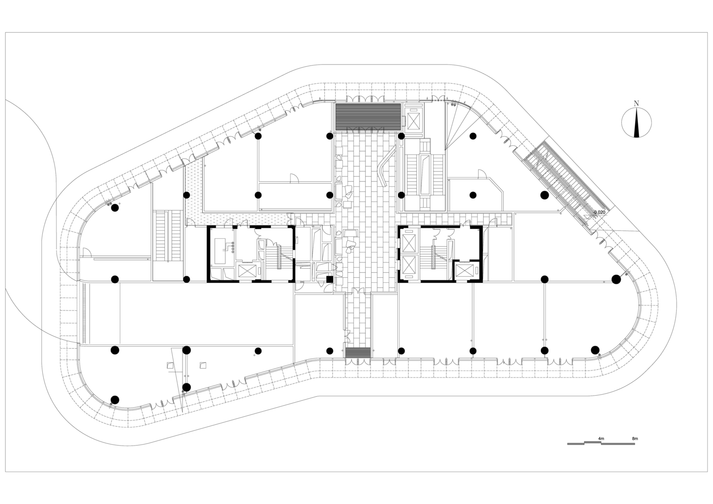
A7号楼是办公群楼中面积最大的一栋,与双塔对望。大堂室内设计定义为“玉石”。运用天然直纹石材使墙与地成为一体,黑白线条纵横连贯,整个空间浑然一体,体现出十足的高科技感。
现代 办公空间 金属 水磨石 木质 玻璃 北京
客服
消息
收藏
下载
最近


































