查看完整案例

收藏

下载
© Norbert Tukaj
(Norbert Tukaj)
架构师提供的文本描述。维尔纽斯科技园建筑群由A2SM建筑师设计,位于素有萨皮戈斯公园之称的地区。这里是十九世纪低层砖房的集合,曾经是一座医院和一个公园。建筑师们的任务是重新设计现有的建筑,以适应大量的新功能,其中最主要的是-一个专注于初创企业和科技公司的协作枢纽。这座历史遗址显示,它对当代办公空间的需求具有很大的灵活性,同时也能适应扩张的需要。建筑师们展示了这些旧建筑的最生动的特征,并将它们设计成新的内部结构的一部分。旧的屋顶木料被打捞回来,重新加工成桌子和长凳,供建筑群的公共区域使用。维尔纽斯科技园是波罗的海地区初创公司的综合体之一。
Text description provided by the architects. Vilnius Tech Park building complex designed by A2SM architects is located in the area known as Sapiegos park. The place is a collection of low rise XIX century brick buildings which used to be a hospital and a park. Architects have been tasked to redesign the existing buildings to fit a whole lot of new functions, the main one being – a collaborative hub, focused on startups and technology companies. The historic site has revealed itself to be very flexible towards the contemporary needs of office space and also adaptable for expansion. Architects have revealed the most graphic features of the old buildings and framed them to be the part of the new interior. Old roof timber was salvaged and reworked into the tables and benches for the public areas of the complex. With this outlook of experimental heritage protection Vilnius Tech Park stands as one of a kind complex for startup companies in the whole Baltic area.
© Norbert Tukaj
(Norbert Tukaj)
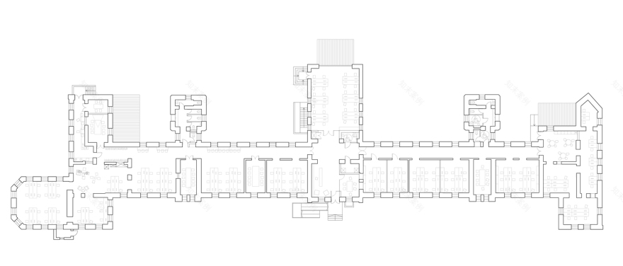
Complex Plan
复杂计划
© Norbert Tukaj
(Norbert Tukaj)
项目:大多是单层住宅,满足了初创公司不断变化的办公环境的需求。该方案包括一个300座位的会议厅,这是现有建筑群的一个新的补充,80个座位的咖啡馆,一个酒吧和灵活的办公空间,可分为较小的办公室,以满足租户的需要。
Program: Mostly single story houses embrace the needs for an ever changing office environment of startup companies. Program comprises of a 300 seat conference hall which is a new addition to the existing complex, 80 seat café, a bar, and flexible office space which can be divided into smaller offices regarding the needs of the tenants.
© Norbert Tukaj
(Norbert Tukaj)
Axonometric 001
Axonometric 001
© Norbert Tukaj
(Norbert Tukaj)
设计:新增加的综合体是一个单层的会议室,适合在旧的医院走廊之间的差距。一个舒适而隐秘的正面由巨大的玻璃部分组成,几乎隐藏在公众的视线之外,而不是遮掩旧建筑的遗产。旧医院的装饰立面反映在新的表面上,新的和旧的建筑连接在一起。这些旧建筑被重新粉刷,并固定在一种曾经有过的条件下,它的颜色稍微变了一些,变成了一种更微妙的灰色。
Design: A new addition to the complex is a single story conference hall which fits in the gap between the old hospital corridors. A snug and stealthy facade comprised of large glass segments is almost hidden from the eye of the public, not to overshadow the heritage of the old structure. The ornamented facade of the old hospital is reflected on the new surface joining the new and the old buildings together. The old buildings are repainted and fixed to a condition that they once had with a slight color change to a subtler grey shade.
© Norbert Tukaj
(Norbert Tukaj)
Architects A2SM architects
Location Vilnius, Lithuania
Lead Architects Aurimas Sasnauskas, Sla Malenko, Joris Šykovas, Eglė Židonytė, Greta Frišmantaitė, Paulius Venckūnas
Area 10200.0 m2
Project Year 2017
Photographs Norbert Tukaj
Category Adaptive Reuse
Manufacturers Loading...
客服
消息
收藏
下载
最近











































