查看完整案例

收藏

下载
© David Zarzoso
(David Zarzoso)
架构师提供的文本描述。新科因蒂克办事处的项目是翻修奥乔拉市Severo Ochoa公园对面的一处商业地产。该空间是原始的,只有一个金属结构,以支持一个阁楼。
Text description provided by the architects. The project for the new Cointec offices is the renovation of a commercial property across from Parque Severo Ochoa in the city of Orihuela. The space was presented raw, with only a metal structure built to support a mezzanine.
© David Zarzoso
(David Zarzoso)
当地道路的低洼位置和它位于洪泛区的事实,决定了在入口处创造一个可作为防止水径流的高水位的决定因素。
The low-lying position of the local roads and the fact that it is in a flood zone were decisive in the creation of an elevated level in the entry area that would serve as protection against water runoff.
© David Zarzoso
(David Zarzoso)
该项目起草了一个布局,旨在促进一种空间感,创造一个连续的空间间隔,只有通过精确的定位家具和玻璃隔断,视觉连接不同的房间。
The project has drafted a layout which aims to promote a feeling of spaciousness, creating a continuous space compartmentalized only through the precise positioning of furniture and glass partitions that visually connect the different rooms.
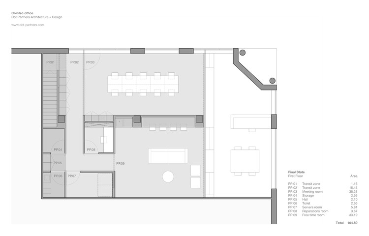
Floor Plan
楼梯和洗手间位于房间的后面,允许在前面区域有更大的自由空间。中央梁提供工作区所需的存储空间,以及空调和通风设备所需的空间。
The staircase and restrooms are located in the back of the room, allowing for a larger area of free space in the front area. A central beam provides the storage space required for workspaces and space for air-conditioning and ventilation equipment.
© David Zarzoso
(David Zarzoso)
该项目的材料方面的特点是使用一个连续的混凝土地板,它连接办公室的每个房间,并与刷过的不锈钢框架隔断。用来建造大厅里的长凳的石头,其目的是与人行道形成对比,突出其独特性。
The material aspect of the project is characterized by the use of a continuous concrete floor, which connects every room of the office and harmonizes with the brushed stainless steel frames of the partitions. The stone used to build the bench located in the hall is intended to create a contrast with the pavement and accentuates its uniqueness.
© David Zarzoso
(David Zarzoso)
Dot Partners的建筑师Txema García Ballester说:“当我们开始我们的职业生涯时,世界陷入了现代史上最严重的经济危机之一。我们明白,社会要求建筑师提供能够承受危机时期和优化资源的建筑,以便以更低的成本获得更高的质量。
Txema García Ballester, architect at Dot Partners: “When we started our professional endeavors, the world was submerged in one of the worst economic crises in modern history. We understood that society demanded that architects provide architecture that was capable of standing up to periods of crisis and optimizing resources in order to obtain higher quality at a lower cost.
© David Zarzoso
(David Zarzoso)
我们的建议是提供诚实的建筑作品,以节俭和简单为核心价值观。协整办公室是从这个角度创建的,因此空间的表现力是比例、材料和光线的结果。“
Our proposal is to offer honest works of architecture, taking austerity and simplicity as core values. The Cointec offices have been created from that perspective, so that the expressiveness of the space is a result of the proportions, materials and light.”
© David Zarzoso
(David Zarzoso)
Architects DOT Partners
Location Calle Pintor Fernando Fenoll, 03300 Orihuela, Alicante, Spain
Architect in Charge DOT Partners
Area 151.0 m2
Photographs David Zarzoso
Category Offices Interiors
Manufacturers Loading...
客服
消息
收藏
下载
最近






















