查看完整案例

收藏

下载
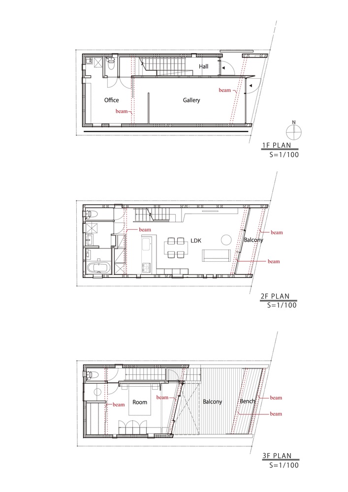
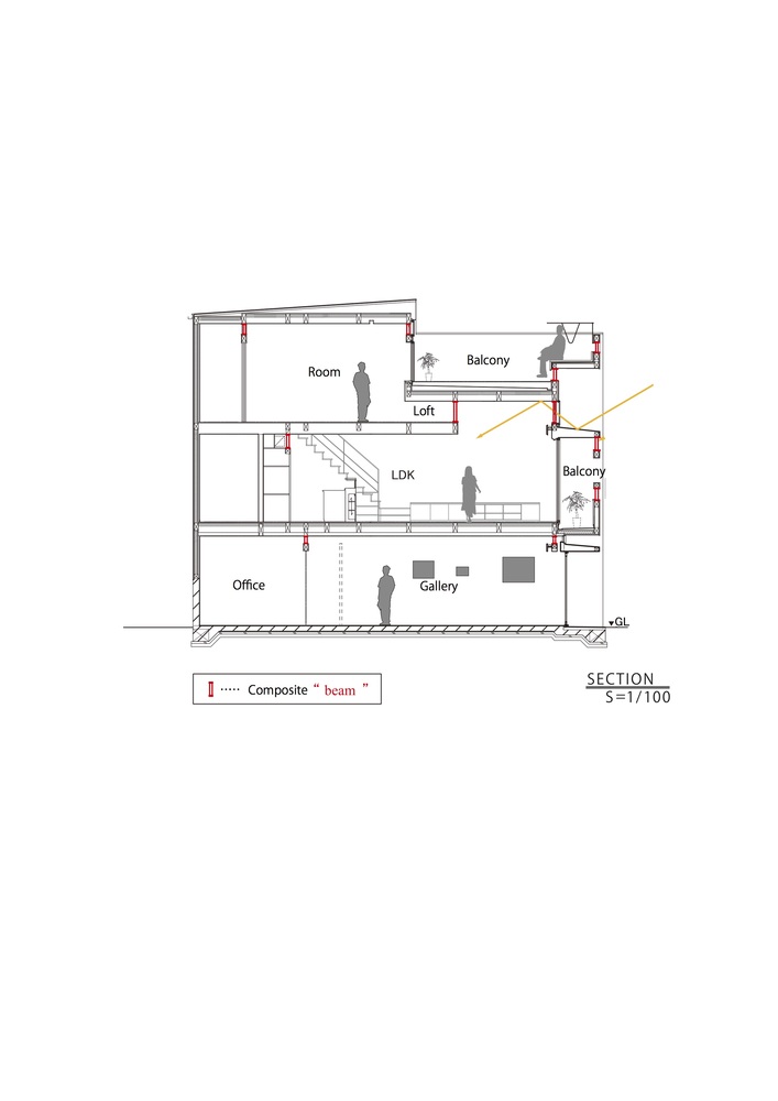
梁屋是一个由雨果KoHNO建筑师事务所设计的项目,总部设在东京的日本建筑公司。该住宅于2017竣工,占地面积121平方米,位于日本东京。
建筑主立面的画廊视图
玻璃正门的画廊视图
这座大楼在一楼有一个画廊,在二楼和三楼有一个住宅。根据客户的要求,画廊有一个玻璃门面,以便在街道上有良好的能见度。一个单独的入口通向二楼,将住宅区与画廊分开,从而保护了它的隐私。住宅是典型的木框架结构,在底层的梁之间需要许多墙,以承受整个建筑的沉重负荷。这导致了底层空间的彻底划分。采用木门式的拉赫曼框架朝向前面的建筑解决了这个问题,这样空间就可以打开,这样就可以更容易地流动空气和光线。
陈列室内有玻璃门的复古风格的客厅
因此,室内是开放和发光,与风格,是丰富的优雅和热情的吸引力。屋顶露台提供了与朋友和家人聚会的完美空间。
我们推荐这些项目,房子现代化和功能性的房子,开放空间,充满自然光的房子,宽敞的开放空间和充满光明
白色管状栏杆木制楼梯的景观
画廊中的视图
在画廊二层区域内可以看到木质地板和玻璃门。
可在画廊工作室看到深色木地板
在画廊露台上可以看到深色木地板
在图片库Studio区查看白色库
从露台观看画廊的室内夜景
画廊中的视图
画廊中的视图
画廊中的视图
keywords:Bookshelf Contemporary Interior Design Decorative Accessory Glass Walls Hall and Entrance Lighting Living Room Rug Staircase Study Room Terrace Wall Decor Wood Floors
关键词:书架,现代室内设计,装饰附件,玻璃墙,大厅和入口照明起居室,地毯,楼梯,书房,阳台,墙壁装饰,木地板。
客服
消息
收藏
下载
最近















