查看完整案例

收藏

下载
项目地址:湖南茶陵 项目类型:顶层复式楼 设计单位:起点设计 设计面积:200㎡ 设计风格:新中式
设计概念: 茶陵以现代中式设计为主题,糅合其擅长 的现代设计说法及传统山水画的意境,呈 现亦古亦今、别具一格的室内空间。说起 中国古代山水画,设计师感悟颇深,在他 看来,“中国山水画强调意境,常常在无 声之中给人一种无与伦比的力量。我希望 能够将这种手法运用到我的室内设计之中 ,达到“深远、含蓄、内秀”的意境。
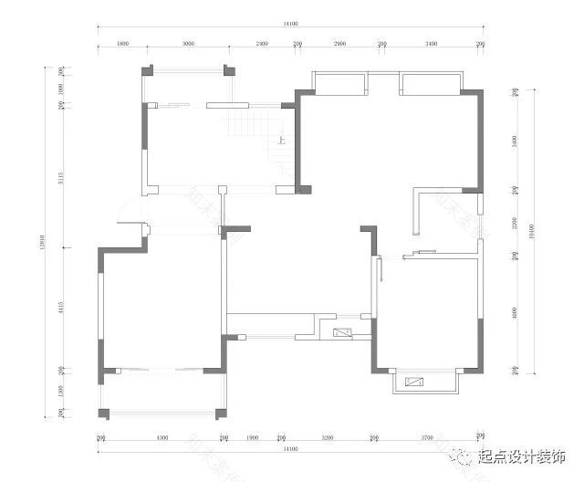
一楼原始结构图VS平面布置图
二楼原始结构图VS平面布置图
风水Tips: 对复式小户型进行合理布局,强调上下层空间的开放,一方面可以避免两层住宅的彼此冲突,增加整个住宅的整体设计感,另一方面还能让居住者感到房屋瞬间开阔,活化室内环境,让整个住宅的空气流畅更顺畅。
客厅用浅浅的白色,营造一种广阔、宽敞的视觉效果。统一的色调营造的空间延伸感强烈,也不容易产生疲惫的感觉。
厨房设计成开放式与用餐区相连。餐桌的桌面,椅脚分别与厨柜的台面,柜体颜色相呼应。在浓烈的灰系色彩中点缀如落日余晖般的夕阳红,让色彩渐渐变得丰富且有层次起来但却不互相排斥。
卧室空间属于居室空间中的静态空间,因此对于在这里不需要过多的灯光装饰,尽可能使人们来到此空间能够尽快宁静下来,提高睡眠质量,故尽量避免在吊顶上空安装大型吊灯等灯具。
软装Tips: 用于室内陈设的纺织品种类越来越丰富,不局限于床上用品和窗帘布艺等方面,墙面、铺地、家具、厨房、卫浴、等都有纺织品出现。根据使用环境与用途的不同,一般分为地面装饰、墙面装饰、垂挂遮饰、家具覆饰、床上用品、盥洗用品、餐厨用具与纤维印染工艺品八大类。
客服
消息
收藏
下载
最近















