查看完整案例

收藏

下载
在过去数十年间,珠江三角洲地区(RPD)以前所未有的速度经历了城镇化的进程,并迅速成为所谓的“世界工厂”,生产了世界上超过70%的日用品。
由于大规模的城市扩张,加上该地区快速的产业转型带来的压力,很多国有工业已经从城市转移到珠三角的郊区。
这些废弃的工业用地很快就成了围绕珠三角的城市后现代文物,特别是在核心城市广州。
大石馆文化中心就是对于上述现实的建筑实验之一。
EMG集团,是当地的石材贸易公司,与建筑师合作,试图改造位于广州市区东部珠江北岸原国有工业区的YJQ食品厂39号楼。
该改造工程旨在将这个建于20世纪60年代,几乎记录了YJQ厂的整个历史的建筑设计成一个新的艺术画廊,用以展示石刻艺术和文化。
为了保存国家计划经济时代的历史工业记忆, YJQ大楼和其环境在该方案设计中得到了充分尊重和保护。
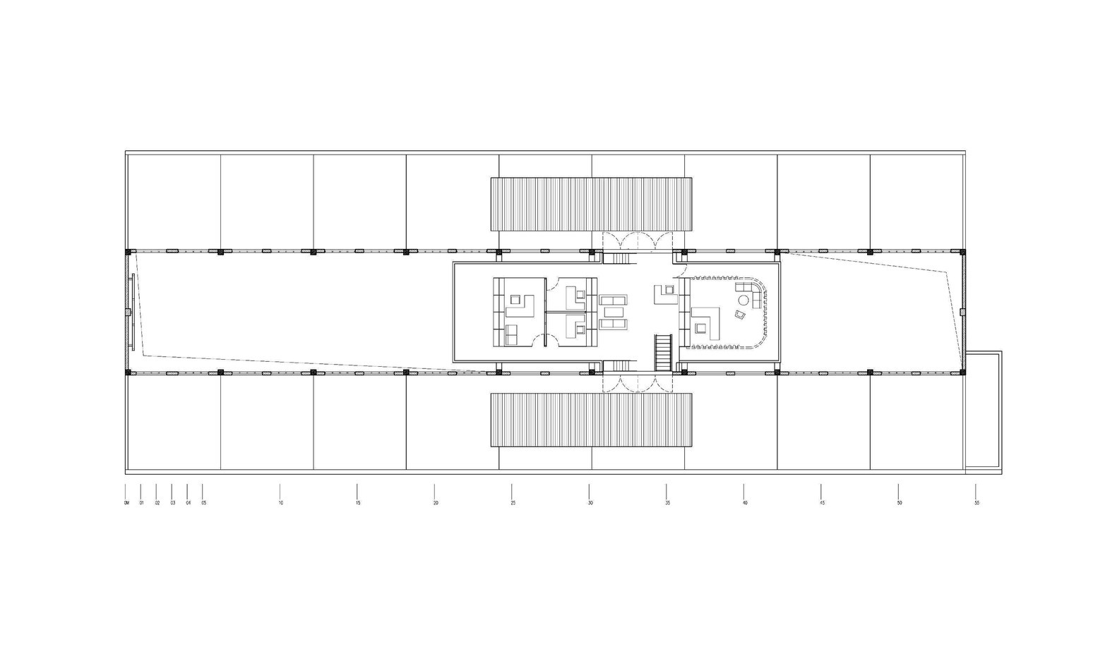
新的机能被建筑师巧妙地植入原有工业建构体系当中。
“十”字形的公共区间将室内外空间连接在一起,它就像是艺术馆的T台,可以进行各种形式的展览和活动,包括艺术表演和论坛。
因此,其它室内空间专为特定的展览、自助餐厅及休息区而设计。
同样的,一个“十”字形的办公台被植入到预制构件混凝土框架当中,悬挂在公共领域的地面上,凸出其核心区域。
新的钢结构板的底部配有半透明的聚碳酸酯板,内设LED照明装置。
这种植入式的照明悬浮在历史悠久的预制混凝土结构的空中。
建筑师在新与旧、重量与失重、过去和未来之间创造了建筑之间的对话,它们都来源于作为背景的石材艺术,这些数十亿年的地质记忆。
客服
消息
收藏
下载
最近






















