查看完整案例

收藏

下载
© Nico Marques
(Nico Marques)
架构师提供的文本描述。位于加利福尼亚州威尼斯的一个紧凑型地段,花双工是对立面的结合。由一对有着相反风格的当地夫妇发起,Modal设计解决了编程需求,用一种融合了他们独特的美学的新结构取代了现有的复式。虽然这个项目在程序上相当直截了当,但从美学上讲,这项任务更具有挑战性,因为他们对新家的想法是不同的。她的:一个乡村的,潜在的传统的家,唤起了她的家乡科罗拉多州老化谷仓的图像。他的:一个现代和开放的空间连接到户外。
Text description provided by the architects. Located on a tight lot in Venice, California, the Flower Duplex is a union of opposites. Initiated by a local couple who had opposing styles, Modal Design resolved programmatic needs by replacing an existing duplex with a new structure that blended their distinct aesthetics. While the project was fairly straightforward programmatically, aesthetically the task was more challenging as their ideas for their new home were distinct. Hers: a rustic and potentially traditional home that evoked images of ageing barns in her home state of Colorado. His: a modern and open space connected to the outdoors.
© Nico Marques
(Nico Marques)
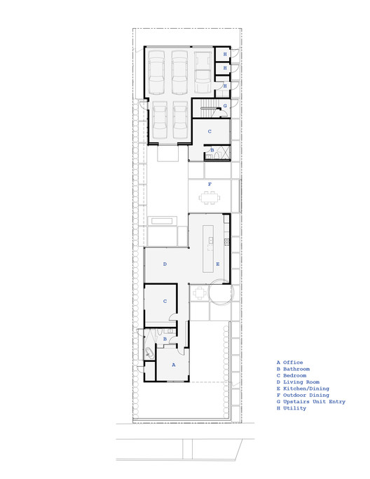
Floor Plan 1
平面图1
© Nico Marques
(Nico Marques)
客户希望培养他们与长期租户的密切关系,但同时最大化个人居住区域也发挥了混合。这个决议是通过一种带有问号形状的建筑形式产生的,它提供了私人和公共的外部空间。两座室外花园都是从建筑群中挖出来的,每个花园都是为个人的活动和需要而设计的,比如吃饭、放松和就餐,以及对阳光的响应。街道附近的一个私人庭院利用清晨的阳光,为主人的狗铺上一片草的草坪。而更多的公共庭院在后方拥抱下午晚些时候,阳光和接近一个有盖的户外就餐露台。这一后方公共空间是共享的上下单元,并允许双方的客户和他们的租户之间的物理和视觉互动。
The client’s desire to nurture their close relationship with their long-time tenant yet maximize individual living areas also played into the mix. The resolution came via a question mark-shaped building form that offered private as well as communal exterior spaces. Two exterior gardens were carved out from the building mass, each programmed for individual activities and needs such as eating, relaxing and dining, and responsive to the sun’s path. A private yard near the street takes advantage of early morning sun and a grassy lawn for the owner’s dogs, while a more public yard in the rear embraces late afternoon sun and proximity to a covered outdoor eating patio. This rear public space is shared between the upper and lower units and allows for both physical and visual interaction between the clients and their tenants.
在建筑设计上,采用物质性和应用性来解决客户的审美差异。传统的材料,如从蒙大拿州的雪篱笆中打捞出来的再生木壁板,被整合成一个现代化的流线型结构。他们的反向板和板条的应用提出了一个传统的调色板,但提供了一个更鲜明,现代的扭曲。通常在传统的房屋和谷仓上发现倾斜的屋顶,但是用的是固定的金属缝。它倾向于或远离庭院,以最大限度地保护隐私,并通过天窗和光井优化光线穿透结构。
Architecturally the design uses materiality and application to resolve the client’s aesthetic differences. Traditional materials such as reclaimed wood siding salvaged from snow fences in Montana are integrated into a modern, streamlined structure. Their reverse board and batten application suggests a traditional palette but offers a more distinct, modern twist. Sloped roofs typically found on traditional homes and barns were used, but in standing seam metal. It tilts towards or away from the yards to maximize privacy and to optimize light penetration into the structure via skylights and light wells.
© Nico Marques
(Nico Marques)
在住宅内部,较低单元的材料包括经过抛光的混凝土地板,以确保耐用性,以及同样的再生木墙板,作为主要生活空间天花板上的一个重音。由于强调空间的效率和保持大型户外区域的兴趣,因此产生了小型但舒适的房间和组合空间,最显著的是一个扩展的厨房岛,它不仅是主要生活空间的中心,也是主要餐桌的中心。
On the home’s interior, materials in the lower unit include polished concrete floors for durability and the same reclaimed wood siding applied as an accent in the main living space’s ceilings. Emphasis on the efficiency of space and interest in maintaining large outdoor areas resulted in diminutive but comfortable rooms and combination spaces, most notably an extended kitchen island that serves not only as the centre of the main living space but the principal dining table as well.
© Nico Marques
(Nico Marques)
Architects Modal Design
Location Los Ángeles, United States
Area 3263.0 ft2
Project Year 2016
Photographs Nico Marques
Category Houses
Manufacturers Loading...
客服
消息
收藏
下载
最近


























