查看完整案例

收藏

下载
© Simon Devitt
西蒙·德维特
架构师提供的文本描述。位于韦尔斯利街和西蒙兹街拐角处,302楼是大学科学园区的主打项目。这座新大楼是通往城市校园的关键门户,为过路人提供了一个“大学生活的窗口”。包括心理学、化学和环境学院在内的建筑使用者组织起来,占地面积达22,000平方米,占地11层。
Text description provided by the architects. Located at the corner of Wellesley and Symonds Streets Building 302 is the anchor project of the University’s Science Precinct. In response to a brief that sought to increase the University’s presence the new building marks this key gateway to the City Campus offering a “window into the life of the University” for passers-by. Building occupants, including the Schools of Psychology, Chemistry and Environment, are organised across 22,000m2 of new floor area spread over 11 storeys.
© Simon Devitt
西蒙·德维特
Ground Floor Plan
© Simon Devitt
西蒙·德维特
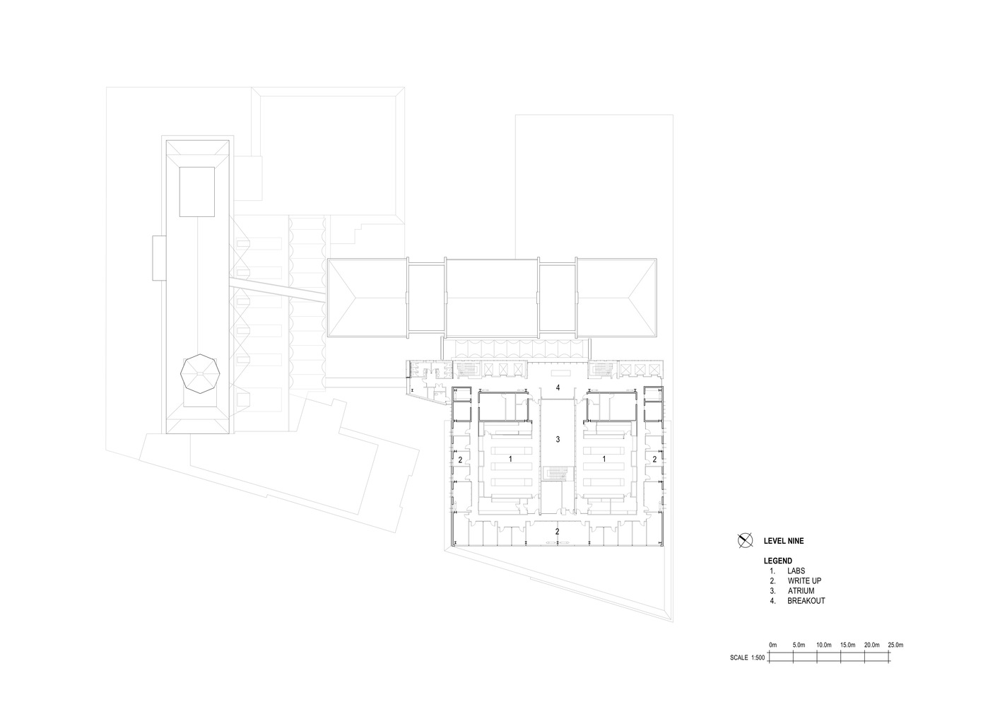
在竞争阶段发展起来的建设理念,提出了一种组织战略,以促进项目简介的社会方面。与以前的建筑项目类似,比如坎特伯雷大学的厄斯金大厦,在一个区域内的空间安排是关键。302楼的活动围绕着一系列交错的内中庭或“房间”组织,为研究、学习和跨学科交流创造了一个灵活的环境。
The building idea, developed during the competition stage, proposes an organisational strategy that promotes the social aspects of the project brief. Similar to previous Architectus projects, such as the Erskine Building at the University of Canterbury, the arrangement of the spaces in a section is key. At Building 302 activities are organised around a series of staggered internal atria or “rooms” creating a flexible environment for research, learning and interdisciplinary communication.
© Simon Devitt
西蒙·德维特
© Simon Devitt
西蒙·德维特
这些房间位于另一个区域之上,从地面开始,规划允许开放和透明的学生环境,与相邻的街景和校园公共空间相连接。在此之上,一个中间室连接工作人员和本科生,而最上层的房间将更密集和专业的研究生研究空间聚集在一起。
These rooms arranged one above the other in section, commence at the ground plane where the planning allows for an open and transparent student environment with connectivity to the adjoining streetscape and Campus public spaces. Above this, an intermediate room connects staff and undergraduates whilst the uppermost room brings together the more intensive and specialised postgraduate research spaces.
科学中心位于303大楼附近,这是一座由建筑公司翻新的现有建筑,现在已成为科学区的一部分。
The Science Centre is located adjacent to Building 303 - an existing building which was refurbished by Architectus and now forms an integrated part of the Sciences Precinct.
© Simon Devitt
西蒙·德维特
Architects Architectus
Location Auckland, New Zealand
Lead Architects Patrick Clifford, Malcolm Bowes, Michael Thomson, Carsten Auer, James Mooney, Paul Millard, Alistair Scott, Michael West, Damian McKeown, Manuel Morel, Kirk Smith, Severin Soder, John Baker, Michel Bosauder, Jeremy Chapman, Rebecca Davidson, Kitty Fan, Carmen Fu (model maker), Peter Jeffs, Christian Kim, Eddy Lau, Yi Ting Lau, Joe Murphy, Warren Nicholson, John Strand, Michael Whiteacre, Mark Yong
Area 22000.0 m2
Project Year 2016
Photographs Simon Devitt
Category University
Manufacturers Loading...
客服
消息
收藏
下载
最近





































