查看完整案例

收藏

下载
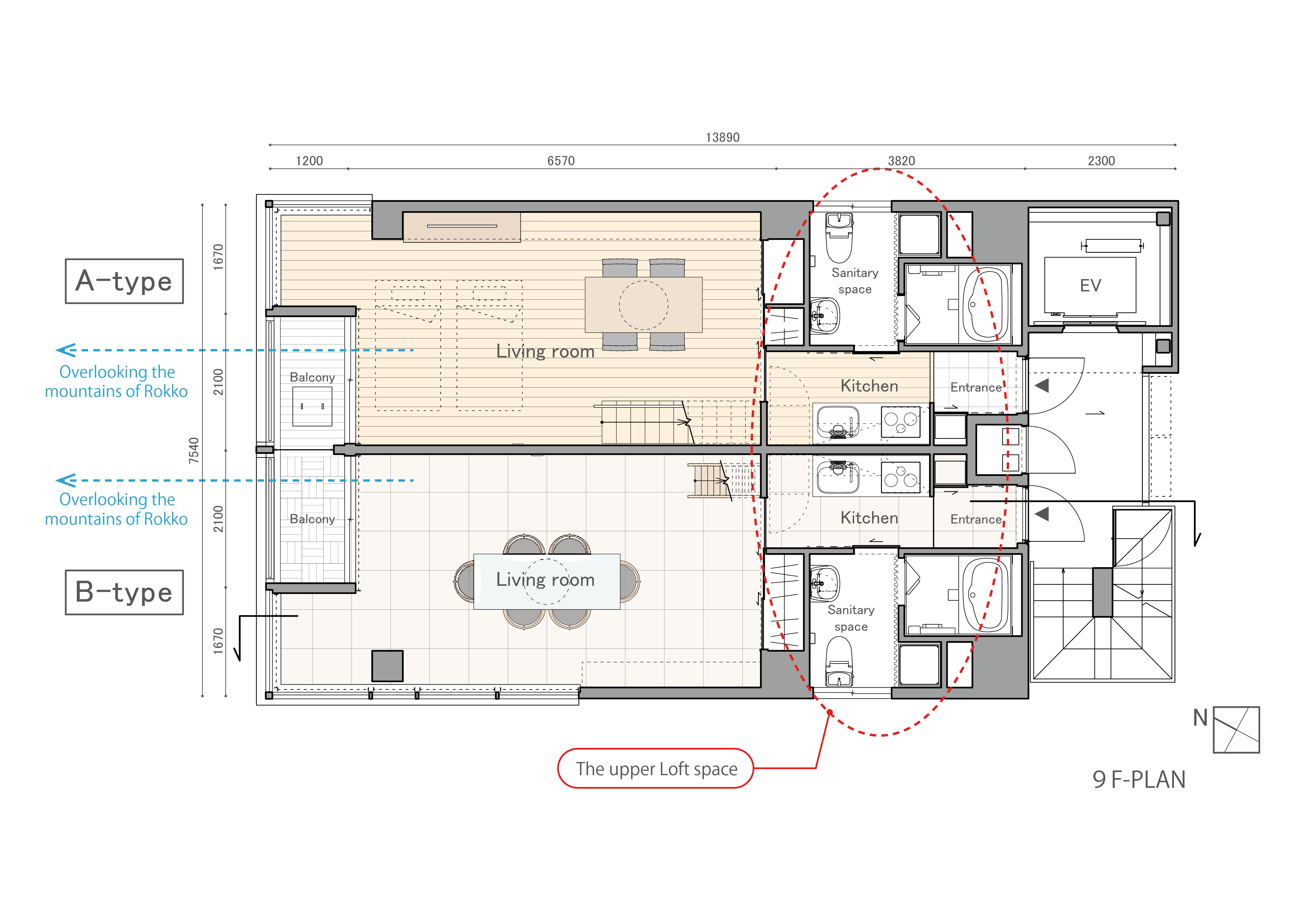
神户城是日本第六大城市,拥有历史悠久的港口城市。GokoDori Belltree位于神户市的Sannomiya车站附近,它是一个带有钢框架的住宅和办公综合体。框架(格子)让人联想到“障子(Shoji是日本传统的纸推拉门)”,它的铝檐附在一个廉价的标准建筑吊架上,建筑外观上覆盖着国内天然的雪松木材,这有助于邻近的城市景观,并正在成为该地区的标志性建筑。
Firm landsat-inc.
Type Commercial › Office Residential › Apartment
STATUS Built
YEAR 2016
SIZE 1000 sqft - 3000 sqft
BUDGET $100K - 500K
keywords:architecture, architecture news, interiors, interior design, portfolio, spec, brands, marketplace, products BELLTREE Goko-dori
关键词:建筑,建筑新闻,室内设计,组合,规格,品牌,市场,产品
客服
消息
收藏
下载
最近















