查看完整案例

收藏

下载
© Nacasa & Partners
© Nacasa
架构师提供的文本描述。重建前的房子一直在阴影中,因为被许多建筑物包围的地方很糟糕。
Text description provided by the architects. The house before rebuilding had stayed in the shadow because the location that had been surrounded by many buildings had been bad.
© Nacasa & Partners
© Nacasa
这就是为什么房间里没有多少阳光,外面的盆栽植物在光线昏暗的地方失去了能量。
That's why the room hadn't got much sunlight, and the potted plants that had been outside had been losing their energy in the dimly-lit place.
所以我们开始和热爱植物的主人一起为植物设计最好的地方。
So we started designing the best places for plants with the owner who loves plants.
© Nacasa & Partners
© Nacasa
首先,我们把花园建在北侧的二楼,那里一直是阳光充足的好地方,而且没有背光。然后我们在里面放了一些植物。
First of all, we set up the garden on the second floor of the north side which has been the best place of getting a lot of sun and hasn't backlit. And then we put some plants in it.
其次,我们倾斜天花板,我们涂上反光材料的表面。
Secondly, we tilted the ceiling that we coated the surface of with reflective material.
© Nacasa & Partners
© Nacasa
通过这样做,我们将无法从一楼看到的植物的形状投射成天花板上的虚拟图像。
By doing so, we have projected the shape of the plants that can not be seen from the first floor as a virtual image on the ceiling.
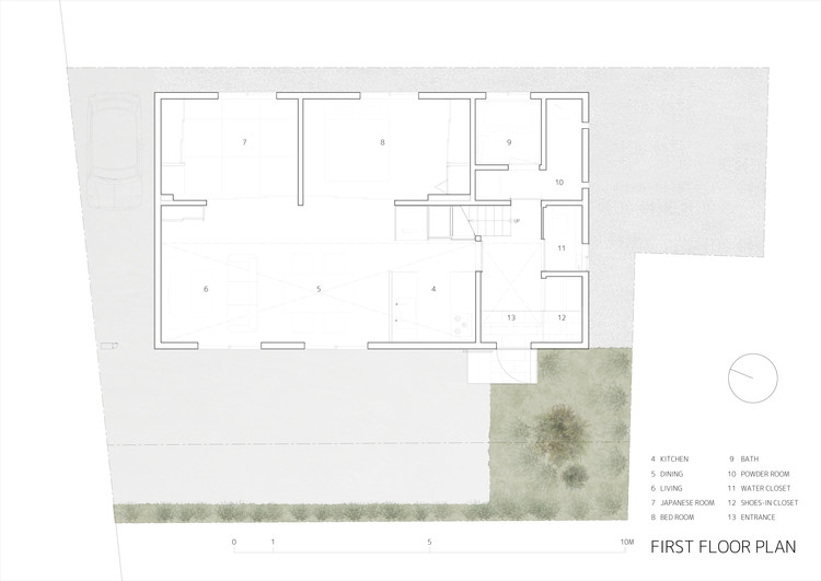
1st Floor Plan
一楼图则
© Nacasa & Partners
© Nacasa
2nd Floor Plan
二楼图则
在二楼,有一个充满了绿色植物的空间,就像我们全神贯注于观察万花筒的植物。
On the second floor, there has been the space that is full of greenery and it's as if we were absorbed in looking into a kaleidoscope of plants.
© Nacasa & Partners
© Nacasa
© Nacasa & Partners
© Nacasa
我们期望植物和建筑所创造的空间能让人们适应各种各样的变化,如日复一日,时时刻刻都能感受到乐趣。
We expect that the space which the plants and architecture create has people who adapt to diverse changes like day-to-day moment by moment feel pleasure.
Architects KamakuraStudio
Location Katsushika-ku, Japan
Architect in Charge Keisuke Fukui, KeisukeMorikawa
Area 95.61 m2
Project Year 2017
Photographs Nacasa & Partners
Category Houses
Manufacturers Loading...
客服
消息
收藏
下载
最近























