查看完整案例

收藏

下载
这所房子位于阿根廷的圣多明各的ElPaso乡村俱乐部。
在画廊外看到房子及其绿色花园
画廊正门内有石墙的景观
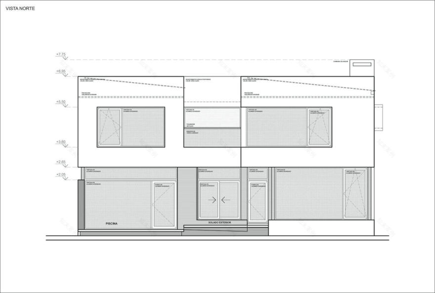
设计的一个基本标准是,通过与半开放空间(画廊-昆丘)和开放空间(楼层、游泳池)直接相关的社会环境的安排,加强住宅内部与周围土地之间的关系,允许通过使用开口系统同时使用。此外,他们还寻求根据对面房屋所有主要环境的布局(作为更吸引人的视觉焦点)来观察高尔夫球场的布局,并向这一主要视角开放。
在画廊中看到入口的正面视图
廊内停车入口视图
我们建议这些项目的房子一层现代棕榈泉开放的房子在Athens,希腊的建筑师乔菲的房子漂亮的房子建造的,四周环绕着郁郁葱葱的花园
画廊中的视图
带双白色门的画廊主入口的视图
画廊后花园有游泳池的视野
在带休息平台的画廊池中观看
透过玻璃门与室内相连的画廊花园景观
另一方面,作为房主的一项具体要求,他们试图创造一种正面设计,以保护房子内部相对于街道的隐私。为此,设计了一个精心设计的洞口,为入口提供必要的照明和自然通风,并在上层有一个大的中央开口,使家庭能够从主流通的角度对场地有一个广阔的视角。
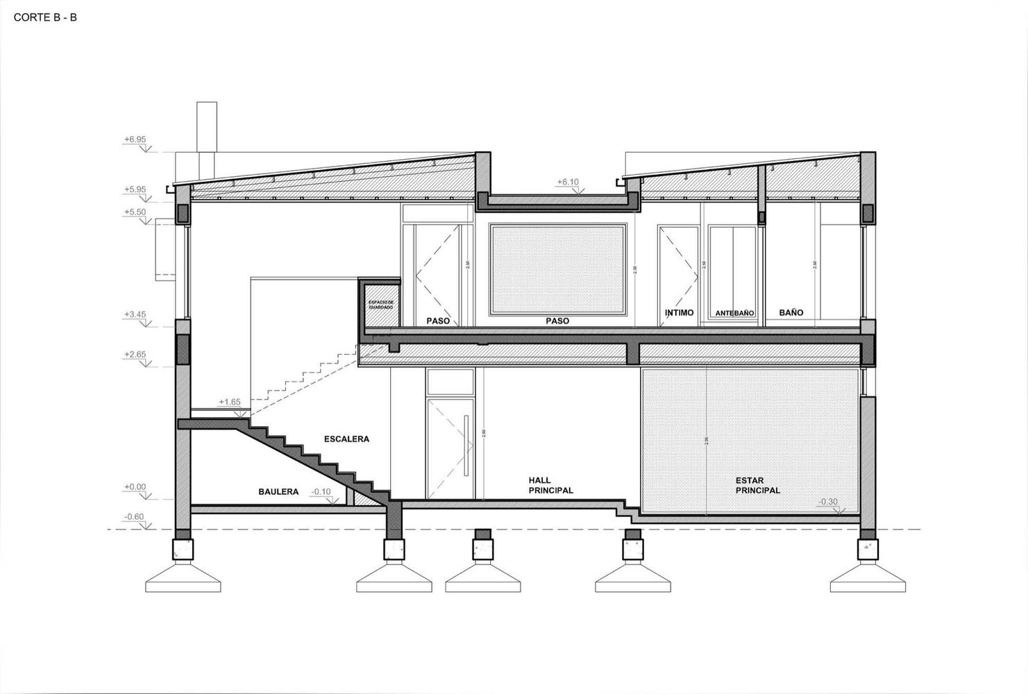
从形式上看,房子提出减少“必要最小限度”作为表达的手段,消除任何不必要的或辅助元件和诉诸其建设性和功能性作为一种审美资源的证据。
现代装饰细节在画廊内部的景观
画廊木制楼梯景观
画廊客厅内的景观,室内装饰有木头和黑色的电视区域。
有玻璃墙的画廊客厅的视图
画廊中的现代厨房-木墙黑白相间
画廊的景观-现代餐厅,白色缎子椅
木材在画廊餐厅观
下午参观画廊游泳池区
画廊中的视图
画廊侧视,四周环绕花园
画廊中的视图
画廊中的视图
画廊中的视图
画廊中的视图
画廊中的视图
画廊中的视图
画廊中的视图
keywords:Contemporary Interior Design Decorative Accessory Dining Room Floor Plans Glass Walls Hall and Entrance High Ceiling Kitchen Landscaping Lighting Living Room Rug Staircase Swimming Pool Terrace Wood Floors
关键词:现代室内设计,装饰附件,餐厅,平面图,玻璃墙,大厅和入口,高天花板,厨房,景观美化,起居室,地毯,楼梯,游泳池,露台,木地板
客服
消息
收藏
下载
最近




























