查看完整案例

收藏

下载
© Alfonso Calza
c.阿方索·卡尔扎
架构师提供的文本描述。这座房子位于戈德拉的坎佩里瓦尔,是一座面积超过2000平方米的大房子,它包含了我们建筑办公室最显著的特色,在环绕室内空间的玻璃板之间漂浮着巨大的混凝土水平平面。这栋房子在一楼和一楼之间占地600平方米,是根据两个数字的总和组织起来的,“I”和“L”,第一层是在两层,包括夜间区域,下面有套房,顶层有三间卧室和客房。
Text description provided by the architects. The house is located in Campolivar, Godella, it is a large house on a plot of more than 2000 m2 that includes the most notable features of our architecture office, large horizontal planes of concrete that float between glass panels that enclose the interiors spaces. The house, which occupies a plant of 600 m2 between ground floor and first floor, is organized through a geometry based on the sum of two figures, the "I" and the "L", the first, developed on two floors, contains the night area, with the suite below, three bedrooms on the top floor and the guest room.
© Alfonso Calza
c.阿方索·卡尔扎
Ground Floor Plan
© Alfonso Calza
c.阿方索·卡尔扎
L中的数字与客厅和厨房的日间面积相对应。这两个数字都有一个桥梁体积,其中包括入口大厅和楼梯在一楼和一个儿童学习区在一楼。与所述房间相对应的体积产生一系列级联空间,这些层叠空间由结构片串联而成,该结构片定义了所述体积的最终图像。厨房被设计成日常生活发展的地方,它被安置在L的一端,从其余的房间移开,完全被移交给花园,直接连接到有盖的露台,烧烤和游泳池。
The figure in L corresponds to the day area with the living room and kitchen. Both figures are joined by a bridge volume that includes the entrance hall and the staircase on the ground floor and a study area for children on the first floor. The volume corresponding to the room generates a series of cascaded spaces formed by a concatenation of structural sheets that define the final image of the volume. The kitchen is designed to be the place where daily life develops, it is placed at one end of the L, displaced from the rest of the rooms and is totally turned over to the garden, directly connected to the covered terraces, the barbecue and the swimming pool.
© Alfonso Calza
c.阿方索·卡尔扎
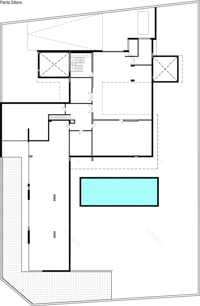
这座大地下室通向英国的一个露台,在那里,穿过该地区的古罗马灌溉沟的部分地基已被修复。房子是一套水平的和垂直的混凝土平面,打破了该地区的主导美学,因为它位于坎佩里瓦最古老地区100多年的别墅之一。这种独特性已经成为Perretta建筑公司的标志。
The large basement opens onto an English patio where part of the foundations of the old Roman irrigation ditch that passed through the area has been recovered. The house is a set of horizontal and vertical concrete planes that break with the dominant aesthetic in the area since it is located among villas of more than 100 years in the oldest area of Campolivar. This uniqueness has become the hallmark of the Perretta architectural firm.
Architects Perretta Arquitectura
Location Godella, Spain
Author Architects Julio Gómez-Perretta de Mateo
Architects in Charge Marco Busca, Maria Dolores Bernal, Amparo Morant, Paula Zafra, Antonio Orero y Jorge Espí
Area 600.0 m2
Project Year 2017
Photographs Alfonso Calza
Category Houses Interiors
Manufacturers Loading...
客服
消息
收藏
下载
最近






















