查看完整案例

收藏

下载
© Ben Hosking
本·霍斯金
架构师提供的文本描述。小大屋位于惠灵顿山的东坡上,比霍巴特高。这座房子海拔450米,坐落在一片森林景观中,在冬天的几个月里会遇到雪。(鼓掌)
Text description provided by the architects. The Little Big House is located upon the eastern slopes of Mount Wellington, high above Hobart. At 450 meters above sea level, set within a forested landscape, this house encounters snow in the winter months.
© Megan Baynes
(梅根·贝恩斯)
住宅的选址考虑到它的背景;位于曲线道路附近并垂直于这条曲线道路。
The siting of the residence is mindful of its context; positioned close to and perpendicular to the curvilinear road.
© Ben Hosking
本·霍斯金
这座房子位于既有的房屋和花园之间的一片空地上,是防御性和图解性的。
The house, on a vacant lot between established houses and gardens, is defensive and diagrammatic.
在地籍约束和一棵壮丽的桦树之间小心地藏着,足迹被刻意地保持在小范围内。住宅分两层堆放,以适应起伏的地形。
Tucked carefully between cadastral constraints and a magnificent birch tree, the footprint has been kept deliberately small. The dwelling is stacked across two levels which step to accommodate the undulating terrain.
© Ben Hosking
本·霍斯金
只是个盒子。一个干净的音量,除了两个例外;一个服务核心和一个入口气闸。主空间中的墙壁、地板和天花板被均匀地、白色地处理,以创造一个简单的室内光线。入口,厨房和浴室空间被设计成故意的,戏剧性的小,用黑色完成,而不是更大的白色音量。
It’s just a box. A clean volume with two exceptions; a service core and an entry air-lock. Walls, floors and ceilings in the main space are treated uniformly, in white, to create a simple light interior. The entry, kitchen and bathroom spaces are designed to be deliberately, theatrically small and are finished in black, in contrast to the larger white volume.
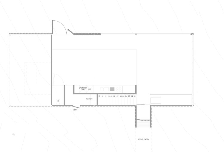
Flor Plan 00
Flor计划00
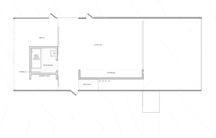
Floor Plan 01
楼层图01
这所房子设计得非常私密。在凉爽的气候下,房子有两种基本的策略-保温和取光。
The house is designed to be intensely private. Given the cool climate, the house has two essential strategies – to hold the heat and find the light.
孔洞是有目的位置,以创造纯粹的窗口类型开放,无论是花园,天空或阴影。
Apertures are purposefully positioned to create pure window types opening to either garden, sky or shadow.
© Ben Hosking
本·霍斯金
在南塔斯马尼亚州,小房子被竖直、未完成的木材所覆盖,延续了当地乡土建筑的传统。前门入口向后倾斜,这种木材仍然是金色的,而其余的门面则随着时间的推移而呈银色。每一片木材都是用手工制作的z闪光完成的,以确保立面的寿命。
The Little Big House is clad in vertical unfinished timber continuing traditions of local vernacular building in Southern Tasmania. The front door entry is set back and this timber remains golden in contrast to the remaining façade which has silvered with time. Each piece of timber is finished with a handmade z flashing to ensure the longevity of the façade.
在东面和西面的聚碳酸酯覆层渲染发光的影子墙,使房子同时是光和包含。
Polycarbonate cladding on the eastern and western facades render luminous shadow walls which enable the house to be concurrently light and contained.
在地面上,只能看到北面的花园。生活和餐饮功能发生在拉长的条形窗口旁边。
At ground level views are limited to that of the immediate garden to the north. Living and dining functions occur alongside an elongated strip window.
© Ben Hosking
本·霍斯金
从提供睡眠空间的夹层可以看到南方地平线的长景。
Long views to the Southern horizon are only revealed from the mezzanine level which provides sleeping spaces.
房子有三个完全高度的通风口,在夏季半开着,提供自然的交叉通风。木柴火提供了一个仪式的壁炉和温暖的家庭。
The house has three full height vents which stand ajar in the summer months providing natural cross ventilation. A wood fire provides a ceremonial hearth and heats the home.
© Megan Baynes
(梅根·贝恩斯)
这是一座体积很大的小房子,是一座气候凉爽的定制建筑。这座房子避开了澳大利亚建筑的许多传统,显然是塔斯马尼亚式的。
A small home with big volumes, the house is a bespoke building in a cool climate. Eschewing many of the traditions of Australian architecture, this house is distinctly Tasmanian.
Architects Room11 Architects
Location Wellington Park, Australia
Architects in Charge Megan Baynes, Thomas Bailey
Area 160.0 m2
Project Year 2010
Photographs Ben Hosking, Megan Baynes
Category Houses
Manufacturers Loading...
客服
消息
收藏
下载
最近

















