查看完整案例

收藏

下载
架构师提供的文本描述。将84平方米的草地改造成景观项目是这个委员会的前提。
Text description provided by the architects. Converting 84 m2 of grass area into a landscape project was the premise of this commission.
© César Béjar
césar Béja
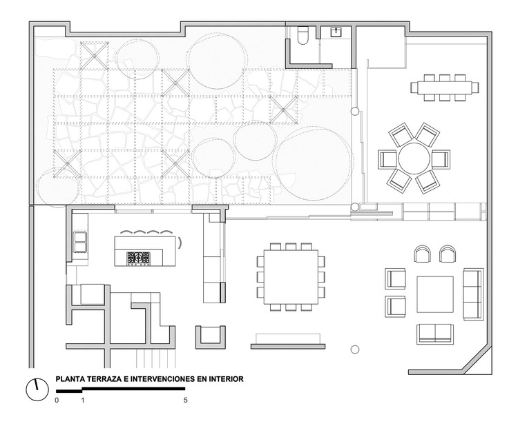
Floor Plan
Courtesy of TAAB
TAAB提供
这个项目的外部改造意味着,原先与花园分开的房子的内部区域,现在不仅可以看到它,而且成为了前排观众,直接与新的外层空间接触。
The exterior transformation of the project meant that the interior areas of the house, which had previously been unattached to the garden, now not only turned to see it but also became front-row viewers, directly engaging with the new outer space.
Columns Axonometric
柱轴测
这一景观项目由一个1M×1M的金属网格组成,上面覆盖着钢筋混凝土的金字塔式金库,支撑着一片柱子林立,巧妙地与建筑接触,形成了一个倒置的金字塔。
The landscape project is enclosed by a metallic grid of 1m x 1m covered with pyramidal coffers of reinforced concrete, supported by a forest of columns that subtly touch the structure forming an inverted pyramid with its capital.
© César Béjar
césar Béja
地面上铺有不规则的采石场块,这些石块是从米却肯州的Purepeha地区开采出来的,铺在一张沙床上。
The ground is paved with irregular quarry blocks extracted from the Purepecha area of Michoacán placed on a bed of sand.
Column Exploded
柱爆炸
Courtesy of TAAB
TAAB提供
Architects TAAB
Location Jacona, Michoacán, Mexico
Author Architects Diana G. Ortiz Moreno, Diego Torres Guízar
Area 84.0 m2
Project Year 2017
Photographs César Béjar
Category Small Scale
Manufacturers Loading...
客服
消息
收藏
下载
最近






















