查看完整案例

收藏

下载
© BASE Photography
基础摄影
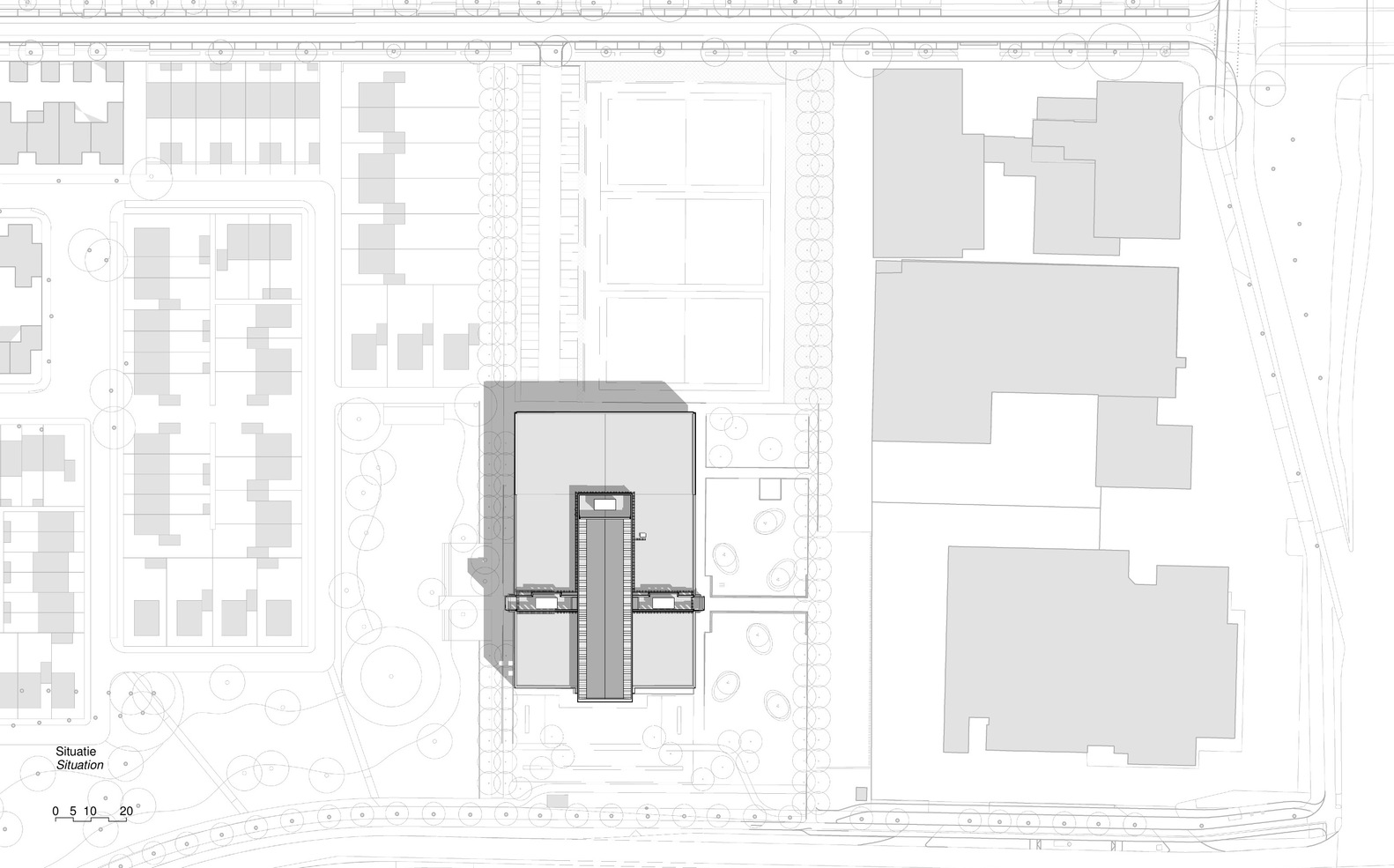
架构师提供的文本描述。奥古斯提尼亚南在艾因霍温被称为“聪明学生的学校”。学校的目标不仅是通过全面的教育,而且通过将体育、戏剧和流行音乐纳入他们的节目中,使自己与众不同。奥古斯丁是一所表明它所代表的东西并为其最初的内容增添内容的学校,它是由奥古斯丁神职人员管理的一所传统的文法学校。50年代的现有建筑物已不能满足当今时代的需要,因此决定在现有建筑物旁边的原运动场上建造紧凑的新建筑物。
Text description provided by the architects. The Augustinianum is known in Eindhoven as a ‘school for smart students’. The ambition of the school is to not just distinguish themselves through thorough education, but also through incorporating sports, drama and pop music in their programme. A school that shows what it stands for and adds substance to its Originally, the Augustinianum was a traditional grammar school run by Augustinian clerics. The existing buildings from the 1950s no longer met the demands of present times, which is why the decision was made to realize compact new buildings on the former sports grounds located alongside the existing buildings.
© BASE Photography
基础摄影
这些新建筑的核心设计理念是Agora。阿戈拉是古希腊许多城市的聚集地,也是一个交汇点和贸易地点。在奥古斯提尼亚,阿戈拉作为一个象征的相遇,位于学校的中心。围绕这一领域,专门研究语言科学、精确科学和社会科学的“专门领域”分别位于不同的楼层。
The central design idea for these new buildings was the Agora. The Agora, literally ‘gathering place’, was a meeting point and a trade location in many cities in ancient Greece. In the Augustinianum, the Agora serves as a symbol for encounters, located in the heart of the school. Around this area, the ‘expertise areas’, aimed at linguistic science, exact science and social science are each located on different floors.
Ground Floor Plan
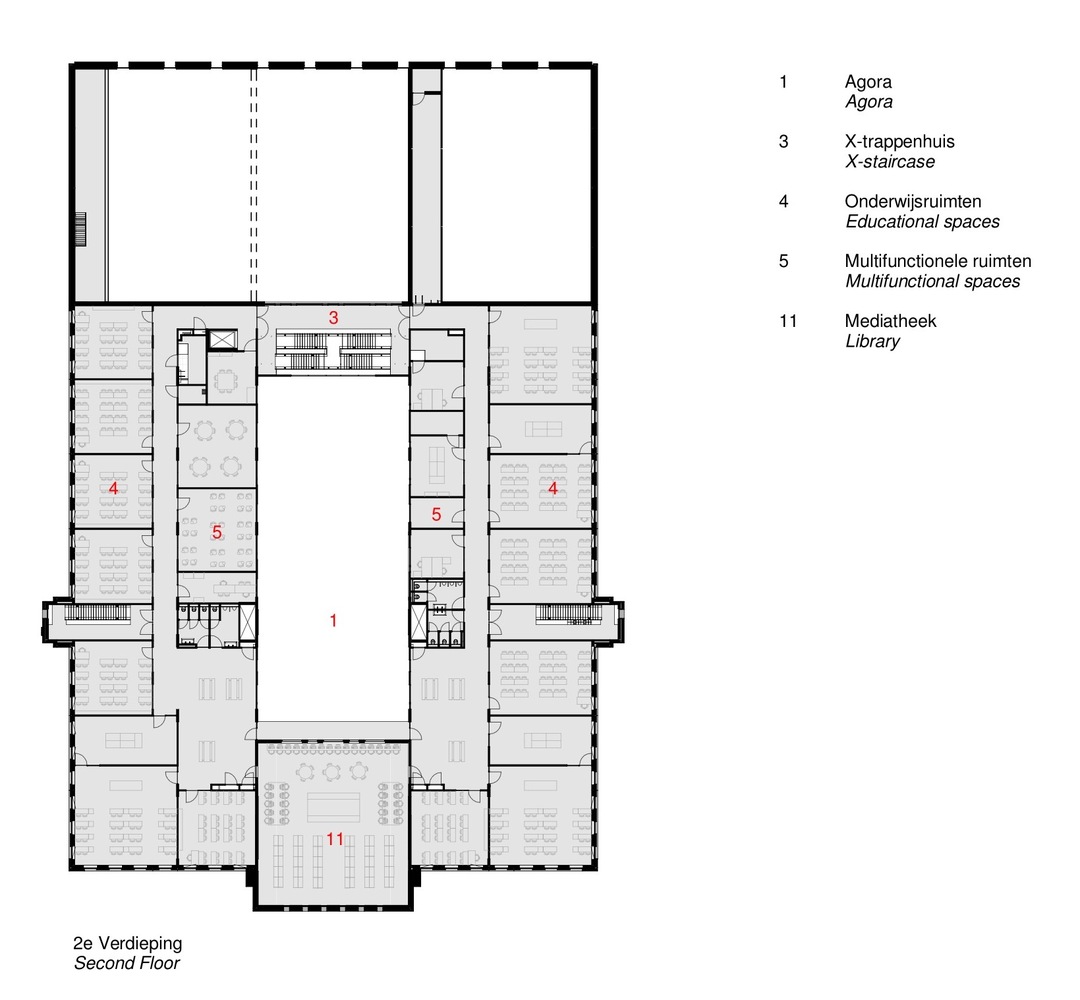
通过把教室和工作人员的房间周围的建筑周围,一个灵活的区域,几个功能是建立在阿戈拉周围。Agora地板通过露台向一楼爬去,这创造了一种特殊的学习和休憩景观,也可以作为表演和演讲期间的公共画廊使用。展厅末端的舞台延伸到外部区域。这些区域之间唯一的分隔是一个大剧院窗口,可以看到外面的绿地。在这扇窗户里,我们给出了从旧学校建筑中重新建立的描绘圣奥古斯丁的华丽的彩色玻璃窗。
By placing the classrooms and staff rooms around the perimeter of the building, a flexible zone with several functions is established around the Agora. The Agora floor climbs towards the first floor by means of terraces, which creates a special learning and recess landscape that can also be used as a public gallery during performances and presentations. The stage at the end of this gallery is extended to the exterior area. The only division between these areas is a large theater window with a view on the green space outside. In this window, we gave re-established the gorgeous stained glass window depicting St. Augustine from the old school building.
© BASE Photography
基础摄影
在舞台上,人们可以找到中央媒体图书馆,一个美丽的高级自习室。在外部,媒体图书馆和外部舞台一起,创造了一种针对街头的特色形象。阿戈拉和舞台是一个令人喜爱的休息区。当天气允许的时候,学校周围的绿地也提供了大量的休息机会。
Above the stage, one can find the central Media Library, a beautiful high study room. On the outside, the Media Library, along with the outside stage, creates a characteristic image aimed at the street. The Agora and the stage are a beloved recess area. When the weather allows it, the green spaces around the school also provide plenty of recess opportunities.
© BASE Photography
基础摄影
在阿戈拉的上升廊下,地下可以在地面上找到。这个空间包括戏剧、音乐、艺术和文化活动的房间。
Under the rising gallery of the Agora, the ‘underground’ can be found at ground level. This space consists of rooms for drama, music, arts and cultural activities.
© BASE Photography
基础摄影
在画廊楼梯的顶端,可以找到体育馆。在这些房间里,大窗户可以俯瞰运动场。高耸的体育馆是由A形柱支撑的,这是旧校舍屋顶上有特色的混凝土元素的呼应。自行车储藏室位于体育馆下面。这座建筑的外墙是由一颗多色、黄色的石头制成的,其中有一个由预制混凝土构件制成的基座。“A”
At the top of the gallery stairs, the gymnasiums can be found. In these rooms, large windows provide a view over the sports grounds. The raised gymnasiums are supported by A-shaped columns, which is an echo of the characteristic concrete elements on the roof of the old school building. The bicycle storage is situated underneath the gymnasiums. The façades of the building have been made from a multi-colored, yellow-ish stone, with a plinth made of prefabricated concrete elements. The ‘A’ of
奥古斯提尼亚纳姆也出现在这些正面。教室的窗户都放在长长的窗框里。楼梯高于外部的体积,这使它们的顶部成为许多安装的理想位置,因为它们可以隐藏在这种方式下。
Augustinianum is also represented in these façades. The windows of the classrooms have been placed in long window frames. The staircases are raised above the volume on the exterior, which makes the top of them the ideal location for the many installations, as they can remain hidden from view this way.
© BASE Photography
基础摄影
本设计是建筑设计的合拍。
The design is a co-production of architecten|en|en & Studio Leon Thier. This assignment was very personal for Leon Thier, as he is a former student of the “The architects have made this design with their heads, their guts and their hearts, creating a design that fits the atmosphere and touches you deeply.” Maarten de Veth, principal
© BASE Photography
基础摄影
作为对50年代以前学校建筑的参考,新奥古斯丁尼厄姆的正面是由黄色组合的砖砌而成,与预制混凝土的对比元件。
Product Description. As an reference to the former school building from the fifties, the facades of the new Augustinianum are made of yellow variegated brickwork with contrasting elements of prefabricated concrete.
© BASE Photography
基础摄影
Architects Studio Leon Thier, architecten|en|en
Location Eindhoven, The Netherlands
Architects in Charge Leon Thier, Frans Benjamins
Area 9311.0 m2
Project Year 2017
Photographs BASE Photography
Category Schools
Manufacturers Loading...
客服
消息
收藏
下载
最近




























