查看完整案例

收藏

下载
© Matthew Carbone
(马修·卡伯恩)
架构师提供的文本描述。纽约阿玛甘塞特的“小巷”是一套与主街垂直的可步行街道,点缀着各种各样的房屋和风格,即步行到海洋的距离。我们面临的挑战之一是要创造一个能够满足业主们的愿望的房子,无论是在里面还是外面,都可以拥有一座无维护、寿命长的房子。这导致了建筑的形状和材料将是坚韧的,没有精致的细节,并且不需要随着时间的推移重新完成。所有的外部材料,从烧焦的柏树到生料混凝土墙壁,再到锌屋顶,都是因为它们能够在一段时间内自然地抵御和破坏。窗户和门被紧紧地推到隔板的前方,以保持严密的天气密封。
Text description provided by the architects. The ‘lanes’ in Amagansett, New York, are a set of walkable streets perpendicular to Main street, dotted with a diverse range of houses and styles, that is walking distance to the ocean. One of our challenges was to create a home that would accommodate the owners wish for a maintenance-free house with longevity, inside and outside. This led to building shapes and materials that would be hardy, devoid of delicate detailing, and requiring no re-finishing over time. All exterior materials, from the charred cypress to raw concrete walls, to the zinc roof, are chosen for their ability to weather and patina naturally over time. Windows and doors are pushed tight up to the forward plane of the clapboards to keep a tight weather seal.
这一地区最近增加了房屋,房屋从一边延伸到另一边,在一个特定的包裹上,经常会让它窒息,我们选择了让边面,狭窄的一端,作为街道的前部。通过这样做,我们能够让房子较长的一面朝南直射太阳,同时与邻居保持适当的距离。前院被一个绿色的缓冲,一片草地软化,随着时间的推移,它将在街道上形成一个自然的绿色区域,同时为房主创造隐私。这所房子的第一印象是一堵生的、未完工的混凝土墙坐落在这片草地上;它的轮廓与熟悉的谷仓形状相呼应。它隐藏了车库,并缩小了房子的正面向下,以满足那些在车道上普遍存在的老房子。
In a departure from recent additions to the area, where houses extend from side to side, on a given parcel, often choking it, we opted to let the side facade, the narrow end, be the street-front. By doing so, we were able to let the longer side of the house face south and direct sun, while maintaining a suitable distance to the neighbors. The front yard is softened with a green buffer, a meadow, which over time will grow and create a natural green zone along the street while creating privacy for the homeowners. The first impression of the house is that of a raw, unfinished, concrete wall sitting in this meadow; its profile echoing the familiar shape of a barn. It hides the garage and scales the front face of the house down to meet that of older homes that were prevalent in the lanes.
© Matthew Carbone
(马修·卡伯恩)
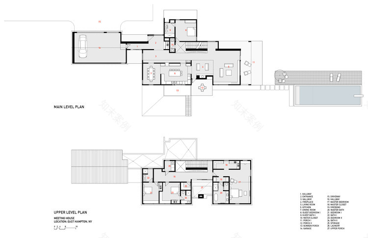
Floor Plans
平面图
© Matthew Carbone
(马修·卡伯恩)
很快,混凝土就让位给了一棵略微烧焦的柏树(一种有机的抗白蚁材料),开始了这两种材料之间的游戏,这两种材料贯穿了整个房子-隐士(木头)与基础锚定墙(混凝土)形成鲜明对比的空间。地面层专门用于居住空间,并为客人提供卧室。在客厅里,一个原始的钢制盒子被插入到混凝土墙中,为我们的客户收集稀有和老式的乙烯基唱片提供了方便的存储空间。与户外的连接,窗户的大小和悬垂,都是精心管理,以满足客户的愿望,强烈的内在感,以及过滤自然光。
Quickly, the concrete gives way to a slightly charred cypress (an organic anti-termite material), starting a play between these two materials that extends throughout the house — contrasting spaces of a recluse (wood) with foundational anchoring walls (concrete). The ground level is dedicated to living spaces and offers a bedroom for guests. In the living room, a raw steel box is inserted into a concrete wall providing accessible storage for our client's collection of rare and vintage vinyl records. The connection with the outdoors, size of windows and overhangs, is carefully managed to both addresses the clients’ wish for a strong sense of interiority, as well as the filtering of natural light.
© Matthew Carbone
(马修·卡伯恩)
二楼是父母的卧室,在最远处。它与孩子们的卧室隔开,有一个二楼的门廊和屋顶“断线”。门廊是通过南面滑动玻璃门进入的,该玻璃门与朝北的丝带窗一起,允许自然光进入房屋,并通过狭小的缝隙和开口以及楼梯和混凝土楼梯墙反射到房子的中心。房子的南侧有一个凹陷的庭院,北边有一口光线充足的水井,打破了场地的平整度,让光线被过滤到较低的层,把地下室改造成一个光线充足的家庭房间,有一个私人的户外空间。
The second floor holds the parent's bedroom, at the far end. It is separated from the children’s bedrooms with a second-floor porch and roof ‘cut-out’. The porch is entered through a south-facing sliding glass door that, together with the north-facing ribbon window, allow natural light to filter into the house and reflect down into the heart of the house via narrow slits, and openings, along with the staircase and its concrete stair-wall. A sunken courtyard on the south side of the house and a generous light-well on the north break the flatness of the site and allow light to be filtered into the lower level, transforming a basement into a well-lit family room with a private outdoor space.
© Matthew Carbone
(马修·卡伯恩)
© Matthew Carbone
(马修·卡伯恩)
Location Amagansett, United States
Lead Architects Maziar Behrooz, Bruce Engel, assistants: Haotian Xu, Brandon Ma
Area 7300.0 ft2
Project Year 2017
Photographs Matthew Carbone
Category Houses
Manufacturers Loading...
客服
消息
收藏
下载
最近




























