查看完整案例

收藏

下载
设计师: 陈明武 作品类别:别墅豪宅 振业天峦说明:
设计风格:现代中式风格
主要材料:简一大理石、瑞士卢森地板、索色木饰板、硬包
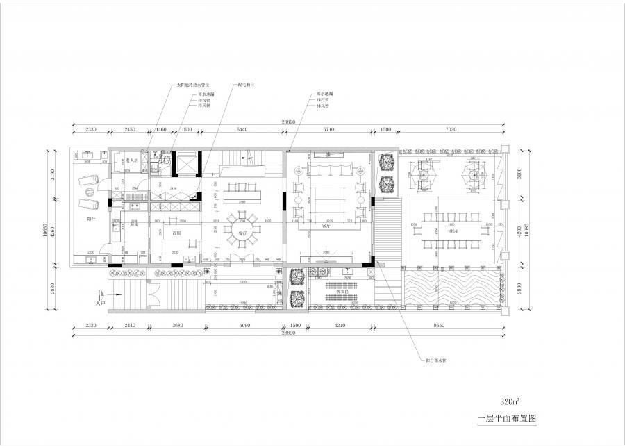
客厅是整体家居环境中的主体,客厅的空家感设计更需要切身的考虑到扩大整体空间的设计,现在的许多业主都会选择将客厅中的重点装饰放在电视背景墙上。家具设计中的软装搭配也很重要,比如说在沙发上采用靠垫、茶几上采用杯垫等都是能够体现软装的搭配,客厅中选择一些独特的印象画或者造型独特的工艺品等,都是显现出简约的设计理念,或者在客厅中的地面铺设一张个性十足的地毯,也是简约风格经常采用的设计形式。
品茶区静谧安然。品茶区的装修可以十分简略,可以水墨、宫廷画为饰。同时饰以壁灯散发出好看的光亮,将珍品茶具熏染出好看的光景。灯饰很矮,在人们的头上静静地亮着,三五友人在一起喝茶聊天,闭上眼睛慢慢享受茶香在口腔之内散发的感觉,可谓十分惬意。
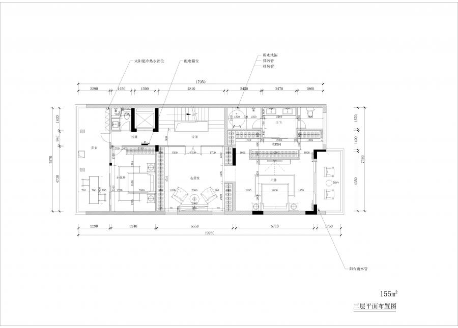
卧室一般是家居里人们非常重视的地方,如果希望光线柔和,色调温馨,但又显得稳重大气,深色木的运用结合磨砂玻璃,沉着稳重,但不呆板。米色墙纸与深木色的搭配让整个空间暖起来。它的简约大方是吸引人们的特点,什么时候都不会过时。
现代 中式 别墅豪宅 实木 大理石 金属
客服
消息
收藏
下载
最近























