查看完整案例

收藏

下载
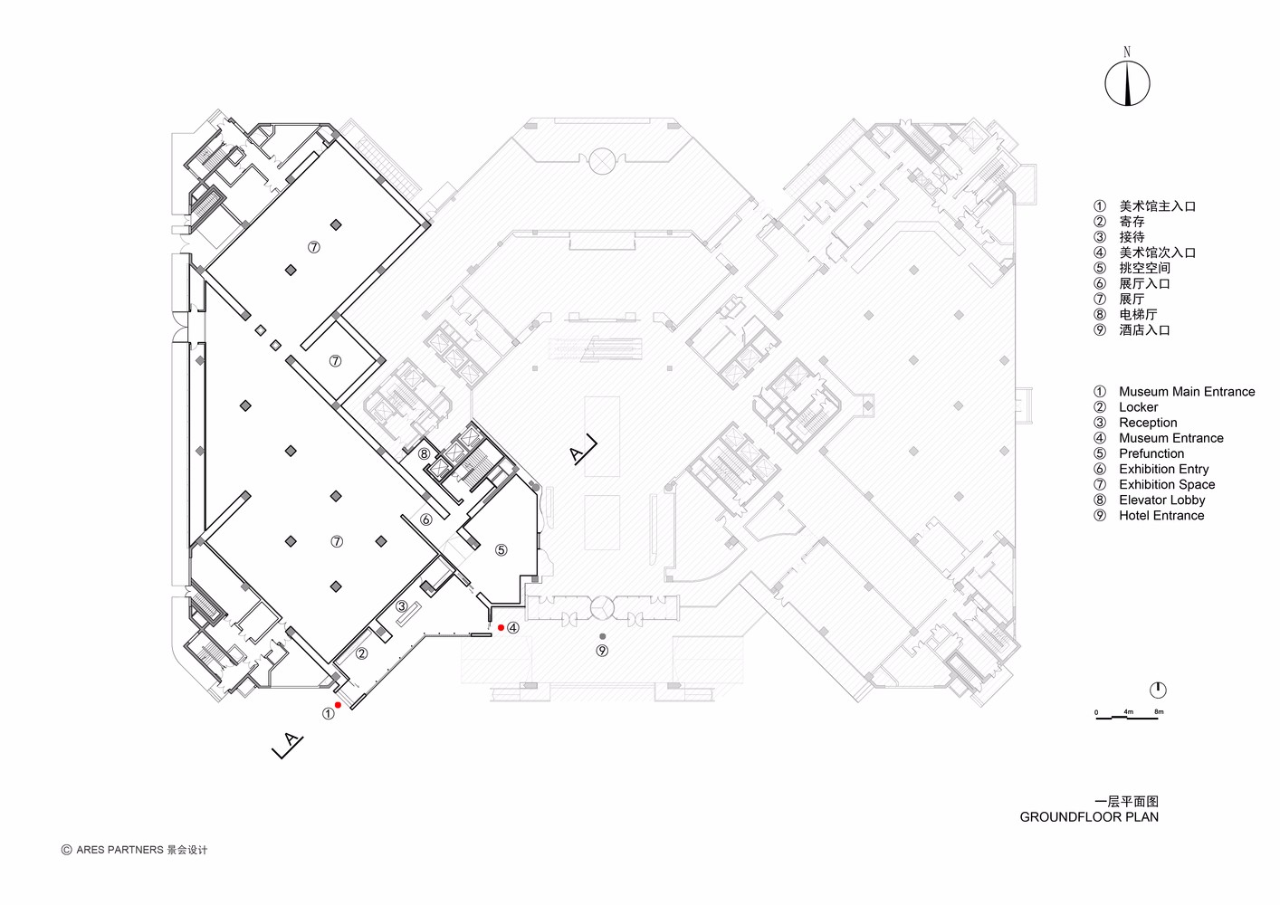
昊美术馆比邻上海浦东新区张江高科园区的万和昊美艺术酒店,空间位于酒店裙房的一至三层,其中展厅面积约4200平方米,美术馆办公及服务区域约2800平方米。
美术馆主入口位于昊美酒店建筑裙楼西侧新建的一个建筑体,考虑到原酒店建筑玻璃幕墙外观,入口门厅的设计在体量上力求“轻落地“的感受,形体简洁,以一个直面转折体块呈现, 角度同原建筑立面紧密契合,充分结合两者关系。
门厅外立面材料以超白U型半透玻璃与白色珐琅钢板相结合,白天半透的U型玻璃将室外的自然光柔和地带入美术馆的接待前厅,而晚上室内的灯光又使这个玻璃体在夜间发光,材料及环境的虚实交融关系更是如同美术馆对艺术审美和文化传播的融合。
从外形到内涵,设计语言简约,进入门厅后的室内空间亦如此,室内立面延用了室外的白色珐琅钢板、地面为硬化水泥,灯光的设计利落干净,甚至对灯具开孔尺寸有着极致的要求,透露出设计者对空间简约低调的设计态度,充分保持着艺术展示空间的纯净性。
穿过门厅长廊, 在经过了一个8米高的挑高空间和一个如同嵌套的“盒体“通道后,空间延伸至展厅。“盒体”的内壁一周均为白色钢板材质,线条简练直挺,给人以视觉与感知的联想,展厅空间为了尽可能的争取空间高度,顶面为开放式框架结构,所有顶部管道及照明支架等视觉可见部分均与墙面一致为白色,在视觉上产生空间的延伸。
展厅空间开敞方正,一层展厅地面为硬化水泥,二层与三层展厅地面为木地板,整个美术馆室内材料以白色为主基调,而各种不同材料的白色看似相同却略显现各自不同的特性与质感, 略微的不同丰富了层次但仍然低调不张扬,让观展人在纯粹的空间中更准确、更自由地感知艺术作品。
美术馆的三层为昊设计中心,昊图书馆,展厅区域及美术馆办公区。 美术馆的观展人通过HOW艺术商店出口到达另一个白色“盒体”空间来结束整个观展的路径/过程,这个“盒体“与一层起点处的“盒体”遥相呼应。
昊美术馆在设计中最大限度的避免形式感,但并不代表设计的粗糙和对细部处理的忽略。如门厅内外立面的珐琅钢板的尺寸和拼接缝看似随意,却是经过精心设计和计算定位而成。
现已开馆的昊美术馆也是上海唯一夜间开放的美术馆,将与万和昊美艺术酒店、昊设计中心、昊雕塑公园等艺术欣赏与文化体验活动融合为全新的艺术综合体和浦东新地标。
客服
消息
收藏
下载
最近
















