查看完整案例

收藏

下载
产品开发:Gary.Zeng
设计机构:GID国际设计
软装设计:FW&SCULTURA
“十里秦淮灯火灿,楼台亭榭绕河堤;
笙歌浓酒盈朱雀,古籍奇珍满乌衣。”
诗词里的六朝古都精致而又明艳,
穿着旗袍吴侬软语的秦淮女子,
朱唇轻启吟着秦淮景......
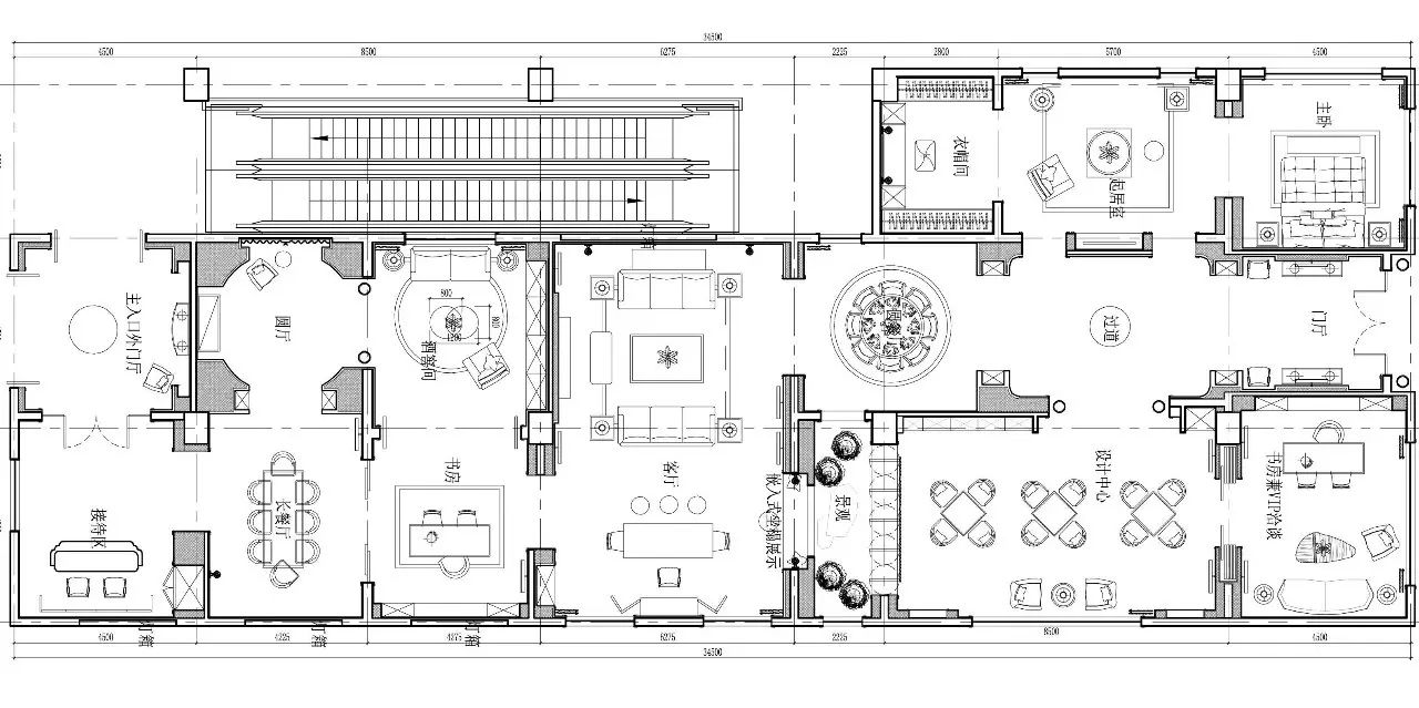
一抹古墙,追忆一个时代。一片灰瓦,诉说一段柔情。2017年6月,图森木作第一品牌形象店,就在这座古都(南京)中呈现。【图森.东方系列】由设计师曾建龙倾力打造,空间意取大宅之灵气、造当下东方美学观。 前厅
"合院之好,在于有房、有院。关上大门,自成一体,走出房门,顶天立地。四顾环绕,中间舒展,廊栏曲折,有露有藏"。展厅采用东方“五进宅”的布局形态,展大宅之风,曲径通幽、移步异景。
设计师希望用当代的设计手法展现古典东方园林的韵律,取古典园林之精髓 [隔而不隔、界而不界] 的思想界面来进行空间表现。没有具体的显形符号,而是通过雕琢无形的氛围呈现精神的本源。
与前厅具有历史韵味的朱砂红不同,接待区更像是一位风度翩翩的浪漫诗人,吧台与座椅上一抹轻柔雅致的蓝,如烟似梦,引出朦胧的诗意。一旁的月洞起着框景的作用,似露似隐在迷离而幻妙的雅情美境之中。 餐厅
空间由前厅、接待区逐渐拉开序幕,发展至餐厅、书房、到客厅、起居室再到卧室,一气呵成。设计师将 “生活情怀” 融入空间,以展现当下大宅之生活理念为核心。每个空间的起承转合,都无不呈现出“家”的温度。
“在设计之初,我们首先对其进行了商业模块的设计,我自己也不再单纯的扮演一个空间设计师,而是在项目前期的空间定位和导向时就以多方面的角色来思考”,设计师曾建龙说。
同时,【图森.东方系列】的设计理念亦延续海派东方当下美学,以低奢、优雅、贵族气质诠译。包容性是海派文化中最为显著的一个特点,东西方文化在此得以“共生”,就如同图森.东方的美学价值观,空间可望、可行、可游、可思。 书房
书房是品味、质地、沉淀与包容的所在。深咖色的运用大气而有张力,沉稳的木质家具点缀金色被引入空间与时光对话,古雅又不失摩登。
“鹤立花边玉,莺啼树杪弦”。素墙上的尺幅窗,勾勒出“松鹤延年”之无心画,这些本就相生相守的物是人对自然的敬畏,是设计师的巧思也是一种东方文化的体悟。 客厅
客厅延续中国古典大宅布局,注重中正礼序,认为“能致中和,则天地万物均能各得其所,达至和谐境界”。同时也是中、西方的碰撞与共生,摩登时尚的沙发与古雅的墨绿鼓凳,奢华的欧式吊灯与气派的琉璃挂画,相互作用亦相互成就。
比起客厅,起居室的设计就更偏向舒适的功能性。空间以深浅色搭配,点缀墨绿单椅与橙色的抱枕,提亮空间色彩,使之更加具有趣味性。家具款式也更为简洁、利落,看似不经意的搭配之下,一切浑然天成。
“物境”、“意境”、“心境”,是我们通常所说的三境。物境为表象,意境为感知而心境是物境与意境对人产生的影响。有人说“有了精致的睡眠才能有精致的生活”,卧室是一种生活方式的体现,作为家中最重要的空间之一既要有私密性又必须兼得品质感。
卧室以深、浅咖色相互作用,没有一丝多余。更多的是用宾至如归的精致叠加深厚的东方文化底蕴,凸显【图森.东方系列】的精神与情怀。
“我们更希望以自己当下的生活态度,为市场消费者呈现和创造更好的、更适合当下东方调性的生活美学空间。图森木业作为中国固装大品牌,同样以多样性、包容性、创新性的态度进行产品的设计和生产制造,为中国不同城市的百姓提供高品质、物有所值的产品。”设计师曾建龙说。
GID格瑞龙国际设计有限公司创始人、董事
新加坡FW国际设计中国区负责人
亚太酒店协会中国区副秘书长
上海琅宿酒店投资管理公司董事、创始人
再生生活联合设计品牌创始人
首位与意大利顶级品牌PROVASI合作设计的华人设计师
商业空间 新中式 东方美学 南京 曾建龙
客服
消息
收藏
下载
最近











































