查看完整案例

收藏

下载
这座建筑的设计是源于“经济型酒店”这个理念。酒店服务的客户群是来这座城市过周末的短途旅行者和寻找短暂歇脚处的公务出行人,他们所需要的一个简单舒适的住所。酒店有20间15平方米大小的客房,房内家具设施均采用高质量、小体量的配置,减少客人不需要或不愿意支付的项目,节约建设成本,合理利用空间。
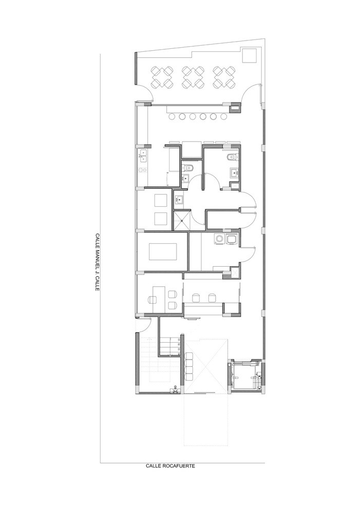
建筑共有五层,首层有入口、大堂、前台、行政办公室、服务台,还有被一块大型彩色玻璃分隔成两个空间的快餐吧,室内提供空调,室外有宽敞的露天平台。
酒店位于las Peñas of Guayaquil 市的中心位置,距离该市最大的旅游景点只有200米,也可通过高速公路在几分钟内到达Jose Joaquin de Olmedo机场,公交车站及城内其他地方。
建筑位于整个街区的转角处,入口连接着着主要交通步道,因而每间客房都有自然采光和通风,并且可以观赏到城市景观,区位优势显著。
二至五层采用同样的设计格局,客房、电梯和紧急疏散楼梯通过走廊串联在一起,各层间细微的差距仅在于公共空间立面的处理方式。顶层有个普通层双倍高的大厅,会议室,一个连通室外露天平台的阳台,存放着空调、热水和通风设备。
施工的总体原则是利用高效及可持续的建筑材料。建筑为钢筋混凝土结构,采用TECNILOSA材质楼板和 HORMI2(增强聚苯乙烯)墙体来减轻建筑的总重,以减少了施工成本及时间。
酒店设计采用简单纯粹的风格,材质选择为灰色调,白墙则由黑色及银色来装饰细节,加上独特的迷惑紫色,外墙面的大玻璃让建筑获得大量自然光,给这栋之占地174平方米的建筑营造出宽敞的感觉。
客服
消息
收藏
下载
最近

















