查看完整案例

收藏

下载
© Adrien Williams
阿德里安·威廉姆斯
架构师提供的文本描述。在20世纪50年代在圣兰伯特购买了一栋单层住宅之后,客户希望扩建和翻新这座“草原屋”灵感建筑。
Text description provided by the architects. Following the acquisition of a single-storey house from the 1950s in St-Lambert, the client wished to expand and renovate this "Prairie house" inspired building.
© Adrien Williams
阿德里安·威廉姆斯
现有的房屋部分被拆除和重建,通过重新解释的特点,以一种现代的方式,如一个低和拉长的轮廓,一个突出的屋顶和使用砖石和木材的正面。屋顶上覆盖着成品钢锌,正面由圣马克石灰石和雪松板条中的嵌板组成。整体壁炉是主要的元素,是内部生活空间和花园之间的延续。
The existing house is partly demolished and rebuilt by reinterpreting features in a contemporary way such as a low and elongated profile, a overhanging roof and the use of masonry and wood on the facades. The roof is covered with finished steel zinc, while facades are composed with St-Marc limestone and insertions of panels in slats of cedar. The monolithic fireplace stands out as the main element which is a continuation between the internal living spaces and the garden.
© Adrien Williams
阿德里安·威廉姆斯
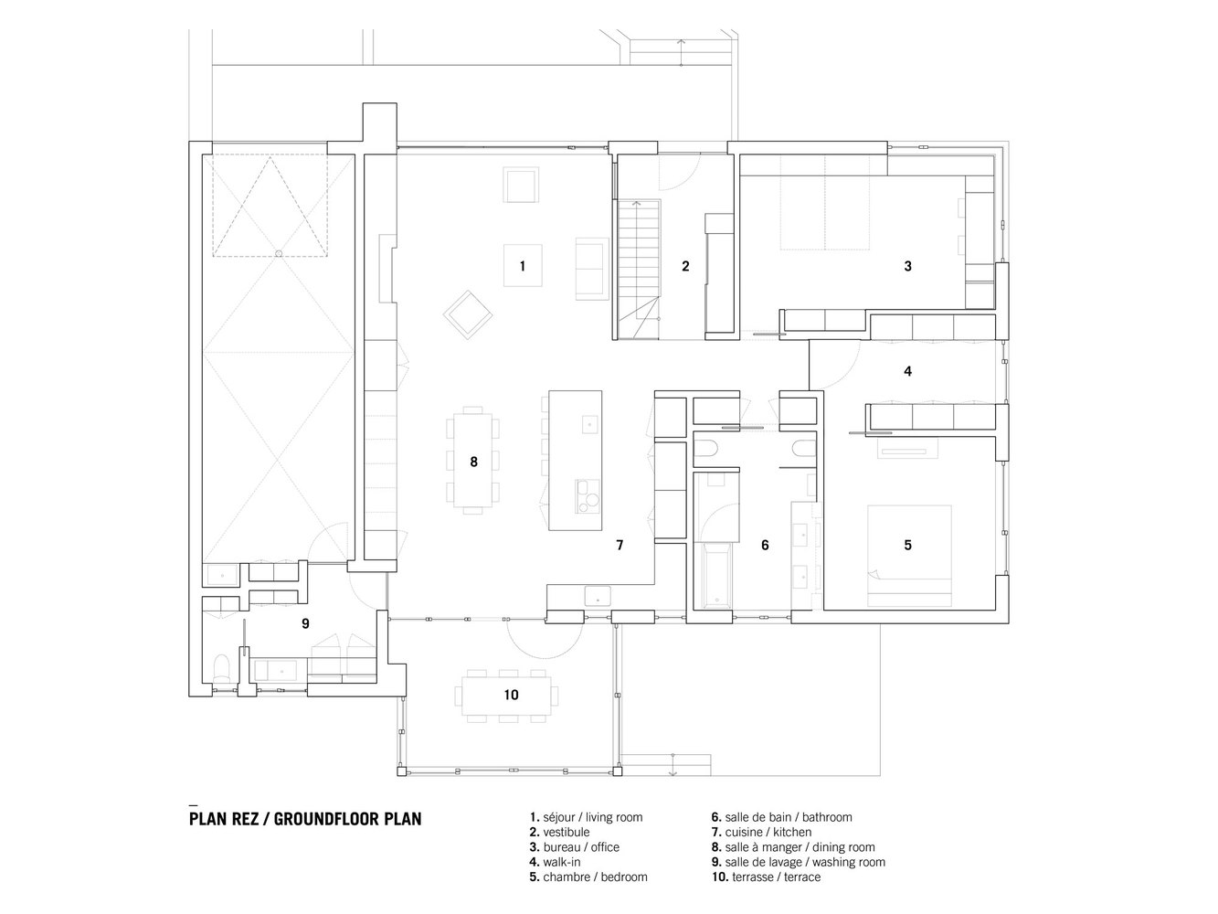
响应客户的愿望,创造宽敞和明亮的居住空间,底层布局包括最低限度的单一卧室毗邻一个书房和完整的浴室。设计的透明和轻盈,生活空间是超越了一个16英尺的倾斜天花板在其最高点。在诱导视觉流动性的想法中,前厅由白色油漆钢框架内的玻璃板分隔。
Responding to client’s desire to create spacious and bright living spaces, the ground floor layout includes minimally a single bedroom adjoining a study and full bathroom. Conceived with transparency and lightness, the living spaces are surmounted by a 16-foot sloping ceiling at its highest point. In the idea of inducing a visual fluidity, the vestibule is delimited by glass panels contained within white painted steel frames.
© Adrien Williams
阿德里安·威廉姆斯
Architects NatureHumaine
Location Saint-Lambert, Canada
Area 240.0 m2
Project Year 2017
Photographs Adrien Williams
Category Renovation
Manufacturers Loading...
客服
消息
收藏
下载
最近



















