查看完整案例

收藏

下载
© Young-chae Park
(三)永泽公园
架构师提供的文本描述。KINK HUN位于首尔的边界,周围是前景中的森林和背景中著名的Bukhansan所构成的独特景观。建筑师和客户都同意,与山的关系将是项目的指导方针。建筑物的形状是两种条件结合的结果。第一个是与山的关系,第二个是情节的形状。为了减少房屋的密度,两个马当(建筑之间的空隙)之间的空间被连接起来。
Text description provided by the architects. Knock Knock Heon is located on the border of Seoul, surrounded by an exceptional landscape made up by a forest in the foreground and the famous Bukhansan in the background. Both the architect and the client agreed that the relationship to the mountain would be the guiding line of the project. The building shape is the result of the combination of two conditions. The first one is the relation to the mountain and the second one is the shape of the plot. In order to reduce the density of the house, the spaces are articulated between two Madang (void between the constructions).
© Young-chae Park
(三)永泽公园
Lower Floor Plan
低层平面图
© Young-chae Park
(三)永泽公园
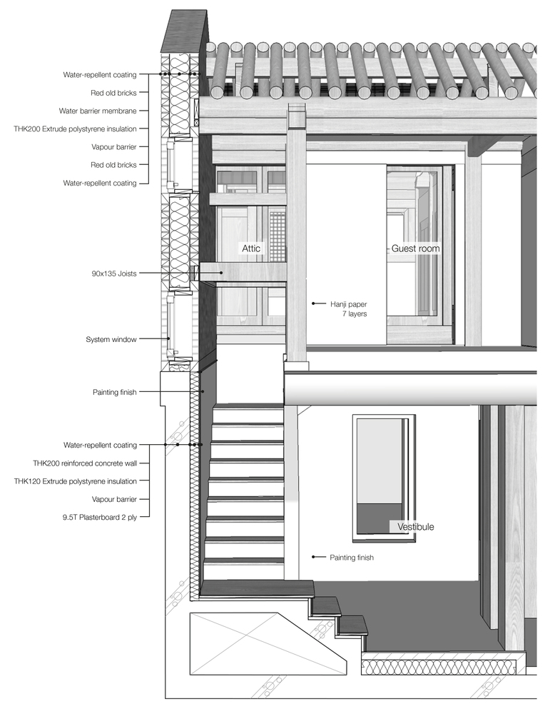
第一种是锯齿状类型与丹江(朝鲜边墙)之间的关系所产生的残馀空间,其形式是一个支离破碎的庭院,加强了从房子到山的视觉联系。第二个马当位于房子的背面。更内向的是,沉陷的马当就像一个庭院,为地下室空间带来光和空气。这所房子分为两部分。为了找到平衡,仔细计算了房屋楼层与道路之间的水平差异。即:与山体的持续视觉连接,光线进入下一层,以及道路水平与入口之间可接受的空隙。
The first one is the residual spaces generated by the relationship between the serrated typology and the Damjang (Korean boundary walls) taking the form of a fragmented courtyard and reinforcing the visual connection from the house to the mountain. The second Madang is located on the backside of the house. More introverted, the sunken Madang is like a patio bringing light and air to the basement spaces. The house is divided into two parts. The level difference between the house floor levels and the road were carefully calculated in order to find the balance. Namely: A constant visual connection to the mountain, the penetration of the light into the inferior storey and an acceptable gap between the level of the road and the entrance.
© Young-chae Park
(三)永泽公园
Cross Section
© Young-chae Park
(三)永泽公园
低层的设计就像支撑汉诺克河的基岩。为了满足住宅的所有功能需求,地下室可以作为一个独立的部分。当哈诺克稍微脱离地面时,光线和空气可以透过一个ClearStory窗口穿透到室内空间。围绕着沉陷的马当(露台),神秘的空间明亮而舒适,不给人在地下室的感觉。为了创造一个流体和舒适的空间,需要一个反室。经过精心布置,门厅和楼梯是房子必不可少的部分,它们不仅在两层楼之间起到了慷慨的门槛作用,而且还能让优越的空间专注于与山的关系。
The inferior storey was designed like a bedrock supporting the Hanok. Fulfilling all the functional need of the house, the basement could be used as an autonomous part. As the Hanok is slightly detached from the ground, the light and the air can penetrate into the interior spaces through a clearstory window. Organized around the sunken Madang (patio), the cryptic spaces are bright and comfortable, and does not give the feeling to be in a basement. In order to create a fluid and comfortable space, an anti-chamber was needed. Carefully positioned, the vestibule and staircases are essential parts of the house, not only they act like as generous thresholds between the two floors but also it allows the superior spaces to focus on its relationship with the mountain.
Courtesy of guga Urban Architecture
GUGA城市建筑
结构材料的演变突出了下至上部分之间的软过渡。实际上,从地下室的混凝土开始,我们正穿过相互连接的楼梯的砖墙,来到汉诺克的木结构。传统的努马鲁(一个有全景的木制地板的空间)启发了餐厅。在这个房子里,努马鲁人把东西放在混凝土板上。这个项目展示了韩国传统汉诺克的演变能力。由于这种新的形状和新的技术,这座房子能够释放一些建筑和机械的限制,从传统的汉诺克,并产生更多的舒适,光和空间。敲门符合现代社会的需要,但同样允许传统生活方式和现代生活方式共存。
The evolution of the structure material highlights the soft transition between the inferior to the superior part. Indeed, starting from the concrete of the basement, we are passing through the brick walls of the interconnected staircase to the wooden structure of the Hanok. The traditional Numaru (a space with a wooden floor that has a panoramic view) inspired the dining room. In this house, the Numaru lays as an object on a concrete plate. This project shows the capacity of the evolution of the traditional Korean Hanok. Thanks to this new shape and the new technologies, this house was able to free some architectural and mechanical constraints from the traditional Hanok and produce more comfort, light and space. Knock Knock Heon fits the need of the modern society but in the same allow a coexistence between the traditional and modern lifestyles.
Architects guga Urban Architecture
Location Jingwan-dong, Eunpyeong-gu, South Korea
Lead Architects Junggoo Cho
Design Team Jiyoung Joe, Soomin Yang, Jinkyeong Park
Area 175.02 m2
Project Year 2016
Photographs Young-chae Park
Category Houses
Manufacturers Loading...
客服
消息
收藏
下载
最近






























