查看完整案例

收藏

下载
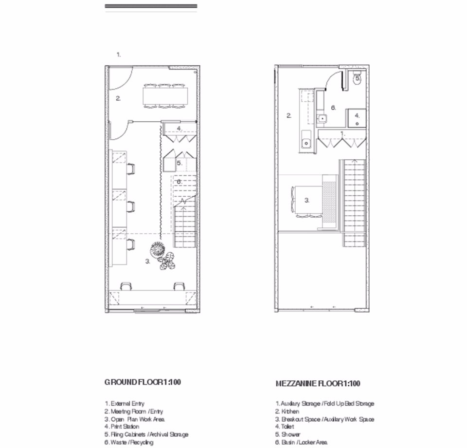
本案位于墨尔本西部的一栋既有工业建筑之内,是一家经验丰富的当代律师事务所的办公地点。这里曾经是一间十分紧凑的仓库,面积仅有75平方米,而新的项目要求包括办公区域、会议室、入口及接待区域、打印及档案室、讨论室,以及供孩子们放学玩耍的空地。
基于紧凑的空间和广泛的需求,设计师所提出的解决方案是将不同的空间结合起来,以同时承担多种功能。设计师并未设计传统的接待台,而是将会议室、入口及等待区域集中在同一位置,并利用窗帘为会议室提供必要的私密性。讨论室同时还可作为孩子们放学后看电视的地方。
客服
消息
收藏
下载
最近








