查看完整案例

收藏

下载
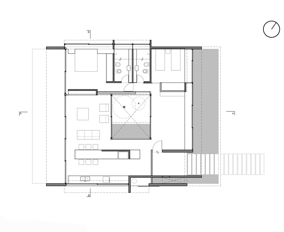
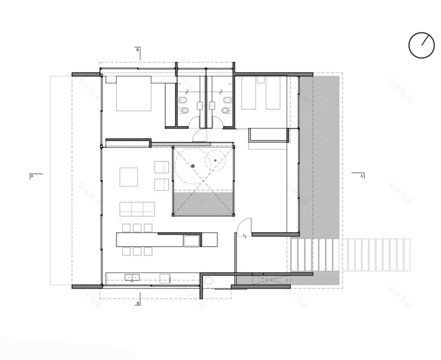
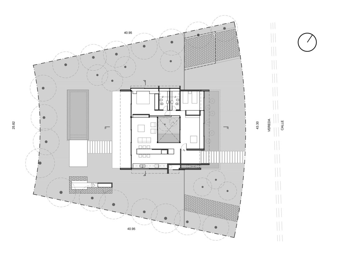
这座混凝土住宅是由Luciano Kruk设计的,位于阿根廷布宜诺斯艾利斯郊区。卡萨-马赫-被称为财产-占地总面积为1528平方英尺(或142平方米),并有一个反射池沿其前端。
混凝土房屋门窗廊前的景观
水喷泉在房子的廊前视图
松木板被用作混凝土墙的模板,当它们在材料干燥后在其表面留下印记时,其结果是粗糙的,类似木材的纹理。这种做法是卢西亚诺·克鲁克的典型作品,他经常在布宜诺斯艾利斯和阿根廷其他城市的郊区设计这样的混凝土住宅。
从画廊的角度看这座房子的混凝土墙
主入口喷泉的画廊细节视图
我们推荐这些项目-建筑宏伟的混凝土建筑,周围是茂密的绿色植被屋,混凝土房屋,有壮观的海上景观
根据客户的要求,一个内部庭院位于家庭的中心,允许更大的通风和更密切的关系与外部。一个较小的倒影池坐落在这个庭院里,周围是一些绿色植物,给空间带来了一种微妙的活力感。
廊后花园露台混凝土屋面的景观
带露台的廊池区景观
画廊主入口处用混凝土瓷砖观赏
画廊外部视图
画廊中的视图
长廊内的花园被玻璃墙环绕的景致
现代休息区,有玻璃和混凝土墙。
画廊中的现代厨房混凝土与黑色景观
廊内有混凝土岛的大厨房
厨房和客厅都是在一个开放的空间中存在的,这使得他们之间的交流变得很容易。清澈的玻璃门排列在墙壁上,通向一个露台,可以俯瞰游泳池和花园。
混凝土的使用使家庭内部始终保持凉爽,这有助于温度控制和节能。
画廊、混凝土岛和黑色金属椅的景观
画廊中的视图
混凝土房屋玻璃墙面在画廊房间内的景观
画廊景观混凝土房屋壮观的外部景观
廊外夜景
游泳池区的室外夜景
从外部看室内的画廊视图
画廊中的视图
画廊中的视图
画廊中的视图
画廊中的视图
画廊中的视图
keywords:Bedroom Concrete Walls Contemporary Interior Design Decorative Accessory Dining Room Glass Walls Hall and Entrance Kitchen Landscaping Lighting Living Room Swimming Pool Terrace
关键词:卧室、混凝土墙、现代室内设计、装饰附件、餐厅、玻璃墙、大厅和入口厨房、景观美化、照明、起居室、游泳池平台
客服
消息
收藏
下载
最近



























