查看完整案例

收藏

下载
© Bengt Stiller
本特·斯蒂勒
架构师提供的文本描述。与高山景观的对话
Text description provided by the architects. Dialogue with the Alpine Landscape
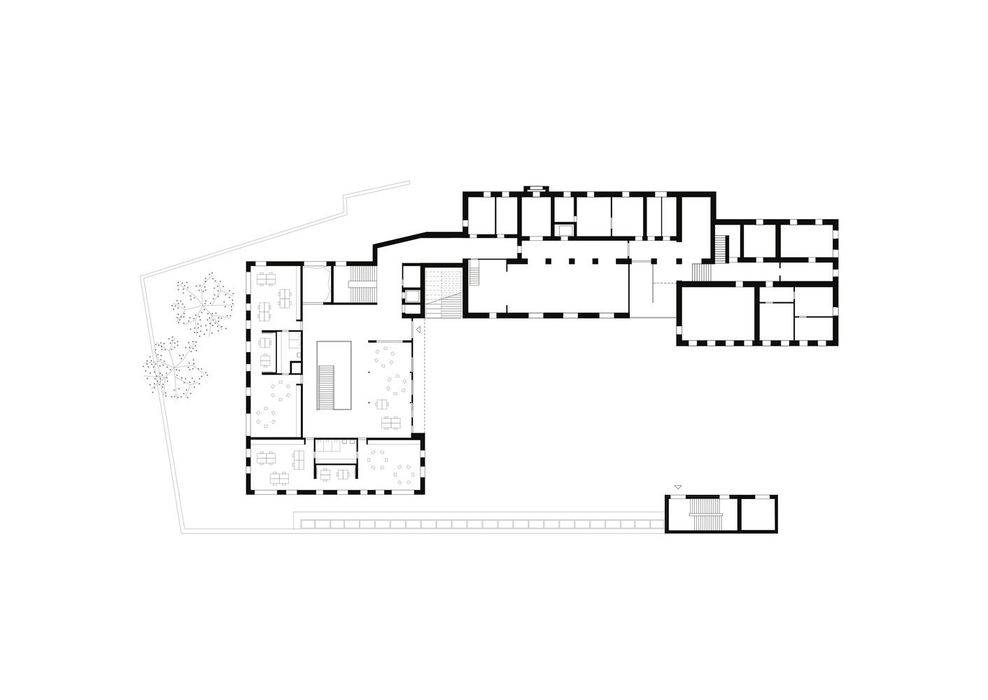
在Absam这个7000人的社区里,这座新建筑的空间不大。Absam是霍尔-瓦滕斯地区的“奥林匹亚人的村庄”,距因斯布鲁克只有20分钟车程。因此,建筑师Schenker Salvi Weber决定把运动场埋在地下,出于结构上的原因,把这座两层楼高的幼儿园建在一个轻薄的木框架结构中。
There wasn’t much space for the new building in the 7000-person community of Absam, the “village of the Olympians” in the Hall-Wattens region, just 20 minutes by car from Innsbruck. So the architects Schenker Salvi Weber decided to situate the sports hall underground and, for structural reasons, build the two-story kindergarten atop in a lightweight wood frame construction.
© Bengt Stiller
本特·斯蒂勒
和谐戏剧
Harmonious Dramaturgy
新幼儿园是对110年历史悠久的小学的补充,在喀温德尔山脉风景如画的阿尔卑斯山背景下,创建了一个受保护的、吸引人的校园。它的建造量与村庄和儿童的适度规模相匹配,并与现有的合奏无缝地结合在一起。为了与周围环境保持一致,这幢两层高的木结构建筑上覆盖着划痕的灰泥.
The new kindergarten complements the 110-year-old historic primary school to create a protected and inviting schoolyard against the picturesque Alpine backdrop of the Karwendel mountain chain. Its built volume matches the modest scale of the village and the children and integrates seamlessly into the existing ensemble. In keeping with the surroundings, the two-story wood building is clad with scratched plaster.
© Bengt Stiller
本特·斯蒂勒
幼儿园内部:一个儿童规模的有趣学习景观
Inside the Kindergarten: A Playful Learning Landscape at a Child’s Scale
被动房屋的内部推动了建筑师工作中普遍存在的一种哲学。在这里,房间被构造成一个和谐的空间连续体,一个儿童规模的有趣的学习景观,从外部和内部,水平和垂直的各种不同的有吸引力的观点。
The interior of the passive house promotes a philosophy prevalent in the work of the architects. Here the rooms are structured into a harmonious spatial continuum, a playful learning landscape at a child’s scale with a diverse range of attractive views both to the outside and inside, horizontally and vertically.
© Bengt Stiller
本特·斯蒂勒
这所房子可容纳120个幼儿园和24个托儿所,分布在八个小组间。不同大小的洞口在外观上都有松饼,你可以坐在上面,从字面上“在眼睛层面”向大自然提供框架式的视图-无论是小的还是成人的。壁龛,社区空间,开放的和亲密的房间序列交替和相互流动。他们的功能可以由主管通过门、窗帘和滑动板进行修改,为较小的团体、创意游戏或午后午睡提供空间,同时保持对所有活动的良好概述。
The house accommodates 120 kindergarten and 24 nursery places, which are distributed throughout eight group rooms. Different sized perforations in the façade have soffits you can sit on and offer framed views to nature literally “at eye level” – both for the little ones as well as adults. Niches, community spaces, open and intimate room sequences alternate and flow into one another. Their functions can be modified as desired by the supervisors through doors, curtains, and sliding panels, fostering spaces for smaller groups, creative games, or the afternoon nap while maintaining a good overview of all activities.
© Bengt Stiller
本特·斯蒂勒
幼儿园的材质色彩观
Material and Color Concept of the Kindergarten
色彩和材料的概念-涂油橡木家具,实心橡木地板,毡窗帘和浅棕木羊毛声学天花板-是有意识地保留,就像高质量的油橡木家具设计,由申克萨尔瓦多韦伯,并由地区手工艺企业制造。
The color and material concept – pastel colors with oiled oak wood furnishings, solid oak parquet floors, felt curtains, and light-brown wood wool acoustic ceilings – is consciously reserved, just like the high-quality oiled oak furniture designed by Schenker Salvi Weber and manufactured by regional handcraft businesses.
© Bengt Stiller
本特·斯蒂勒
光明地下三层体育馆
Bright Subterranean Triple Gymnasium
幼儿园的物质概念继续在地下44x22米的三重体育馆中进行,其中白色木羊毛声学天花板和温暖的橡木作为窗框、门、扶手和观众席。作为一个主要的口音,建筑师选择了裸露的混凝土和明亮的矿物陶瓷瓷砖的原始触觉,强调地下,矿物和洞穴的性质。
The material concept of the kindergarten is continued in the underground 44 x 22 meter triple gymnasium with white wood wool acoustic ceilings and warm oak for the window frames, doors, handrails, and spectator stands. As a dominant accent, the architects selected the raw haptics of exposed concrete and bright mineral ceramic tiling, emphasizing a subterranean, mineral, and cavernous quality.
© Bengt Stiller
本特·斯蒂勒
屋顶下的音乐学校
Music School under the Roof
体育馆通过地下通道连接到小学。在其历史悠久的嘻哈屋顶下,一所音乐学校仅占地550平方米,有6个排练室和一个大型礼堂,配备了一个宽敞、节省空间的坐席,而不是椅子。
The sports hall is connected to the primary school via an underground passageway. Under its historic hip roof a music school is housed on a mere 550 square meters with six rehearsal rooms and a large auditorium furnished with a generous, space-saving seating surface as opposed to chairs.
© Bengt Stiller
本特·斯蒂勒
这里也提到了幼儿园和体育馆的重要性。温暖的橡木与白色的彩绘屋顶结构完美地结合在一起,音效好的白釉隔板创造了一种明亮和喜庆的气氛,使较小的空间显得更加宽敞。
Reference is made to the materiality of the kindergarten and gymnasium here as well. The warm oak wood combines elegantly with the white painted roof structure, and the acoustically-effective, white-glazed laths create a bright and festive atmosphere, making the smaller spaces seem all the more generous.
产品描述:幼儿园的材质和色彩概念
Product Description: Material and Color Concept of the Kindergarten
色彩和材料的概念-涂油橡木家具,实心橡木地板,毡窗帘和浅棕木羊毛声学天花板-是有意识地保留,就像高质量的油橡木家具设计,由申克萨尔瓦多韦伯,并由地区手工艺企业制造。实木儿童桌椅是由泰罗林家具公司Hussl制作的。
The color and material concept – pastel colors with oiled oak wood furnishings, solid oak parquet floors, felt curtains, and light-brown wood wool acoustic ceilings – is consciously reserved, just like the high-quality oiled oak furniture designed by Schenker Salvi Weber and manufactured by regional handcraft businesses. The solid wood children’s tables and chairs were made by the Tyrolean furniture company Hussl.
© Bengt Stiller
本特·斯蒂勒
“我们希望在功能上尽可能灵活地创造空间,而不需要太多的固定边界。材料和颜色应该传达温暖和舒适,后退一步,作为孩子们创造力的理想背景,孩子们无论如何都会为自己增添色彩的个人色彩。“申克·萨尔瓦多·韦伯
“We wanted to create spaces as functionally flexible as possible and without too many fixed borders. The materials and colors should communicate warmth and comfort and step back to serve as an ideal background for the creativity of the children, who will anyway add their own personal touches of color.” Schenker Salvi Weber
© Bengt Stiller
本特·斯蒂勒
Architects Schenker Salvi Weber Architekten
Location Absam, Austria
Architect in Charge Michael Salvi, Thomas Weber, Barbara Roller
Area 7246.0 m2
Project Year 2016
Photographs Bengt Stiller
Category Refurbishment
Manufacturers Loading...
客服
消息
收藏
下载
最近































