查看完整案例

收藏

下载
© Eresh Weerasuriya
(Eresh Weerasuriya)
架构师提供的文本描述。这座别墅位于斯里兰卡坎迪市一座山丘上的10.5平顶(265平方米)土地上,俯瞰着历史悠久的康迪湖。一处狭长的场地,坐落在两栋4-5层公寓楼之间。别墅长约70英尺,宽约30英尺。客户的要求使土地得到最大限度的利用。
Text description provided by the architects. The villa lies on a 10.5 perch (265 square meter) land on a hill in Kandy city, Sri Lanka overlooking the historical Kandy Lake. A narrow elongated site nestled between two 4-5 level apartment buildings. The villa is approximately 70 feet in length and 30 feet in width. The requirements of the client subjected the land to maximum utilisation.
© Eresh Weerasuriya
(Eresh Weerasuriya)
该遗址最重要的体验是从康迪湖到马利加瓦(佛主的牙齿遗物的庙宇)和起伏的绿色植物和山丘之外的美丽景色。
The foremost experience of the site is the beautiful view across Kandy Lake towards the Maligawa (the temple of the tooth relic of Lord Buddha) and the undulating landscape of greenery and Hills beyond.
© Eresh Weerasuriya
(Eresh Weerasuriya)
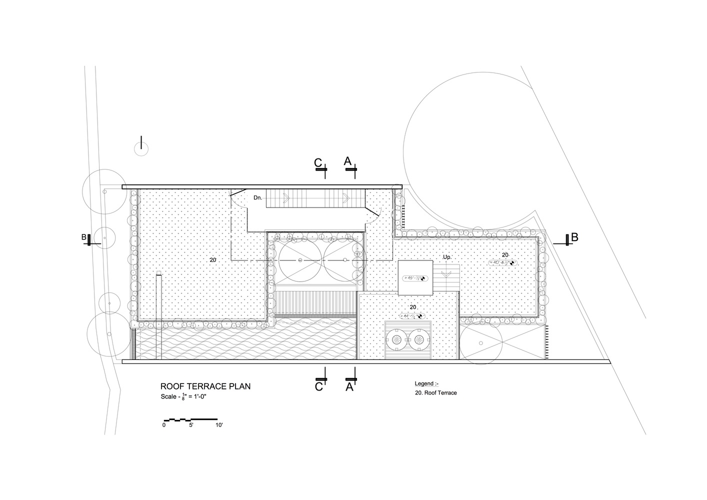
别墅设计为5卧室住宅,有5间浴室、储藏室、厨房、开放式住宿和就餐、双人车、女佣住宿和卫生间,更衣室还有一个娱乐休息室和一个带屋顶露台的40英尺长的泳池,现已被进一步改造,以容纳更多房间,并被用作精品酒店。
The villa designed as a 5 bedroom home with 5 bathrooms, pantry, kitchen, open plan living and dining, double carport, maid’s accommodation and toilet, powder room also has an entertainment lounge and a 40 foot lap pool with a rooftop terrace that has now been further transformed to accommodate more rooms and used as a boutique hotel.
主要的设计干预措施是通过引入一个庭院,保持通畅、令人叹为观止的景观,以及通过房子的中心核心将自然光和通风带入相邻的空间。庭院被围住在顶部,以防止雨水进入内部空间,同时也过滤透入空间的单色白光。庭院不仅是一种冷却和自然光的机制,而且从房子的前部到湖和景观的后方形成了一条景观走廊。
The main design intervention has been to retain the unobstructed stunning view as well as to bring natural light and ventilation through the central core of the house to the adjacent spaces by introducing a courtyard. The courtyard has been enclosed on top to prevent rain from entering the internal spaces but also to filter the monochrome white light that permeates the spaces. The courtyard not only acts as a mechanism for cooling and natural light but also creates a view corridor from the front of the house towards the rear framing views of the lake and the landscape.
© Eresh Weerasuriya
(Eresh Weerasuriya)
Architects IPA Architects
Location Kandy, Sri Lanka
Architect in Charge Isurunath Bulankulame
Area 10000.0 ft2
Project Year 2017
Photographs Eresh Weerasuriya
Category Hotels
Manufacturers Loading...
客服
消息
收藏
下载
最近





























