查看完整案例

收藏

下载
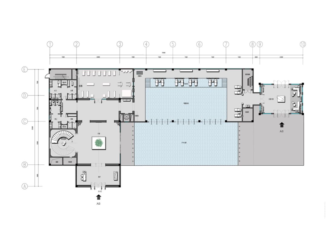
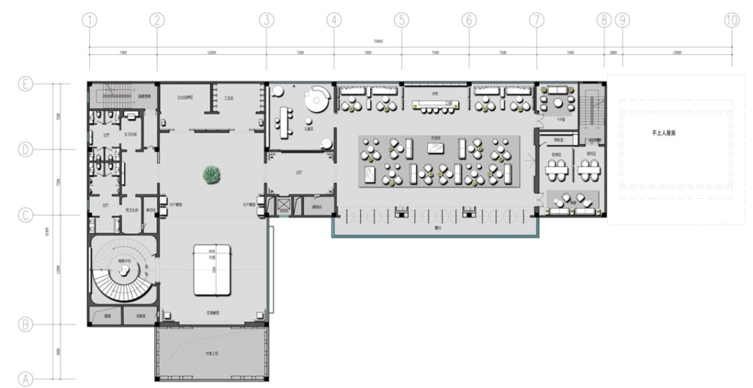
四水归堂 每个人心中都有些难以忘怀的美好场景,一首诗、一幅画、甚至一个故事,都可能触发内心深处,成为设计的源泉。 四水归堂,源远流长,冷静清雅,质朴明志,意境悠远,也许,那就是我们憧憬已久的生活梦境,遇见理想,超乎想象,令人神往。 当“四水归堂”成为一个充满美好理想的意境,对于设计的思考也会随之变得更纯粹与自然。 设计师希望营造一个极致而朴质的东方人文空间,表达人们对美好生活的哲学思考,回归到设计的本真,构筑生活的诗性与歌赋,探索具有更高信仰与深度的精神诉求。 灯火阑珊 殿堂高阁,天井窗花图案的格栅于四壁规整有序地铺开,营造纯净而又神圣的韵律感,柔和的灯光氛围营造,让人仿佛置身于教堂中,赋予空间更高级的神性,宁静肃穆的空间氛围,探索设计的高级感,呈现了一个兼顾现代美学与精神力量的艺术空间。 四水归堂 艺术与生活,往往会交错于时空之下与人文之上。儿时,雨天的老宅,雨水拍打着屋檐,淅淅沥沥,自然而富有生活气息,让人念念不忘。 静坐于屋檐下,安静地听着雨水但声响,孩子们熙熙攘攘的欢笑交杂于雨声中,那是一种纯粹而天真但美好。 设计,回到记忆深处,化成诗意,浸润丹田。 去掉繁杂但装饰,设计师通过水滴状的艺术装置,加以电动控制,营造一个四水归堂的下雨场景,抽象而灵动。 天空的云朵漫开,雨水如珍珠般滴答滴答地落下,让人感叹生命的美妙。 难怪梁思成与林微音走遍中国,只感叹天井,才是最动人、最令人惊叹的建筑。 △画通高三层楼,高13米,选自虚白居士【云水禅心图】 人在画中游 沿旋转楼梯拾级而上,视线随山水画而至。山水画境中的诗词歌赋,自然而浪漫,蜿蜒而上的艺术空间里也多了几分意境,介于虚幻与真实间的意象,令人浮想联翩,宽广的设计语境,更显格调。 只见云水缭绕,山色绵密,远处几株零散的古松,松下山石嶙峋,悬崖边隐约可见一处古亭。 试想,站于古亭,遥望山林,顿时心生平静。旷远,往往隐藏于安静一隅的一刹那。 文房 秉承中华文人传统,布清供于书斋,列雅集于文房。桌上摆有精挑细选的精装珍藏和些许雅玩,香插、笔筒、臂搁,质朴不施粉黛。 仿宋瓷器,细致通透、线条流畅,明式榉木面条柜,不太起眼,制式少见的全品。风吹布缦,轻抚着文人的舒雅。 碧水云天 碧澄澄的天空,云朵层层叠叠。阳光穿过云层,透出了出来。天花错落有致的层叠,波浪起伏,露着微光。 安静的空间在简洁中散逸出悠然与质朴,当代与自然的交融,弥漫着轻灵安详的艺术气息。 臻园,如此之好,听竹林风萧,感怀古悠长,叹青葱岁月。深邃与辽阔之下的当代,于记忆深处的美,东方匠造的别致景象,是心灵的绽放。 于静中得无我之境,于动之静中得有我之境,自然、纯粹、阔达、悠远,令人憧憬! 平面图 ▽ 项目名称:招商蛇口广州臻园营销中心 项目业主:招商蛇口 项目地址:中国 广州 项目面积:2000㎡ 室内设计:深圳市里约环境艺术设计有限公司 设计范围:营销中心室内设计、软装陈设 设计总负责:伍聃 主案设计:李冰峰、杨欢 软装陈设:王红娜、徐雅丽、谢耿铮 照明设计:朱镜霖 施工单位:广东联筑装饰集团有限公司 摄 影 师:张骑麟 里约设计 深圳市里约环境艺术设计有限公司 (LIA) 成立于2007年,专业从事室内设计、软装配饰设计与灯光照明设计。 为招商蛇口地产、融创地产、华夏幸福、保利地产、正中集团、复地地产、深业集团、香港建设、中集集团等大型地产公司提供设计服务。设计项目类型涵盖别墅、会所、营销中心、样板房、联合办公综合体。 代表作 △招商禧园 △复地 · 海上海 △深圳里约生活馆
售楼处 东方 人文 现代
客服
消息
收藏
下载
最近











































