查看完整案例

收藏

下载
记得初次踏勘,我们看到几乎一片空白的场地。新的开发区,新的工业园,千篇一律的新建厂房,找不到与城市,场所或是历史的一点联系。这可能也是在中国广大次达地区的建筑实践中常常面临的问题,一片虚无的现状切断了通往永恒的道路。于是,设计的挑战转化为:如何设计一个有内在生命力的独立世界,以抵抗虚无的边界。为此,我们需要重新向聚落和自然学习,这种思考方式在中国有着漫长的传统。
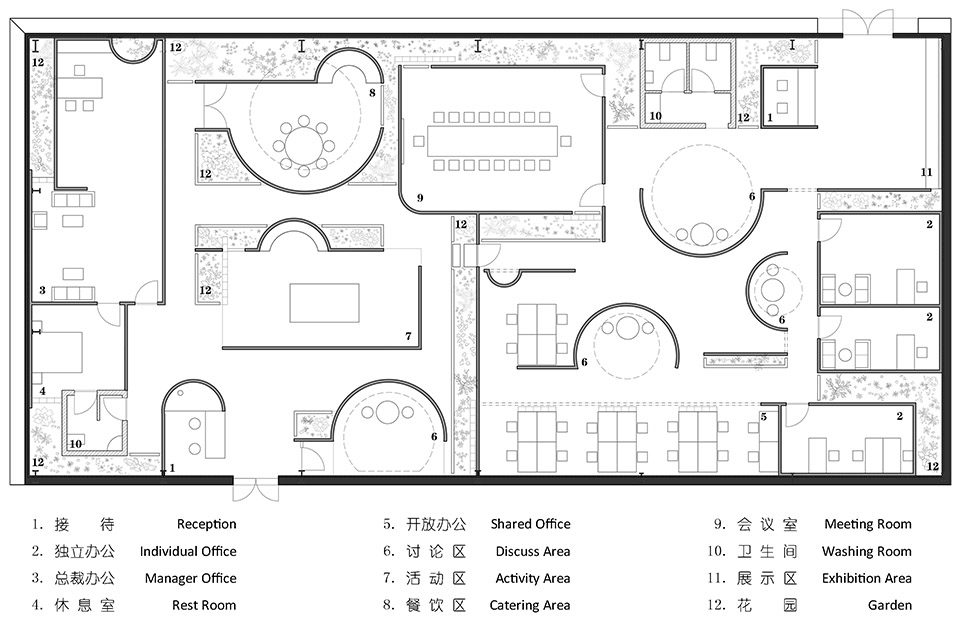
虽然处于物理环境定义下室内区域,我们仍将设计作为一个整体的建筑群进行考虑。这样的方式在开始就天然赋予了它一种城市密度的概念,一个内向空间的自治模式。它延续着我们持续关注的试验方向:在内部重新划分内与外的秩序,并以一种抽象的方式介入。
由拱形组成的内向空间的自治模式
功能被区分为私密和公共。私密指向那些功能明确, 完整围合的独立房间,它们的独立性被不同方向的坡度顶在视觉上强化出来。公共代表那些没有定义的中性区域,它们被模糊的称为前厅,讨论,聚会,展示,休息……它们对空开敞,被墙体划分为尺度各异的“街道”,又放大为一个“广场”,或缩小成一处“巷弄”。以这样的方式,空间获得了一种可贵的城市属性:街道串联起公共节点,房屋沿线分布,绿地间隔其中。
形态各异的墙体将公共区域划分为不同尺度的“城市”空间
借用一些城市术语描述空间并非为了字面的取巧,更多是对行为的判断:步入空间,眼前展现出弯曲的廊道,放大空间,角落,门洞和高塔错落有致,人们不可避免的相遇,聚合和冲突。共享和私密,有序或随机,目的与巧合,适当的密度赋予行为多义的可能。
错落的空间使人们不可避免地相遇、聚合和冲突
这里是一座城市,也是一片花园。新的隔断与外墙之间留出空隙,是办公室的后花园;笔直的绿化沿着片墙,消失在弧线的转折里;圆形的天花散发柔和的光,像是一个个天井。这些关于园林的联想在空间中不断出现,持续的提示着自然。
设计师为空间赋予了城市的密度和特征
偶尔出现的盆栽和绿植为空间带来意趣
以设计的意图,留白的区域应是室内的景园,布置上盆栽植物,一眼望去,由近及远,层层叠叠。这个想法最终没能实现,业主零散的摆上了几盆琴叶榕,疏疏朗朗,偶尔冒头,也别有意趣。我们最后一次来到场地,它还没有投入使用。那些曲曲绕绕的街道中,那些眼眼相望的景窗里会发生些美好的故事吗?这可能就是一座梦中的花园吧。
办公空间 现代 极简 商丘
客服
消息
收藏
下载
最近



















