查看完整案例

收藏

下载
土木工程师Peter Gonzales-金字塔工程师,LLC景观设计师Steve Shea-Berger Partners结构工程师Brian Phead,Owen Bower,PCS结构解决方案机械工程师Andy Frichtl-Interface,Inc.电气工程师David Chesley-Interface,Inc.Acoustical Engineering Bill Stewart-SSA声学信封顾问Bill CyPHER-Wetherholt
Civil Engineer Peter Gonzales - Pyramid Engineers, LLC Landscape Architect Steve Shea - The Berger Partnership Structural Engineer Brian Phair, Owen Bower, PCS Structural Solutions Mechanical Engineer Andy Frichtl - Interface, Inc Electrical Engineer David Chesley - Interface, Inc Acoustical Engineering Bill Stewart - SSA Acoustics Envelope Consultant Bill Cypher - Wetherholt & Associates More Specs Less Specs
© Pete Eckert
彼得·埃克特
架构师提供的文本描述。梅森县PUD 3号的新行政、维护和运营设施将PUD的所有职能统一在一个最先进、高度专业的校园内。约翰草原行动中心的工作人员和周围社区的公民很高兴通过支持那些维护当地电力设施的人,为改善县的基础设施作出了贡献。
Text description provided by the architects. Mason County PUD No. 3’s new administrative, maintenance and operations facility unites all of the PUD’s functions within a state-of-the-art, highly professional campus. The staff of the John’s Prairie Operations Center and citizens of the surrounding community are pleased to have contributed toward the improvement of County infrastructure by supporting those who maintain local electrical utilities.
© Pete Eckert
彼得·埃克特
在项目开始时,一项全面的研究权衡了维持现有条件的影响-大量分散的老化结构和租赁办公空间-以及建造新建筑的好处。作为成本效益分析的一部分,对运营流程和部门间物流进行了研究,包括生产线人员、技术人员、客户服务、行政管理、车辆维护和仓库人员的日常工作任务。
At the onset of the project, a comprehensive study weighed the impacts of maintaining existing conditions - a widely-dispersed collection of aging structures and leased office space – with the benefits of building new. As a part of the cost-benefit analysis, operational procedures and interdepartmental logistics were studied, including daily work tasks of line crew, technicians, customer service, administrative, vehicle maintenance, and warehouse personnel.
© Pete Eckert
彼得·埃克特
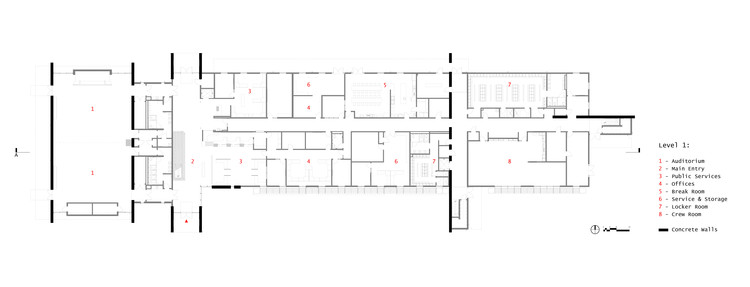
First Level Plan
一级计划
© Pete Eckert
彼得·埃克特
这一阶段的高潮向设计团队展示了在一个位于中心的PUD拥有的包裹上创建一个单一设施的经济和文化好处。由于劳动力时间和燃料/能源效率大幅度提高,以及生产率的提高,在预计的50年期间,合并业务与分散、分开的设施之间的累计节省估计超过6 000万美元。
The culmination of this phase made apparent to the design team the economic and cultural benefits of creating a single facility on a centrally-located PUD-owned parcel. As a result of substantially improved labor time and fuel/energy efficiencies, as well as increased productivity, the cumulative savings between a consolidated operation and decentralized, separate facilities, was estimated at more than $60 million over a projected 50-year period
© Pete Eckert
彼得·埃克特
这座耗资2500万美元的建筑、5栋大楼、146,000平方英尺的运营园区,为超过115名员工和工作人员提供了一个新的住所,占地22英亩。约翰草原行动中心轻描淡写地回应了该县开发低影响场地、节约水和能源的目标。收获的雨水供应灌溉和厕所冲洗用水。一个225千瓦光伏(PV)阵列在商店的建筑“D”收集太阳射线,补充电力在电网内。基础设施已到位,以便通过安装额外的太阳能电池板最终转换为净零能源。
Design of the $25 million, five building, 146,000 sqft operations campus followed, providing a new home for over 115 staff and crew on a 22-acre parcel. Treading lightly, the John’s Prairie Operations Center responds to the County’s goals for low-impact site development, and conservation of water and energy. Harvested rain supplies water for irrigation and toilet flushing. A 225 kW photovoltaic (PV) array atop shop building “D” harvests the sun’s rays, supplementing electricity within the power grid. Infrastructure is in place for the eventual conversion to Net Zero Energy through additional solar panel installation.
© Pete Eckert
彼得·埃克特
在建筑上,校园使用了混凝土、钢、砖石和重型木材等耐久且适合地区的材料。一座庄严的城市建筑是通往校园的“前门”,它的体积很大,两层楼高,把公共和私人区域隔开了。由更多的工业材料组成的工业功能,私人区域是由砖石和钢,而公共区域的特点是充分使用木材装饰。礼堂以令人联想起该地区木材工业的沉重木材为框架,在紧急情况下提供社区聚集空间和安全住所。
Architecturally, the campus utilizes the durable and regionally-appropriate materials of concrete, steel, masonry and heavy timber. A stately civic building serves as the “front door” to the campus, with a high-volume, two story entry mass separating the public and private zones. Comprised of more industrial materials for industrial functions, the private zone is clad in masonry and steel, while the public area is characterized by its ample use of wood finish. The auditorium, framed by heavy timber reminiscent of the area’s timber industry, offers the use of community gathering space and safe shelter in the event of an emergency.
Section Perspective
剖面透视
在行政大楼的墙壁之外,周密的规划在材料的分期和仓储、特种车间、车辆和设备储存以及燃料/洗涤空间之间提供了可见度和透明度;简单、合乎逻辑、建筑和现场流通将用户安全置于最前列。船员设施-如调度室、更衣室和泥巴室-促进日常互动,以提高员工士气,从而提高生产力和留住雇员。
Beyond the walls of the administration building, thoughtful planning provides visibility and transparency in and among the material staging and warehousing, specialty workshops, vehicle and equipment storage and the fuel /wash spaces; simple, logical, building and site circulation place user safety at the forefront. Crew facilities - such as dispatch, locker and mud rooms –promote daily interaction to enhance worker morale, which in turn, leads to increased productivity and employee retention.
© Pete Eckert
彼得·埃克特
整个校园的质量、细节和材料的一致使用为所有部门成员提供了一个专业、优雅的氛围。室内是淹没在白天,和当地,可再生和无毒的特点,有助于创造一个健康,生产的工作环境,为所有PUD员工。
Quality detailing and consistent use of materials throughout the campus provide a professional, elegant atmosphere for all department members. Interiors are awash in daylight, and the local, renewable and non-toxic attributes of finishes help create a healthy, productive work environment for all PUD employees.
© Pete Eckert
彼得·埃克特
Architects TCF Architecture
Location 2621 E Johns Prairie Road Shelton, Washington, United States
Lead Architects Randy Cook, Brian Ho
Project Team Gerry Pless, Mark Hurley, Jeremy Wooley, Ryan Miller
Lead Designer Chris Johnson
Area 142000.0 ft2
Project Year 2013
Photographs Pete Eckert
Category Industrial Architecture
Manufacturers Loading...
客服
消息
收藏
下载
最近























